Skip to main content

MyWinkworth

Under Offer

External
Reception
Reception
Reception Room 1 P1
Kitchen
Garden Part Two
Garden Part One
Garden
Reception Room 1 P2
Bedroom One
Bedroom Two
Bedroom Three
Bedroom Three
Bedroom Four
Bathroom
Bathroom
Reception
6/14

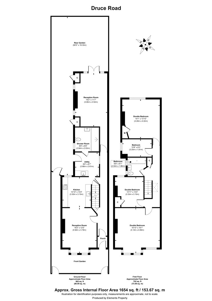
Druce Road, Dulwich, London, SE21

4 bedroom house

£1,900,000 Freehold

  • Bedrooms 4
  • Bathrooms 1
  • Reception rooms 2
  • Dimensions 1654 sq ft
    153 sq m
  • Floorplan

PICTURES AND VIDEOS

KEY FEATURES

  • Rare four-bedroom semi-detached house close to Dulwich Park.
  • Characterful reception with original features, plus dining room opening to a sunny garden.
  • Three doubles and a study/single.
  • Near North Dulwich railway station & East Dulwich railway station with direct links to London Bridge.

KEY INFORMATION

  • Tenure: Freehold
  • Council Tax Band: G
  • Local Authority: London Borough Of Southwark

Description

A rarely available, large four bedroom semi-detached house close to Dulwich Park.

The property boasts a large reception, complete with original wood flooring, high ceilings and original fireplace. A large fully fitted kitchen, separate reception/ dining room to rear with original French doors leading out to a sunny garden to rear. The first floor comprising three large doubles and a separate smaller study/ single bedroom. The property is situated on a highly sought after tree lined, residential road, close to Dulwich Village and Dulwich Park. Transport links can be found view North Dulwich/ East Dulwich station with direct links to London Bridge. Parking is free on street.

AGENT NOTES:

Mobile phone coverage:
EE (likely inside and outside)
Three (likely inside and outside)
O2 (likely inside and outside)
Vodaphone (likely inside and outside)

(Potential purchasers are advised to seek their own advice as to the suitability of the services and mobile phone coverage, the above is for guidance only.)

Available broadband: Ultrafast Broadband: FTTP Superfast Broadband: FTTC Standard Broadband: ADSL
Networks in your area: EE & Three (Information supplied by Ofcom)

Flood Risk: Very Low risk of surface water flooding and Very low risk river and sea flooding (Information supplied by gov.uk and purchasers are advised to seek their own legal advice)

Local Council: Southwark / Tax Band: G
EPC Rating: E

Floor plan: Whilst every attempt has been made to ensure accuracy, all measurements are approximate and not to scale. The floor plan is for illustrative purposes only.

Utilities

  • Electricity Supply: Mains Supply
  • Water Supply: Mains Supply
  • Sewerage: Mains Supply
  • Broadband: FTTP
  • Mobile Coverage: Poor signal inside / limited signal in BACK rooms
Introduction text for the mortgage calculator

Mortgage Calculator

Fill in the details below to estimate your monthly repayments:

Approximate monthly repayment:

For more information, please contact Winkworth's mortgage partner, Trinity Financial, on +44 (0)20 7267 9399 and speak to the Trinity team.

Stamp Duty Calculator

Fill in the details below to estimate your stamp duty

The above calculator above is for general interest only and should not be relied upon

6/14
External
Reception
Reception
Reception Room 1 P1
Kitchen
Garden Part Two
Garden Part One
Garden
Reception Room 1 P2
Bedroom One
Bedroom Two
Bedroom Three
Bedroom Three
Bedroom Four
Bathroom
Bathroom
Reception

Meet the Team

Our team at Winkworth Dulwich Estate Agents are here to support and advise our customers when they need it most. We understand that buying, selling, letting or renting can be daunting and often emotionally meaningful. We are there, when it matters, to make the journey as stress-free as possible.

See all team members

Got a question about this property?

This site is protected by reCAPTCHA and the Google Privacy Policy and Terms of Service apply.

More Properties like this

Video Tour

Under Offer

Crystal Palace Road, East Dulwich, London, SE22

Offers in excess of £2,000,000 Freehold

Video Tour

Under Offer

Overhill Road, East Dulwich, London, SE22

£2,000,000 Freehold

New Instruction

Underhill Road, East Dulwich, London, SE22

Offers in excess of £2,000,000 Freehold

Under Offer

Druce Road, Dulwich, London, SE21

£1,900,000 Freehold

Ulverscroft Road, East Dulwich, London, SE22

£1,700,000 Freehold

Under Offer

Melbourne Grove, East Dulwich, London, SE22

£1,690,000 Freehold

Online Valuations Aren’t Worth The Paper They’re Printed On.

When online valuations don’t give you the whole picture - try Winkworth’s expert service. Get a free property appraisal. Accurate valuations from our local property experts. No obligation to list with Winkworth. Choose a time convenient for you with our online booking system.

Fill in your details and someone will be in touch soon:

You have provisionally booked a valuation for . Please confirm your details below

We don't have date info available for this property, but if you fill in your details below, someone will be in touch to arrange a date soon

Please fill in the required fields below marked with *

This site is protected by reCAPTCHA and the Google Privacy Policy and Terms of Service apply.