Skip to main content

MyWinkworth

New Instruction

Reception
Reception
Hallway
Kitchen/Diner
Reception
Kitchen/Diner
Kitchen
Kitchen
Diner
Kitchen/Diner
Garden
Garden
External
Master Bedroom
Master Bedroom
Ensuite
Ensuite
Ensuite
Ensuite
Ensuite
Bedroom Three
Bedroom Two
Bathroom Two
Bathroom Two
Bedroom Four
6/14

Ulverscroft Road, East Dulwich, London, SE22

4 bedroom house

£1,700,000 Freehold

  • Bedrooms 4
  • Bathrooms 2
  • Reception rooms 2
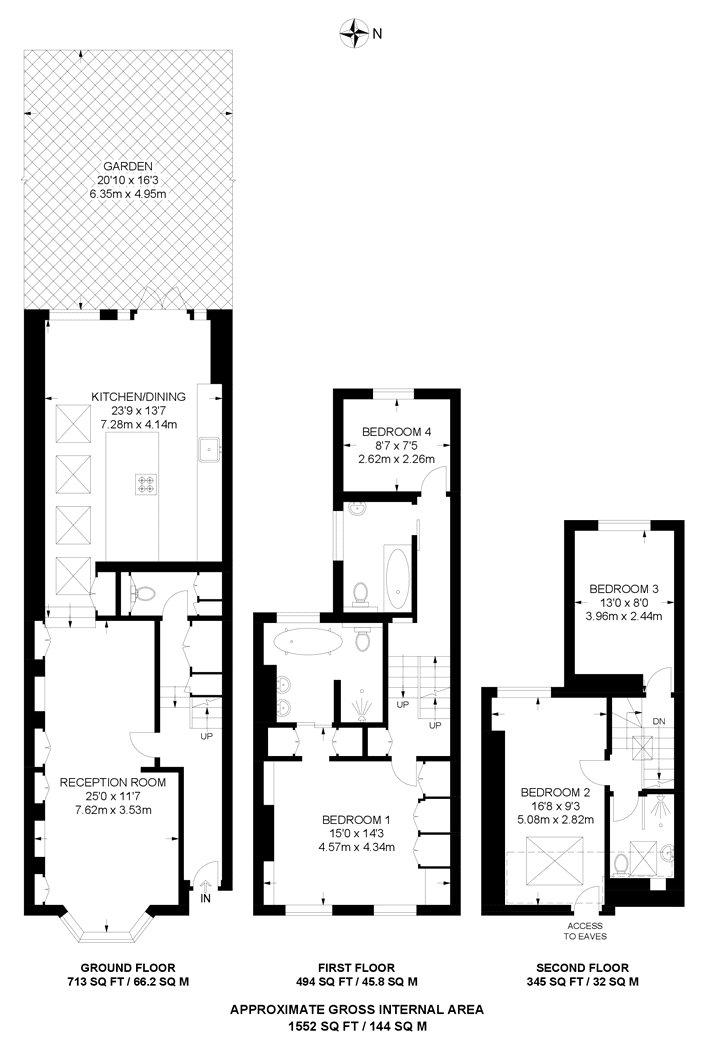
  • Floorplan

PICTURES AND VIDEOS

KEY FEATURES

  • Beautifully rebuilt four-bedroom home, finished to an exceptional specification with restored period detail, bespoke joinery, underfloor heating and smart, energy-efficient systems.
  • Striking kitchen and living spaces, featuring a German-designed kitchen with Siemens appliances and access to a landscaped limestone garden.
  • Sought-after East Dulwich setting, close to outstanding schools, independent shops, cafés, green spaces and excellent transport links.

KEY INFORMATION

  • Tenure: Freehold
  • Council Tax Band: D
  • Local Authority: London Borough Of Southwark

Description

Set on one of East Dulwich’s most sought-after residential streets, this outstanding four-bedroom family home has been meticulously rebuilt and finished to an exceptional specification, seamlessly blending elegant period character with modern, energy-efficient living.



The beautifully restored façade features sandblasted and repointed brickwork, a hand-carved Bath stone bay window and bespoke detailing. Inside, a striking black and white marble hallway with underfloor heating leads to a generous double reception room with bespoke cabinetry and new wooden sash windows. To the rear, a superb German-designed kitchen by Dulwich Design Kitchens forms the heart of the home, complete with Siemens appliances, a substantial island, refined lighting and direct access to the landscaped garden.

The upper floors offer four well-proportioned bedrooms, including a luxurious principal suite with custom-built wardrobes and a high-end en suite bathroom, alongside a stylish family bathroom and a thoughtfully executed loft conversion. Outside, the limestone-paved garden provides a calm, private space for entertaining and family life.

Comprehensively upgraded throughout, the house benefits from rebuilt floors and joists, full rewiring, solar panels, an air source heat pump and excellent water pressure. Perfectly positioned for outstanding local schools, independent shops, cafés, green spaces and excellent transport links, this is a rare turnkey home in the heart of East Dulwich.

AGENT NOTES:

Mobile phone coverage:
EE (Good outdoor and in-home)
Three (Good outdoor and in-home)
O2 (Good outdoor and in-home)
Vodaphone (Good outdoor and variable in-home)

(Potential purchasers are advised to seek their own advice as to the suitability of the services and mobile phone coverage, the above is for guidance only.)

Available broadband: Ultrafast Broadband: FTTP
Superfast Broadband: FTTC
Standard Broadband: ADSL
Networks in your area: Virgin media, Openreach
(Information supplied by Ofcom)

Flood Risk: Very low risk of surface water flooding / Very low risk river and sea flooding (Information supplied by gov.uk and purchasers are advised to seek their own legal advice)

Tenure: Freehold

Local Council: Southwark / Tax Band: D
EPC Rating: C

Floor plan: Whilst every attempt has been made to ensure accuracy, all measurements are approximate and not to scale. The floor plan is for illustrative purposes only.

Marketed by

Winkworth Dulwich

Properties for sale in Dulwich

Arrange a Viewing

Fill in the form below to arrange your property viewing.

This site is protected by reCAPTCHA and the Google Privacy Policy and Terms of Service apply.
Introduction text for the mortgage calculator

Mortgage Calculator

Fill in the details below to estimate your monthly repayments:

Approximate monthly repayment:

For more information, please contact Winkworth's mortgage partner, Trinity Financial, on +44 (0)20 7267 9399 and speak to the Trinity team.

Stamp Duty Calculator

Fill in the details below to estimate your stamp duty

The above calculator above is for general interest only and should not be relied upon

6/14
Reception
Reception
Hallway
Kitchen/Diner
Reception
Kitchen/Diner
Kitchen
Kitchen
Diner
Kitchen/Diner
Garden
Garden
External
Master Bedroom
Master Bedroom
Ensuite
Ensuite
Ensuite
Ensuite
Ensuite
Bedroom Three
Bedroom Two
Bathroom Two
Bathroom Two
Bedroom Four

Meet the Team

Our team at Winkworth Dulwich Estate Agents are here to support and advise our customers when they need it most. We understand that buying, selling, letting or renting can be daunting and often emotionally meaningful. We are there, when it matters, to make the journey as stress-free as possible.

See all team members

Got a question about this property?

This site is protected by reCAPTCHA and the Google Privacy Policy and Terms of Service apply.

More Properties like this

Video Tour

Under Offer

Crystal Palace Road, East Dulwich, London, SE22

Offers in excess of £2,000,000 Freehold

Video Tour

Under Offer

Overhill Road, East Dulwich, London, SE22

£2,000,000 Freehold

Under Offer

Friern Road, East Dulwich, London, SE22

Offers in excess of £1,800,000 Freehold

Under Offer

Ondine Road, Peckham Rye, London, SE15

Offers in excess of £1,800,000 Freehold

New Instruction

Ulverscroft Road, East Dulwich, London, SE22

£1,700,000 Freehold

Under Offer

Champion Grove, Camberwell, London, SE5

£1,700,000 Freehold

Online Valuations Aren’t Worth The Paper They’re Printed On.

When online valuations don’t give you the whole picture - try Winkworth’s expert service. Get a free property appraisal. Accurate valuations from our local property experts. No obligation to list with Winkworth. Choose a time convenient for you with our online booking system.

Fill in your details and someone will be in touch soon:

You have provisionally booked a valuation for . Please confirm your details below

We don't have date info available for this property, but if you fill in your details below, someone will be in touch to arrange a date soon

Please fill in the required fields below marked with *

This site is protected by reCAPTCHA and the Google Privacy Policy and Terms of Service apply.