Skip to main content

MyWinkworth

New Instruction

External
Hallway
Reception
Reception Fireplan
Reception Fireplan
Reception
Dining
Kitchen
Kitchen
Conservatory
Garden
Garden
External
Staircase
Hallway
Bedroom One
Bedroom Two
Bedroom Five
Bedroom Four
Bathroom
Hallway
6/14

Underhill Road, East Dulwich, London, SE22

5 bedroom house

Offers in excess of £2,000,000 Freehold

  • Bedrooms 5
  • Bathrooms 1
  • Reception rooms 2
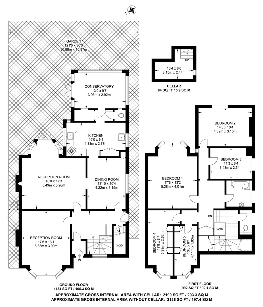
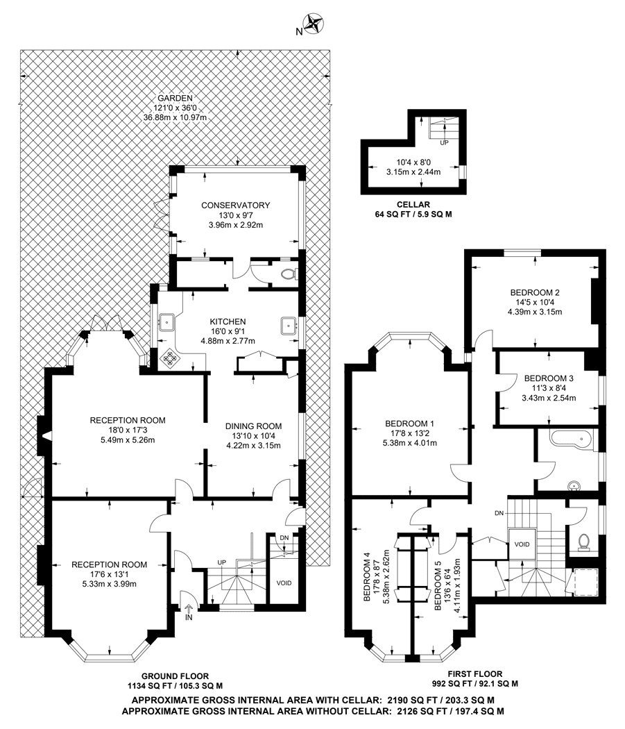
  • Dimensions 2126 sq ft
    197 sq m
  • Floorplan

PICTURES AND VIDEOS

KEY FEATURES

  • Five Bedrooms
  • Two Bathrooms plus a Downstairs and Upstairs WC
  • Large Kitchen
  • Two Reception Rooms
  • Large Cellar
  • Study Room/Extra Bedroom
  • Potential To Extend (STPP)
  • Fantastic Location

KEY INFORMATION

  • Tenure: Freehold
  • Council Tax Band: F
  • Local Authority: London Borough Of Southwark

Description

Occupying a prime position on one of the most desirable residential roads in East Dulwich, this substantial detached double-fronted residence extends to over 2,000 sq ft and offers a rare opportunity to acquire a distinguished family home in SE22..

Occupying a prime position on one of the most desirable residential roads in East Dulwich, this substantial detached double-fronted residence extends to over 2,000 sq ft and offers a rare opportunity to acquire a distinguished family home in SE22. The property retains a wealth of original period character, with ornate ceiling mouldings, elegant fireplaces, high ceilings and original doors finished with brass ironmongery, including a rare Victorian front door lock believed to be original to the house.

The home has a notable local history, having once been adapted to provide accommodation during the wartime period following bombing in the area along Underhill Road. Today, it stands as a substantial and elegant family residence offering excellent living and entertaining space.

The ground floor comprises two generous reception rooms, a formal dining room and a light-filled conservatory overlooking the large rear garden, creating a seamless balance between formal entertaining and relaxed family living. Upstairs, the property provides five bedrooms of varying proportions, offering flexibility for family life, guest accommodation or dedicated home-working space.

Externally, the property benefits from a private driveway providing off-street parking and a sizeable rear garden, which features naturally layered soil and drainage beneath the lawn — a practical and unusual feature that helps maintain a healthy lawn despite the clay-rich ground typical of the area. The home is further enhanced by a modern Worcester Bosch combi boiler (installed approximately 2–3 years ago).

The property is exceptionally well connected, with regular bus services from nearby Lordship Lane providing routes towards central London including the West End, Brixton and King’s Cross. Additional transport options are within walking distance, offering convenient rail access to London Bridge and the wider Overground network.

Rarely do detached homes of this scale, character and presence become available in this sought-after location, making this a superb opportunity to acquire a landmark family house with enduring appeal.

Mobile phone coverage:
EE (Good outdoor and in-home)
Three (Good outdoor and variable in-home)
O2 (Good outdoor and variable in-home)
Vodaphone (Good outdoor)

(Potential purchasers are advised to seek their own advice as to the suitability of the services and mobile phone coverage, the above is for guidance only.)

Available broadband: Ultrafast Broadband: FTTP / Fibre to the Premises / Full fibre / Gigabit fibre
Networks in your area: Virgin media, Openreach
(Information supplied by Ofcom)

Flood Risk: Very low risk of surface water flooding / Very low risk river and sea flooding (Information supplied by gov.uk and purchasers are advised to seek their own legal advice)

Tenure: Freehold

Local Council: Southwark / Tax Band: F
EPC Rating: To be advised

Floor plan: Whilst every attempt has been made to ensure accuracy, all measurements are approximate and not to scale. The floor plan is for illustrative purposes only.

Marketed by

Winkworth Dulwich

Properties for sale in Dulwich

Arrange a Viewing

Fill in the form below to arrange your property viewing.

This site is protected by reCAPTCHA and the Google Privacy Policy and Terms of Service apply.
Introduction text for the mortgage calculator

Mortgage Calculator

Fill in the details below to estimate your monthly repayments:

Approximate monthly repayment:

For more information, please contact Winkworth's mortgage partner, Trinity Financial, on +44 (0)20 7267 9399 and speak to the Trinity team.

Stamp Duty Calculator

Fill in the details below to estimate your stamp duty

The above calculator above is for general interest only and should not be relied upon

6/14
External
Hallway
Reception
Reception Fireplan
Reception Fireplan
Reception
Dining
Kitchen
Kitchen
Conservatory
Garden
Garden
External
Staircase
Hallway
Bedroom One
Bedroom Two
Bedroom Five
Bedroom Four
Bathroom
Hallway

Meet the Team

Our team at Winkworth Dulwich Estate Agents are here to support and advise our customers when they need it most. We understand that buying, selling, letting or renting can be daunting and often emotionally meaningful. We are there, when it matters, to make the journey as stress-free as possible.

See all team members

Got a question about this property?

This site is protected by reCAPTCHA and the Google Privacy Policy and Terms of Service apply.

More Properties like this

Video Tour

Under Offer

Crystal Palace Road, East Dulwich, London, SE22

Offers in excess of £2,000,000 Freehold

Video Tour

Under Offer

Overhill Road, East Dulwich, London, SE22

£2,000,000 Freehold

New Instruction

Underhill Road, East Dulwich, London, SE22

Offers in excess of £2,000,000 Freehold

Ulverscroft Road, East Dulwich, London, SE22

£1,700,000 Freehold

Under Offer

Champion Grove, Camberwell, London, SE5

£1,700,000 Freehold

Under Offer

Melbourne Grove, East Dulwich, London, SE22

£1,690,000 Freehold

Online Valuations Aren’t Worth The Paper They’re Printed On.

When online valuations don’t give you the whole picture - try Winkworth’s expert service. Get a free property appraisal. Accurate valuations from our local property experts. No obligation to list with Winkworth. Choose a time convenient for you with our online booking system.

Fill in your details and someone will be in touch soon:

You have provisionally booked a valuation for . Please confirm your details below

We don't have date info available for this property, but if you fill in your details below, someone will be in touch to arrange a date soon

Please fill in the required fields below marked with *

This site is protected by reCAPTCHA and the Google Privacy Policy and Terms of Service apply.