Skip to main content

MyWinkworth

New Instruction

Picture No. 08
Picture No. 12
Picture No. 13
Picture No. 10
Picture No. 09
Picture No. 07
Picture No. 03
Picture No. 04
Picture No. 05
Picture No. 14
Picture No. 11
6/14

Vicarage Road, Heckington, Sleaford, Lincolnshire, NG34

3 bedroom house in Heckington

£240,000 Freehold

  • Bedrooms 3
  • Bathrooms 1
  • Reception rooms 1
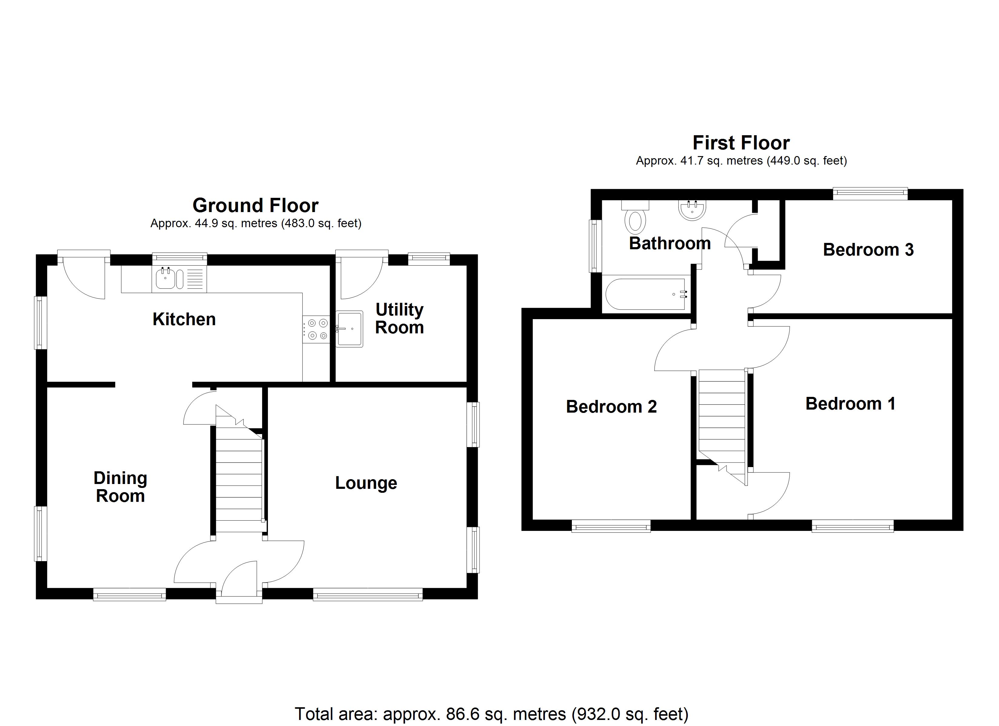
  • Floorplan

PICTURES AND VIDEOS

KEY FEATURES

  • No Onward Chain
  • Charming Detached Cottage
  • Three Bedrooms
  • Sought-After Village Location
  • Spacious Lounge
  • Separate Dining Room
  • Family Bathroom With Shower Over Bath
  • Generous Rear Garden
  • Useful Outbuilding With Power
  • Separate Utility Room
  • Off-Street Parking

KEY INFORMATION

  • Tenure: Freehold
  • Council Tax Band: B
  • Local Authority: North Kesteven District Council

Description

Offered for sale with no onward chain, this charming three-bedroom detached cottage sits in the ever-popular village of Heckington and offers well-proportioned, versatile accommodation throughout.

The ground floor features a welcoming lounge with dual aspect windows, creating a bright and comfortable living space, alongside a separate dining room which flows through into the kitchen. The kitchen is fitted with a range of units, integrated oven and hob, and provides space for further appliances, with access out to the rear garden.

Upstairs, there are three bedrooms, including two generous doubles and a well-sized third room, all served by a family bathroom fitted with a three-piece suite and shower over bath.

Outside is where the property really stands out. The rear garden is beautifully maintained and offers a great mix of patio and lawn, with established planting adding colour and privacy. There is also a substantial outbuilding with power, along with a separate utility room, giving useful additional space for storage, hobbies or working from home. A gated side access leads to a driveway, providing off-street parking.

A lovely blend of character and practicality in a sought-after village setting, this is a home that needs to be seen to be fully appreciated.

Rooms and Accommodations

  • Entrance Hall
  • Dining Room
  • 3.66m x 2.97m
  • Lounge
  • 3.66m x 3.63m
  • Kitchen
  • 5.16m x 2.1m
  • Bedroom One
  • 3.66m x 3.63m
  • Bedroom Two
  • 3.66m x 2.97m
  • Bedroom Three
  • 3.05m x 2.13m
  • Utility Room
  • 2.4m x 2.13m

Marketed by

Winkworth Sleaford

Properties for sale in Sleaford

Arrange a Viewing

Fill in the form below to arrange your property viewing.

This site is protected by reCAPTCHA and the Google Privacy Policy and Terms of Service apply.
Introduction text for the mortgage calculator

Mortgage Calculator

Fill in the details below to estimate your monthly repayments:

Approximate monthly repayment:

For more information, please contact Winkworth's mortgage partner, Trinity Financial, on +44 (0)20 7267 9399 and speak to the Trinity team.

Stamp Duty Calculator

Fill in the details below to estimate your stamp duty

The above calculator above is for general interest only and should not be relied upon

6/14
Picture No. 08
Picture No. 12
Picture No. 13
Picture No. 10
Picture No. 09
Picture No. 07
Picture No. 03
Picture No. 04
Picture No. 05
Picture No. 14
Picture No. 11

Meet the Team

Our team are here to support and advise our customers when they need it most. We understand that buying, selling, letting or renting can be daunting and often emotionally meaningful. We are there, when it matters, to make the journey as stress-free as possible.

See all team members

Got a question about this property?

This site is protected by reCAPTCHA and the Google Privacy Policy and Terms of Service apply.

More Properties like this

Under Offer

Chapel Lane, Little Hale, Sleaford, NG34

£725,000 Freehold

London Road, Silk Willoughby, Sleaford, Lincolnshire, NG34

£699,950 Freehold

Hunters Court, Quarrington, Sleaford, Lincolnshire, NG34

£650,000 Freehold

George Street, Helpringham, Sleaford, Lincolnshire, NG34

£650,000 Freehold

High Street, Walcott, Lincoln, Lincolnshire, LN4

£650,000 Freehold

Under Offer

Side Bar Lane, Heckington Fen, Sleaford, Lincolnshire, NG34

£625,000 Freehold

Online Valuations Aren’t Worth The Paper They’re Printed On.

When online valuations don’t give you the whole picture - try Winkworth’s expert service. Get a free property appraisal. Accurate valuations from our local property experts. No obligation to list with Winkworth. Choose a time convenient for you with our online booking system.

Fill in your details and someone will be in touch soon:

You have provisionally booked a valuation for . Please confirm your details below

We don't have date info available for this property, but if you fill in your details below, someone will be in touch to arrange a date soon

Please fill in the required fields below marked with *

This site is protected by reCAPTCHA and the Google Privacy Policy and Terms of Service apply.