Skip to main content

MyWinkworth

Kitchen
Kitchen
Kitchen
Reception
Reception
Reception
Reception
Play Room
Kitchen
Garden
Garden
Hallway
Bedroom Two
Bedroom Two
External
Bedroom Three
Ensuite
Bedroom Four
Bedroom One
Bedroom One
Bathroom
Bathroom
6/14

Ulverscroft Road, East Dulwich, London, SE22

4 bedroom house

£1,400,000 Freehold

  • Bedrooms 4
  • Bathrooms 2
  • Reception rooms 1
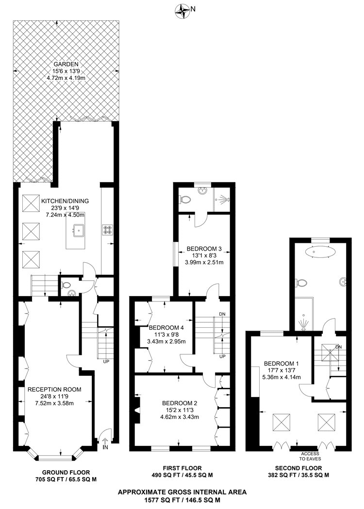
  • Floorplan

PICTURES AND VIDEOS

KEY FEATURES

  • Beautifully extended four-bedroom Victorian family home (approx. 1,577 sq ft)
  • Stunning 23 ft kitchen/dining room with central island and bi-fold doors to garden
  • Elegant family bathroom with freestanding bath, plus additional stylish shower room
  • Prime East Dulwich location close to Lordship Lane and excellent transport links

KEY INFORMATION

  • Tenure: Freehold
  • Council Tax Band: D
  • Local Authority: London Borough Of Southwark

Description

Set on one of East Dulwich’s most desirable residential streets, this exceptional four-bedroom Victorian family home has been thoughtfully extended and meticulously upgraded to offer over 1,575 sq ft of beautifully curated accommodation arranged across three elegant floors.



Behind its attractive brick façade lies a seamless blend of period character and contemporary refinement. The ground floor opens into a handsome front reception room, rich in charm and centred around a striking fireplace with wood-burning stove. Bespoke shelving, plantation shutters and generous ceiling heights enhance the sense of warmth and sophistication, creating an inviting yet refined living space.

To the rear, the house unfolds into an outstanding 23 ft kitchen and dining room designed for modern family living and entertaining alike. A substantial central island with integrated storage forms a natural focal point, complemented by sleek cabinetry, high-specification integrated appliances and expansive work surfaces. Overhead rooflights and full-width glazing flood the space with natural light, while bi-fold doors open directly onto the private rear garden, establishing a seamless connection between indoor and outdoor living. A well-appointed guest cloakroom completes the ground floor.

The first floor provides three beautifully proportioned bedrooms, including an impressive principal bedroom to the front, along with a superb family bathroom finished with a freestanding bath, separate walk-in shower and timeless detailing. The second floor is dedicated to a generous loft-converted bedroom suite extending over 17 ft, offering excellent storage and served by a stylish contemporary shower room, creating a tranquil and private retreat.

Ulverscroft Road is superbly positioned for the vibrant amenities of Lordship Lane, renowned for its independent boutiques, cafés and restaurants, as well as the open green spaces of Dulwich Park and Peckham Rye Park. Excellent transport links are available via East Dulwich and Denmark Hill stations, providing direct services into London Bridge, Victoria and the City.

This is a distinguished and beautifully balanced family home, combining architectural character with modern design in one of SE22’s most sought-after locations.

AGENT NOTES:

Mobile phone coverage:
EE (Good outdoor and in-home)
Three (Good outdoor and in-home)
O2 (Good outdoor and in-home)
Vodaphone (Good outdoor and variable in-home)

(Potential purchasers are advised to seek their own advice as to the suitability of the services and mobile phone coverage, the above is for guidance only.)

Available broadband: Ultrafast Broadband: FTTP / Fibre to the Premises / Full fibre / Gigabit fibre
Networks in your area: Virgin media, Openreach
(Information supplied by Ofcom)

Flood Risk: Very low risk of surface water flooding / Very low risk river and sea flooding (Information supplied by gov.uk and purchasers are advised to seek their own legal advice)

Tenure: Freehold

Local Council: Southwark / Tax Band: D
EPC Rating: C

Floor plan: Whilst every attempt has been made to ensure accuracy, all measurements are approximate and not to scale. The floor plan is for illustrative purposes only.

Marketed by

Winkworth Dulwich

Properties for sale in Dulwich

Arrange a Viewing

Fill in the form below to arrange your property viewing.

This site is protected by reCAPTCHA and the Google Privacy Policy and Terms of Service apply.
Introduction text for the mortgage calculator

Mortgage Calculator

Fill in the details below to estimate your monthly repayments:

Approximate monthly repayment:

For more information, please contact Winkworth's mortgage partner, Trinity Financial, on +44 (0)20 7267 9399 and speak to the Trinity team.

Stamp Duty Calculator

Fill in the details below to estimate your stamp duty

The above calculator above is for general interest only and should not be relied upon

6/14
Kitchen
Kitchen
Kitchen
Reception
Reception
Reception
Reception
Play Room
Kitchen
Garden
Garden
Hallway
Bedroom Two
Bedroom Two
External
Bedroom Three
Ensuite
Bedroom Four
Bedroom One
Bedroom One
Bathroom
Bathroom

Meet the Team

Our team at Winkworth Dulwich Estate Agents are here to support and advise our customers when they need it most. We understand that buying, selling, letting or renting can be daunting and often emotionally meaningful. We are there, when it matters, to make the journey as stress-free as possible.

See all team members

Got a question about this property?

This site is protected by reCAPTCHA and the Google Privacy Policy and Terms of Service apply.

More Properties like this

Video Tour

Under Offer

Crystal Palace Road, East Dulwich, London, SE22

Offers in excess of £2,000,000 Freehold

Video Tour

Under Offer

Overhill Road, East Dulwich, London, SE22

£2,000,000 Freehold

New Instruction

Underhill Road, East Dulwich, London, SE22

Offers in excess of £2,000,000 Freehold

Under Offer

Druce Road, Dulwich, London, SE21

£1,900,000 Freehold

Ulverscroft Road, East Dulwich, London, SE22

£1,700,000 Freehold

Under Offer

Champion Grove, Camberwell, London, SE5

£1,700,000 Freehold

Online Valuations Aren’t Worth The Paper They’re Printed On.

When online valuations don’t give you the whole picture - try Winkworth’s expert service. Get a free property appraisal. Accurate valuations from our local property experts. No obligation to list with Winkworth. Choose a time convenient for you with our online booking system.

Fill in your details and someone will be in touch soon:

You have provisionally booked a valuation for . Please confirm your details below

We don't have date info available for this property, but if you fill in your details below, someone will be in touch to arrange a date soon

Please fill in the required fields below marked with *

This site is protected by reCAPTCHA and the Google Privacy Policy and Terms of Service apply.