Skip to main content

MyWinkworth

Picture No. 04
Picture No. 05
Picture No. 06
Picture No. 07
Picture No. 08
Picture No. 09
Picture No. 10
Picture No. 11
Picture No. 12
Picture No. 15
Picture No. 14
Picture No. 17
Picture No. 16
Picture No. 19
Picture No. 13
Picture No. 18
6/14

Sleaford Road, Heckington, Sleaford, Lincolnshire, NG34

5 bedroom house in Heckington

£399,950 Freehold

  • Bedrooms 5
  • Bathrooms 3
  • Reception rooms 2
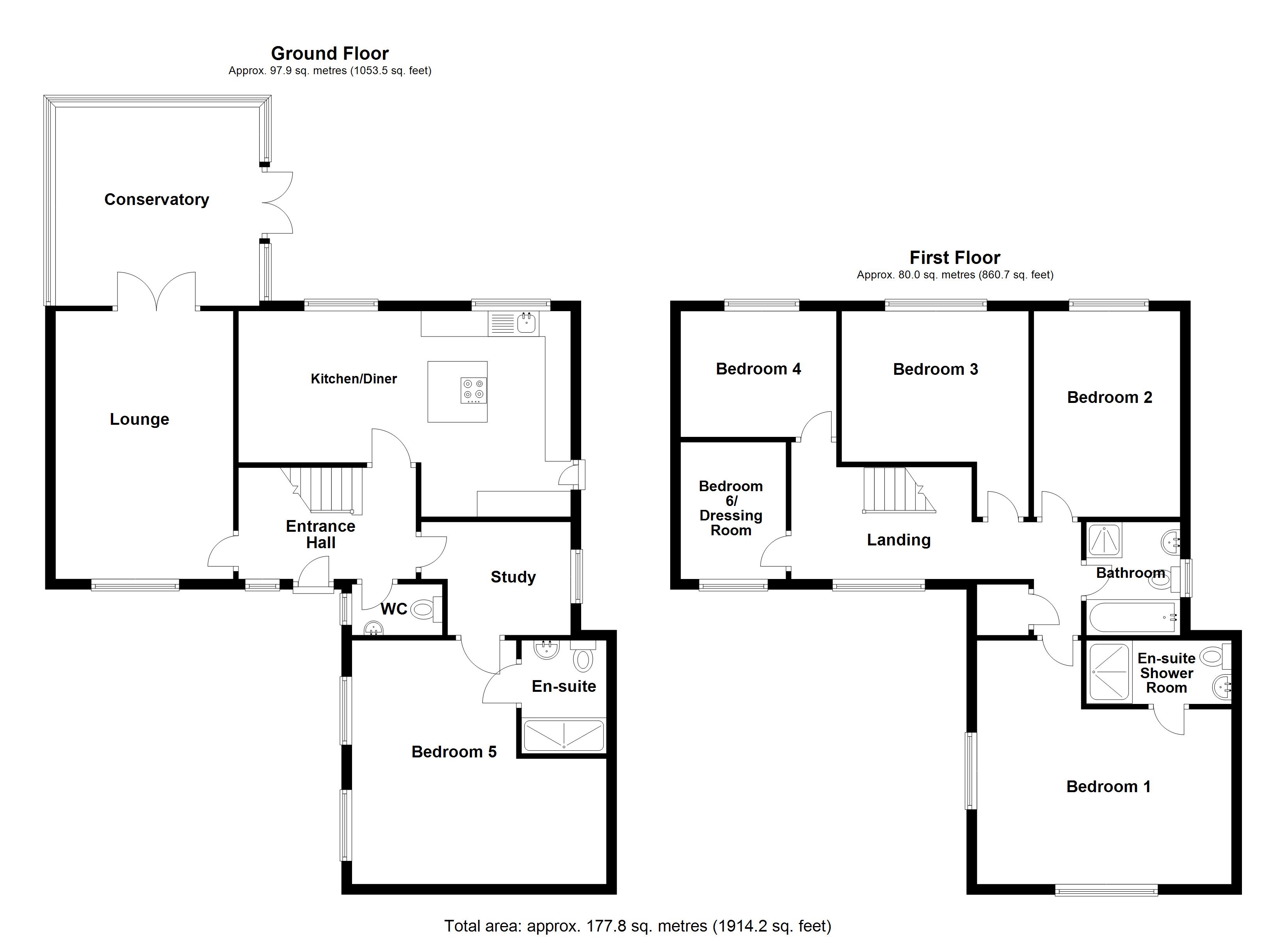
  • Floorplan

PICTURES AND VIDEOS

KEY FEATURES

  • No Onward Chain
  • Modern Detached Family Home
  • Sought After Non Estate Location
  • Six Bedrooms
  • Ground Floor Bedroom With En Suite Wet Room
  • Master Bedroom With En Suite
  • Open Plan Kitchen Diner
  • Bright Conservatory Overlooking Garden
  • South Facing Enclosed Rear Garden
  • Ample Off Street Parking
  • Upgraded Triple Glazed Windows
  • Popular Village Location

KEY INFORMATION

  • Tenure: Freehold
  • Council Tax Band: E
  • Local Authority: North Kesteven District Council

Description

*NO CHAIN* Winkworth are delighted to offer for sale this beautifully presented 5/6 Bedroom modern detached family home, located in a sought-after non-estate position within the popular village of Heckington.

The property benefits from triple glazed windows, creating a bright, energy-efficient home. Offered to the market with no onward chain, this is an ideal opportunity for families and upsizers alike.

The ground floor offers spacious and versatile living accommodation, including a generous lounge with feature fireplace, a modern open-plan kitchen/diner ideal for family life and entertaining, a study, cloakroom and a light-filled conservatory opening onto the rear garden. A major highlight is the garage conversion, which now provides a ground floor double bedroom with its own en-suite wet room, perfect for multi-generational living, guests or those requiring ground floor facilities.

Upstairs, the property offers five further rooms, including a large master bedroom with en-suite shower room, three additional well-proportioned bedrooms and a dressing room / sixth bedroom, providing flexible accommodation to suit a variety of needs. A modern family bathroom completes the first floor.

Externally, the home sits on a generous plot with a smart block-paved driveway providing ample off-road parking for several vehicles, as well as additional space suitable for a caravan or motorhome. The enclosed south-facing rear garden is mainly laid to lawn with patio seating areas.

Rooms and Accommodations

  • Entrance Hall
  • Lounge
  • 5.26m x 3.48m
  • Kitchen/Diner
  • 6.5m x 2.97m
  • Study
  • 2.92m x 2.2m
  • Consevatory
  • 3.66m x 4m
  • WC
  • Bedroom One
  • 4.98m x 4.78m
  • En-suite
  • Bathroom
  • Bedroom Two
  • 4.04m x 2.87m
  • Bedroom Three
  • 3.66m x 2m
  • Bedroom Four
  • 3.05m x 2.46m
  • Bedroom Five
  • 4.98m x 4.78m
  • Ensuite Bathroom
  • Bedroom Six/ Dressing Room
  • 2.7m x 2.06m
  • Agents Note
  • Please note that prior to acceptance of any offer, Waldeck Snarey & Brown Ltd t/a Winkworth are required to verify the identity of the buyer to comply with the requirements of the Money
    Laundering, Terrorist Financing and Transfer of Funds (Information on the Payer) Regulations 2017. We are most grateful for your assistance with this.

Utilities

  • Electricity Supply: Mains Supply
  • Water Supply: Mains Supply
  • Sewerage: Mains Supply
  • Heating: Gas Central
  • Broadband: Cable

Marketed by

Winkworth Sleaford

Properties for sale in Sleaford

Arrange a Viewing

Fill in the form below to arrange your property viewing.

This site is protected by reCAPTCHA and the Google Privacy Policy and Terms of Service apply.
Introduction text for the mortgage calculator

Mortgage Calculator

Fill in the details below to estimate your monthly repayments:

Approximate monthly repayment:

For more information, please contact Winkworth's mortgage partner, Trinity Financial, on +44 (0)20 7267 9399 and speak to the Trinity team.

Stamp Duty Calculator

Fill in the details below to estimate your stamp duty

The above calculator above is for general interest only and should not be relied upon

6/14
Picture No. 04
Picture No. 05
Picture No. 06
Picture No. 07
Picture No. 08
Picture No. 09
Picture No. 10
Picture No. 11
Picture No. 12
Picture No. 15
Picture No. 14
Picture No. 17
Picture No. 16
Picture No. 19
Picture No. 13
Picture No. 18

Meet the Team

Our team are here to support and advise our customers when they need it most. We understand that buying, selling, letting or renting can be daunting and often emotionally meaningful. We are there, when it matters, to make the journey as stress-free as possible.

See all team members

Got a question about this property?

This site is protected by reCAPTCHA and the Google Privacy Policy and Terms of Service apply.

More Properties like this

Under Offer

Chapel Lane, Little Hale, Sleaford, NG34

£725,000 Freehold

London Road, Silk Willoughby, Sleaford, Lincolnshire, NG34

£650,000 Freehold

Hunters Court, Quarrington, Sleaford, Lincolnshire, NG34

£650,000 Freehold

George Street, Helpringham, Sleaford, Lincolnshire, NG34

£650,000 Freehold

High Street, Walcott, Lincoln, Lincolnshire, LN4

£650,000 Freehold

Under Offer

Side Bar Lane, Heckington Fen, Sleaford, Lincolnshire, NG34

£625,000 Freehold

Online Valuations Aren’t Worth The Paper They’re Printed On.

When online valuations don’t give you the whole picture - try Winkworth’s expert service. Get a free property appraisal. Accurate valuations from our local property experts. No obligation to list with Winkworth. Choose a time convenient for you with our online booking system.

Fill in your details and someone will be in touch soon:

You have provisionally booked a valuation for . Please confirm your details below

We don't have date info available for this property, but if you fill in your details below, someone will be in touch to arrange a date soon

Please fill in the required fields below marked with *

This site is protected by reCAPTCHA and the Google Privacy Policy and Terms of Service apply.