Under Offer
Crystal Palace Road, East Dulwich, London, SE22
4 bedroom house
£2,000,000 Freehold
- 4
- 2
- 1
PICTURES AND VIDEOS






















KEY FEATURES
- Semi-detached family home
- Two reception rooms
- Bespoke rear extension
- 65ft landscaped garden
- Four spacious bedrooms
- Loft conversion with en-suite
- Prime location near Lordship Lane
- Catchment for top local schools
- Excellent transport links
KEY INFORMATION
- Tenure: Freehold
- Council Tax Band: C
- Local Authority: Southwark Council
Description
**EXCHANGED**
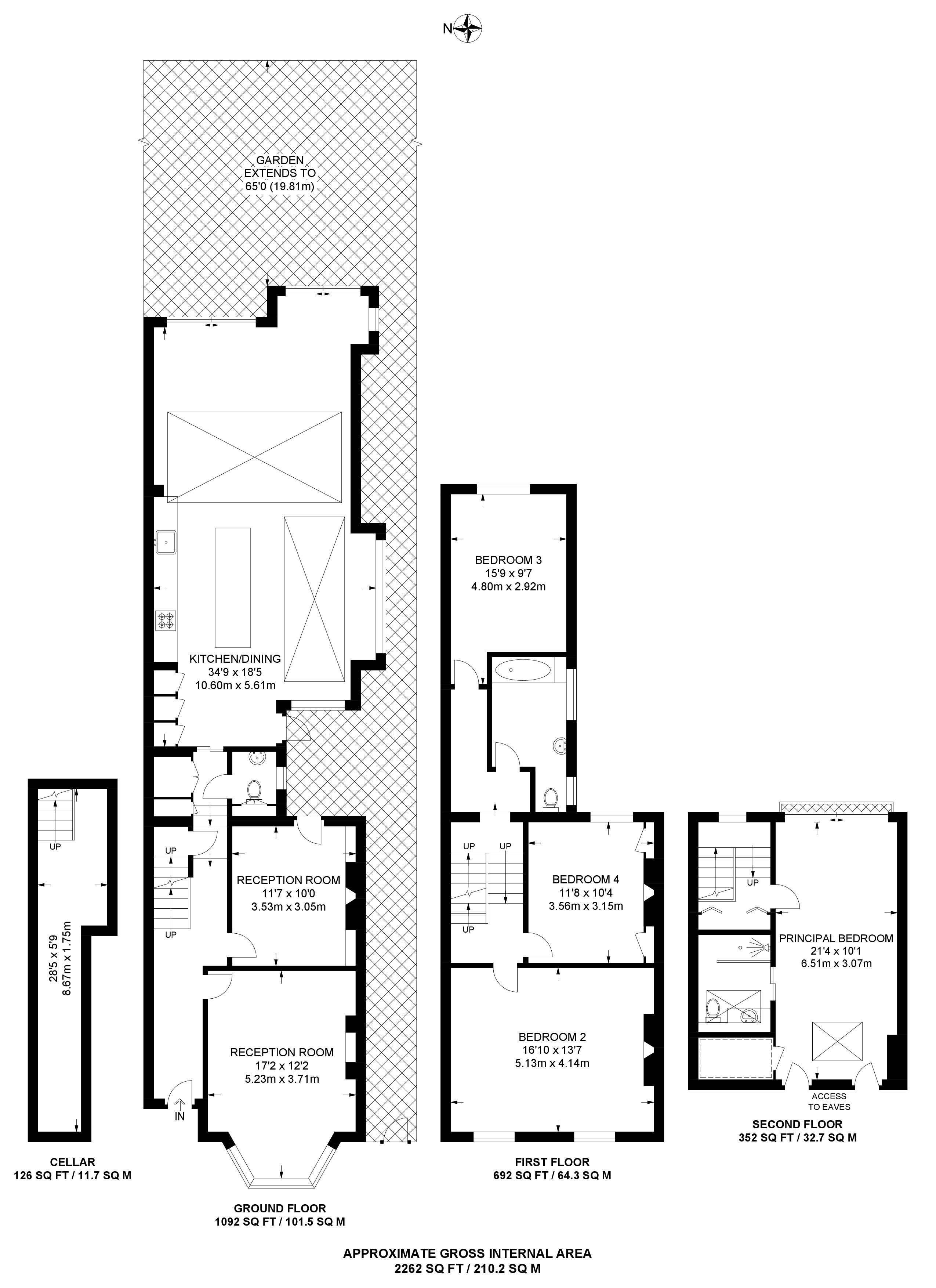
This exceptional home is offered to the market in fantastic condition. From the front door, to the brickwork, to the floors, to the kitchen, every inch has been meticulously thought through. Boasting on the ground floor a stunning, spacious, bright and airy reception, comprising original fireplaces, wood floors and bay window. A second reception currently used as a home office, featuring original fireplace with marble surround and large floor to ceiling window. The show stopper is the rear extension, boasting a serious indoor outdoor feel, tonnes of custom glass flood the area with natural light and further complemented by micro cement flooring (with underfloor heating), two glassbox bays, sliding glass doors and high end appliances all built in. The ground floor further includes a WC, off street parking and cellar. The kitchen diner leads out to spacious 65 foot garden, with patio, mature trees and shrubs and large lawned area. The first floor includes three double bedrooms and a spacious family bathroom. The loft has been converted to provide a large en-suite with fantastic views. A truly beautiful home in of the best locations the area has to offer.
Location is key, boasting easy access to Lordship Lane for its impressive array of shops, bars, and restaurants. School catchments are in abundance with Harris Primary, Heber primary, and Charter East for secondary. Transport links are provided via a short walk to East Dulwich for direct links to London Bridge or Peckham Rye for the Overground.
AGENT NOTES:
Mobile phone coverage:
EE (likely inside and outside)
Three (likely inside and outside)
O2 (likely inside and limited outside)
Vodaphone (limited inside and outside)
(Potential purchasers are advised to seek their own advice as to the suitability of the services and mobile phone coverage, the above is for guidance only.)
Available broadband: Ultrafast Broadband: FTTP Superfast Broadband: FTTC Standard Broadband: ADSL
Networks in your area: EE and Three (Information supplied by Ofcom)
Flood Risk: Very Low risk of surface water flooding and Very low risk river and sea flooding (Information supplied by gov.uk and purchasers are advised to seek their own legal advice)
Local Council: Southwark / Tax Band: C
EPC Rating: D
Floor plan: Whilst every attempt has been made to ensure accuracy, all measurements are approximate and not to scale. The floor plan is for illustrative purposes only.
Location
Mortgage Calculator
Fill in the details below to estimate your monthly repayments:
Approximate monthly repayment:
For more information, please contact Winkworth's mortgage partner, Trinity Financial, on +44 (0)20 7267 9399 and speak to the Trinity team.
Stamp Duty Calculator
Fill in the details below to estimate your stamp duty
The above calculator above is for general interest only and should not be relied upon
Meet the Team
Our team at Winkworth Dulwich Estate Agents are here to support and advise our customers when they need it most. We understand that buying, selling, letting or renting can be daunting and often emotionally meaningful. We are there, when it matters, to make the journey as stress-free as possible.
See all team members