Skip to main content

MyWinkworth

Picture No. 25
Picture No. 03
Picture No. 16
Picture No. 21
Picture No. 05
Picture No. 13
Picture No. 09
Picture No. 10
Picture No. 07
Picture No. 19
Picture No. 24
Picture No. 04
Picture No. 15
Picture No. 06
Picture No. 27
Picture No. 12
Picture No. 08
Picture No. 11
Picture No. 14
Picture No. 23
Picture No. 28
6/14

The Limes, 50 Crooms Hill, Greenwich, London, SE10

3 bedroom flat/apartment in 50 Crooms Hill

Offers in excess of £1,000,000 Share of Freehold

  • Bedrooms 3
  • Bathrooms 2
  • Reception rooms 1
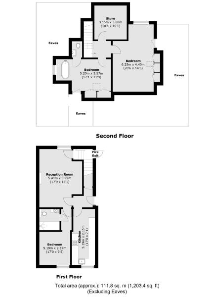
  • Dimensions 1203 sq ft
    111 sq m
  • Floorplan

PICTURES AND VIDEOS

KEY FEATURES

  • three bedroom conversion
  • split level (1st and 2nd)
  • immaculate condition
  • off street parking
  • share of freehold
  • circa 1203 sq ft
  • huge amount of storage
  • perfectly located
  • West Greenwich
  • moments from Royal Park
  • few minutes to town ctr

KEY INFORMATION

  • Tenure: Share of Freehold
  • Lease Length: 999 yrs left
  • Service charge: £2400.00 per annum
  • Council Tax Band: E
  • Local Authority: Greenwich Council

Description

A magnificent three bedroom, split level, conversion flat that is perfectly located on the corner of Crooms Hill and King George Street in West Greenwich. The property measures an impressive 1203 sq ft, features off street parking and a huge amount of storage!



Found on the 1st and 2nd floor of this beautiful detached Georgian house, and in immaculate order throughout, the accommodation comprises a bright 17ft reception room and a lovely galley style kitchen. There are three good sized double bedrooms. Bedroom 2 has a free standing roll top bath and its own sep WC. The master bedroom has fitted wardrobes, but also access to the eaves storage, which wraps around most of the top floor and offering fantastic storage. Bedroom 3 is on the first floor and can be used as a dining room if need be. The main family bathroom is also on this level and is beautifully presented. Along with parking, added benefits include hard wood flooring, bespoke window shutters and a private storage room in the basement to the house.

As mentioned, the house is located in one of the very best positions in Greenwich and sits just mere moments from the gates of The Royal Park, with its Observatory. The town centre is also a few minutes away, which offers a superb array of shops and restaurants, along with Greenwich Market, mainline rail, riverboat service and DLR. Your earliest viewing is highly recommended

Utilities

  • Electricity Supply: Mains Supply
  • Water Supply: Mains Supply
  • Sewerage: Mains Supply
  • Heating: Gas Central

Rights & Restrictions

  • Listed Property: No
  • Restrictions: No
  • Easements, servitudes or wayleaves: No
  • Public right of way: No

Risks

  • Flood Risk: There has not been flooding in the last 5 years
  • Flooding sources affecting the property: River
  • Flood Defence: No

Marketed by

Winkworth Greenwich

Properties for sale in Greenwich

Arrange a Viewing

Fill in the form below to arrange your property viewing.

This site is protected by reCAPTCHA and the Google Privacy Policy and Terms of Service apply.
Introduction text for the mortgage calculator

Mortgage Calculator

Fill in the details below to estimate your monthly repayments:

Approximate monthly repayment:

For more information, please contact Winkworth's mortgage partner, Trinity Financial, on +44 (0)20 7267 9399 and speak to the Trinity team.

Stamp Duty Calculator

Fill in the details below to estimate your stamp duty

The above calculator above is for general interest only and should not be relied upon

6/14
Picture No. 25
Picture No. 03
Picture No. 16
Picture No. 21
Picture No. 05
Picture No. 13
Picture No. 09
Picture No. 10
Picture No. 07
Picture No. 19
Picture No. 24
Picture No. 04
Picture No. 15
Picture No. 06
Picture No. 27
Picture No. 12
Picture No. 08
Picture No. 11
Picture No. 14
Picture No. 23
Picture No. 28

Meet the Team

At Winkworth Greenwich Estate Agents our local know-how and expertise is second to none and we love being part of this vibrant area. Having worked in property for many years in Greenwich, our team of experts are well placed to help you with all your property needs seven days a week.

See all team members

Got a question about this property?

This site is protected by reCAPTCHA and the Google Privacy Policy and Terms of Service apply.

More Properties like this

Video Tour

The Limes, 50 Crooms Hill, Greenwich, London, SE10

Offers in excess of £1,000,000 Share of Freehold

Virtual Tour

Greenwich South Street, Greenwich, London, SE10

Guide Price £775,000 Share of Freehold

8 Cutter Lane, Greenwich, London, SE10

Guide Price £750,000 Leasehold

Under Offer

Thistley Court, Glaisher Street, Deptford, London, SE8

£750,000 Leasehold

Under Offer

Stretton Mansions, Glaisher Street, Deptford, London, SE8

Guide Price £700,000 Leasehold

Video Tour

Galvin House, 35 West Parkside, Greenwich, London, SE10

Guide Price £675,000 Leasehold

Online Valuations Aren’t Worth The Paper They’re Printed On.

When online valuations don’t give you the whole picture - try Winkworth’s expert service. Get a free property appraisal. Accurate valuations from our local property experts. No obligation to list with Winkworth. Choose a time convenient for you with our online booking system.

Fill in your details and someone will be in touch soon:

You have provisionally booked a valuation for . Please confirm your details below

We don't have date info available for this property, but if you fill in your details below, someone will be in touch to arrange a date soon

Please fill in the required fields below marked with *

This site is protected by reCAPTCHA and the Google Privacy Policy and Terms of Service apply.