St. Marys Road, Poringland, Norwich, Norfolk, NR14
3 bedroom bungalow in Poringland
£280,000 Freehold
- 3
- 1
- 2
-
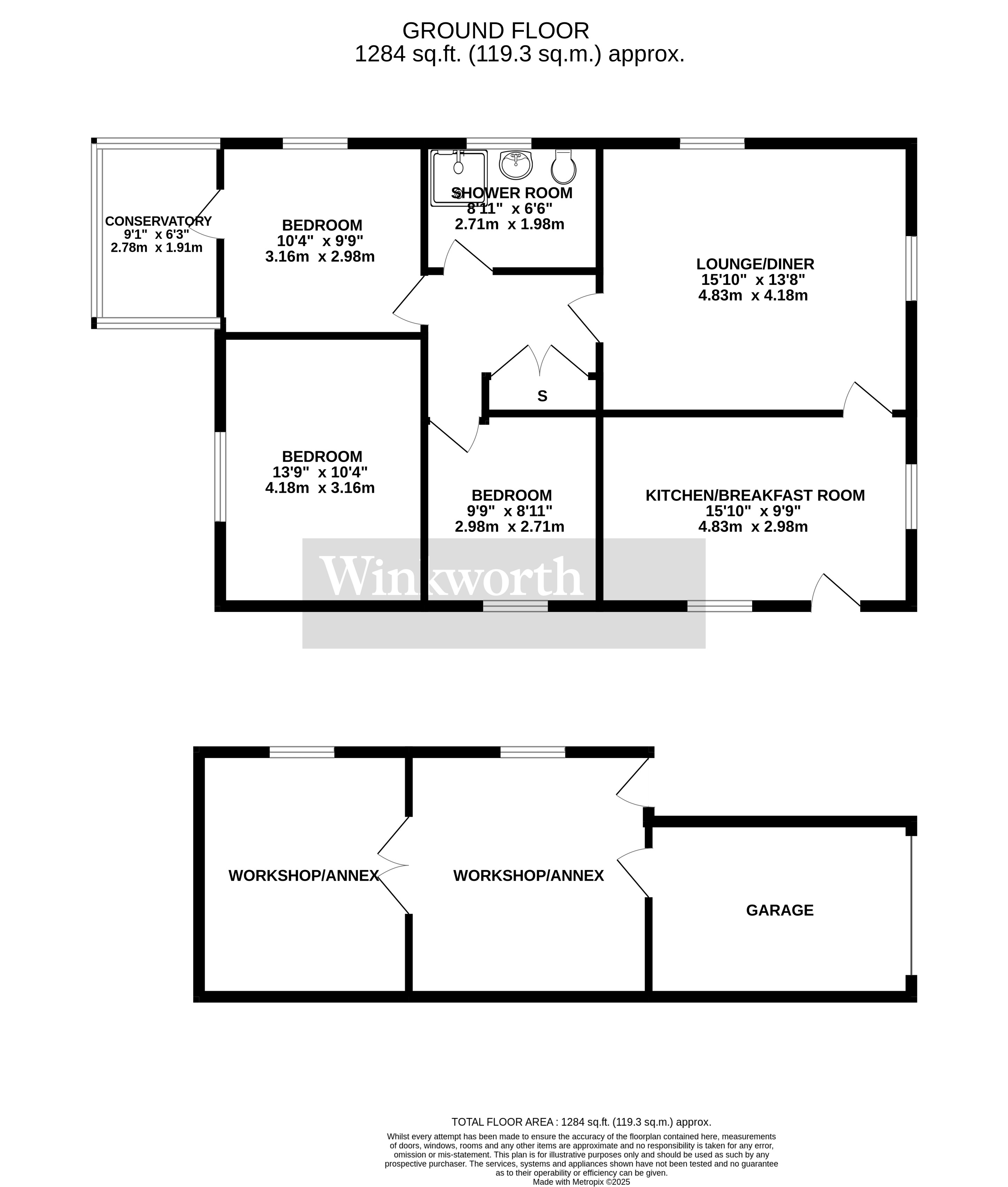
1284 sq ft
119 sq m -
PICTURES AND VIDEOS













KEY FEATURES
- No Onward Chain
- High Desirable Location
- Generously Proportioned Open-Plan Sitting & Dining Room
- Dual Aspect Living Space Flooded With Natural Light
- Kitchen With Ample Storage & Scope For Improvement
- 2 Double Bedrooms With Built-In Wardrobes
- Family Bathroom & Conservatory
- Low-Maintenance Enclosed Rear Garden
- Detached Garage & Sizeable Driveway
- Walking Distance To Local Amenities And Schools
KEY INFORMATION
- Tenure: Freehold
- Council Tax Band: C
Description
Once inside, the bungalow offers a well-balanced layout featuring an impressive double-aspect lounge/diner, a generous kitchen, a bespoke wet room, and three good-sized bedrooms. A conservatory to the rear provides a relaxing space to enjoy the garden views and further enhances the home’s sense of light and connection to the outdoors.
One of the standout features is the versatile suite of two additional rooms attached to the garage—formerly used as workshops. These rooms offer exciting potential (subject to any necessary consents) to be transformed into an annexe, home office, hobby studio, or recreational space, giving this home genuine multi-purpose appeal.
Set on an attractive non-estate plot, the rear of the property enjoys complete privacy, with no other dwellings behind, offering a rare level of seclusion. The garden itself presents a wonderful opportunity for landscaping and creating a calm, private oasis in this quiet and established location.
This is a rare chance to secure a detached bungalow with generous internal space, garden potential, and flexible outbuildings in one of Norfolk’s most desirable village settings.
The thriving village of Poringland plays host to a selection of local amenities which include a supermarket, restaurant, shops and two pubs. Both the local primary and secondary schools are rated 'Good' by Ofsted and the village also benefits from two doctor surgeries, a private dental practice, a pharmacy and a community centre which features a library and cafe.
Additional Information:
Council Tax Band - C
Local Authority - South Norfolk Council
We have been advised that the property is connected to mains water, drainage, electricity and gas.
Winkworth wishes to inform prospective buyers and tenants that these particulars are a guide and act as information only. All our details are given in good faith and believed to be correct at the time of printing but they don’t form part of an offer or contract. No Winkworth employee has authority to make or give any representation or warranty in relation to this property. All fixtures and fittings, whether fitted or not are deemed removable by the vendor unless stated otherwise and room sizes are measured between internal wall surfaces, including furnishings. The services, systems and appliances have not been tested, and no guarantee as to their operability or efficiency can be given.
Marketed by
Winkworth Poringland
Properties for sale in PoringlandArrange a Viewing
Fill in the form below to arrange your property viewing.
Mortgage Calculator
Fill in the details below to estimate your monthly repayments:
Approximate monthly repayment:
For more information, please contact Winkworth's mortgage partner, Trinity Financial, on +44 (0)20 7267 9399 and speak to the Trinity team.
Stamp Duty Calculator
Fill in the details below to estimate your stamp duty
The above calculator above is for general interest only and should not be relied upon
Meet the Team
As the area's newest independent agent we bring with us 30 years of experience, and a love for what we do and the local community around us. Understanding the individual needs of our clients is paramount to who we are. Our newly built office is perfectly positioned within the Budgens complex. We have a modern and vibrant office that offers a warm welcome to our customers as well as providing the perfect setting to showcase our clients' homes. We would love to hear more about your plans to move so please pop in to the office for a coffee when passing. We look forward to meeting you.
See all team members