New Instruction
Rowan Drive, Silk Willoughby, Sleaford, Lincolnshire, NG34
3 bedroom house in Silk Willoughby
£299,950 Freehold
- 3
- 1
- 3
PICTURES AND VIDEOS










KEY FEATURES
- No Chain
- Spacious Detached Family Home
- Approx 1500 Sq Ft
- Quiet Village Location
- Cul-De-Sac Position
- Generous Private Rear Garden
- Ample Parking
- Garage
- Flexible Living Accommodation
- Three Good Sized Bedrooms
- Sought-After Location
KEY INFORMATION
- Tenure: Freehold
- Council Tax Band: C
- Local Authority: North Kesteven District Council
Description
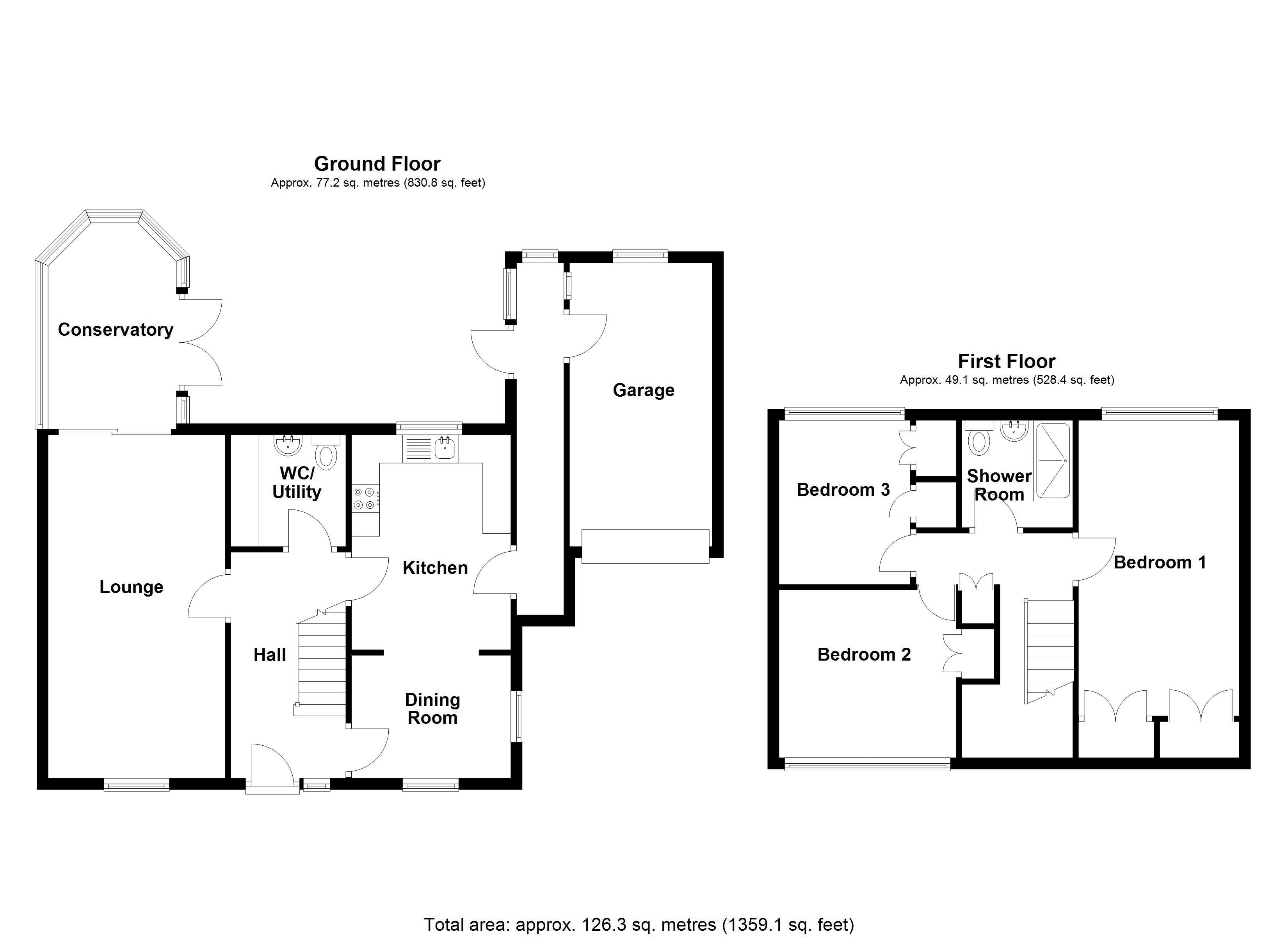
The ground floor includes a lounge, dining room, kitchen, utility/cloakroom, conservatory and side porch giving access to the garage. Upstairs there are three well-proportioned bedrooms and a shower room.
The house benefits from oil-fired central heating and double glazing. Outside, the mature gardens are a real feature. The front garden is mainly laid to lawn with a driveway leading to the garage, while the rear garden is enclosed and not overlooked, with a patio area perfect for summer entertaining.
Silk Willoughby is a stunning idyllic village with a local pub and garden centre, while nearby Sleaford provides a full range of shops, schools and amenities.
Rooms and Accommodations
- Entrance Hall
- Lounge
- 6.1m x 3.15m
- Dining Room
- 2.84m x 2.62m
- Kitchen
- 3.8m x 2.84m
- Utility/WC
- 2.06m x 1.98m
- Conservatory
- 12 x 2.26m
- Bedroom One
- 3.84m x 2.84m
- Bedroom Two
- 3.18m x 2.97m
- Bedroom Three
- 2.9m x 2.34m
- Shower Room
- 1.98m x 1.9m
- Garage
- 5m xs 2.54m
Marketed by
Winkworth Sleaford
Properties for sale in SleafordArrange a Viewing
Fill in the form below to arrange your property viewing.
Mortgage Calculator
Fill in the details below to estimate your monthly repayments:
Approximate monthly repayment:
For more information, please contact Winkworth's mortgage partner, Trinity Financial, on +44 (0)20 7267 9399 and speak to the Trinity team.
Stamp Duty Calculator
Fill in the details below to estimate your stamp duty
The above calculator above is for general interest only and should not be relied upon
Meet the Team
Our team are here to support and advise our customers when they need it most. We understand that buying, selling, letting or renting can be daunting and often emotionally meaningful. We are there, when it matters, to make the journey as stress-free as possible.
See all team members