Skip to main content

MyWinkworth

Under Offer

Picture No. 04
Picture No. 14
Picture No. 10
Picture No. 11
Picture No. 17
Picture No. 15
Picture No. 16
Picture No. 13
Picture No. 12
Picture No. 02
Picture No. 21
Picture No. 18
Picture No. 08
Picture No. 06
Picture No. 07
Picture No. 09
Picture No. 05
Picture No. 03
6/14

Reepham Road, Hellesdon, Norwich, Norfolk, NR6

3 bedroom bungalow in Hellesdon

£240,000 Freehold

  • Bedrooms 3
  • Bathrooms 2
  • Reception rooms 1
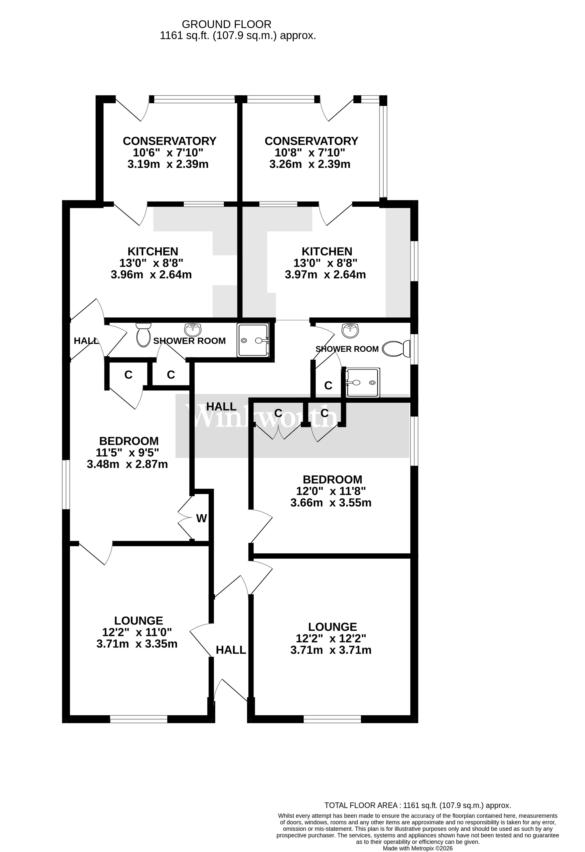
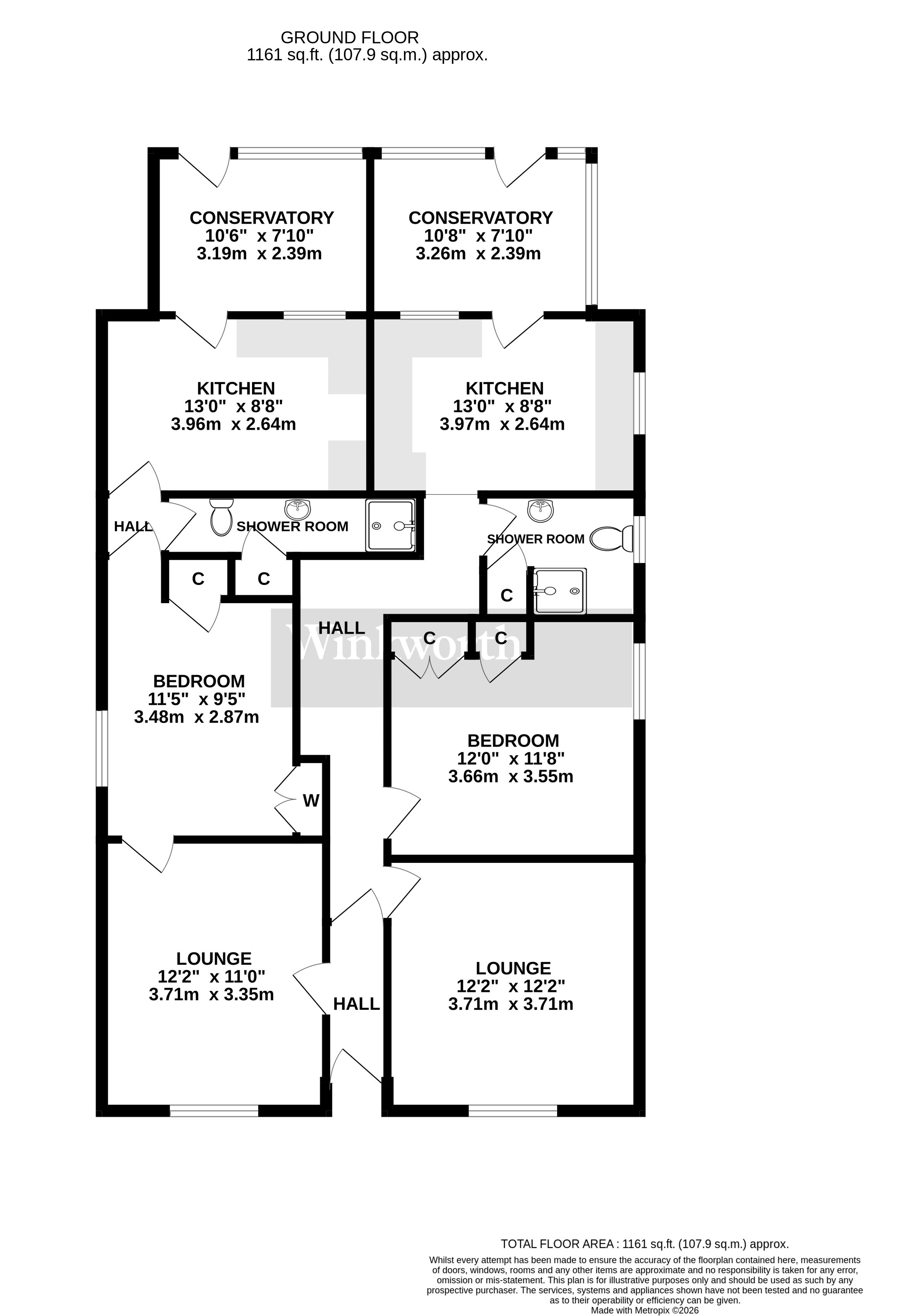
  • Floorplan

PICTURES AND VIDEOS

KEY FEATURES

  • 3 Bedroom Detached Bungalow
  • No Onward Chain
  • 2 Separate Shower Rooms & Kitchens
  • Off-Road Parking To Drive & Garage
  • Generous And Enclosed Rear Garden
  • Double Glazing, Storage Heaters & Gas Fire
  • Potential Investment Opportunity
  • Convenient Access To Local Amenities
  • Excellent Transport Links To Norwich City
  • Viewing Advised - Please Call Now

KEY INFORMATION

  • Tenure: Freehold

Description

Situated in the popular suburb of Hellesdon and offered with No Onward Chain, this spacious three-bedroom detached bungalow offers versatile and well-rounded accommodation. Currently set up as 2 separate one-bedroom flats with the potential to convert back into a single dwelling, this superb home offers prospective buyers a unique opportunity in a well-connected location.

The accommodation currently comprises 2 generous reception rooms to the front of the property, 2 separate double-bedrooms, 2 separate shower rooms and 2 fitted kitchens, both with conservatories to the rear. The bungalow boasts the potential to convert the property back into a single dwelling with 3 double bedrooms and a large kitchen/diner at the rear with ample scope for differing layouts to suit the new owner.

Externally, the property enjoys off-road parking via a private drive, a detached brick-built garage and gated access into the rear garden. The garden itself is a generous and enclosed space, laid mainly to lawn with areas of patio and raised beds.

Located with convenient access to local amenities, schools, and transport links into Norwich city centre, this home combines comfort, convenience and fantastic potential. Whether looking for your next home or a lucrative investment opportuinity, an early viewing is highly recommended to fully appreciate everything this property has to offer.

AGENTS NOTES
Tenure - Freehold
Council Tax Band - A
*The council tax bands for the two flats (124a and 124b) are currently 'A' - If converted back into a single dwelling this will likely change.*
Local Authority - Broadland
We have been advised that the property is connected to mains water, electricity & Gas.

Winkworth wishes to inform prospective buyers and tenants that these particulars are a guide and act as information only. All our details are given in good faith and believed to be correct at the time of printing but they don’t form part of an offer or contract. No Winkworth employee has authority to make or give any representation or warranty in relation to this property. All fixtures and fittings, whether fitted or not are deemed removable by the vendor unless stated otherwise and room sizes are measured between internal wall surfaces, including furnishings. The services, systems and appliances have not been tested, and no guarantee as to their operability or efficiency can be given.
Introduction text for the mortgage calculator

Mortgage Calculator

Fill in the details below to estimate your monthly repayments:

Approximate monthly repayment:

For more information, please contact Winkworth's mortgage partner, Trinity Financial, on +44 (0)20 7267 9399 and speak to the Trinity team.

Stamp Duty Calculator

Fill in the details below to estimate your stamp duty

The above calculator above is for general interest only and should not be relied upon

6/14
Picture No. 04
Picture No. 14
Picture No. 10
Picture No. 11
Picture No. 17
Picture No. 15
Picture No. 16
Picture No. 13
Picture No. 12
Picture No. 02
Picture No. 21
Picture No. 18
Picture No. 08
Picture No. 06
Picture No. 07
Picture No. 09
Picture No. 05
Picture No. 03

Meet the Team

Our team are here to support and advise our customers when they need it most. We understand that buying, selling, letting or renting can be daunting and often emotionally meaningful. We are there, when it matters, to make the journey as stress-free as possible.

See all team members

Got a question about this property?

This site is protected by reCAPTCHA and the Google Privacy Policy and Terms of Service apply.

More Properties like this

Fir Covert Road, Taverham, Norwich, Norfolk, NR8

Guide Price £700,000 Freehold

Under Offer

Sunny Grove, Costessey, Norwich, Norfolk, NR5

Guide Price £475,000 Freehold

Lloyd Road, Taverham, Norwich, Norfolk, NR8

Guide Price £400,000 Freehold

Under Offer

Reepham Road, Hellesdon, Norwich, Norfolk, NR6

Guide Price £375,000 Freehold

Under Offer

Bramble Avenue, Hellesdon, Norwich, Nofolk, NR6

Guide Price £375,000 Freehold

Under Offer

Catton Chase, Old Catton, Norwich, Norfolk, NR6

£350,000 Freehold

Online Valuations Aren’t Worth The Paper They’re Printed On.

When online valuations don’t give you the whole picture - try Winkworth’s expert service. Get a free property appraisal. Accurate valuations from our local property experts. No obligation to list with Winkworth. Choose a time convenient for you with our online booking system.

Fill in your details and someone will be in touch soon:

You have provisionally booked a valuation for . Please confirm your details below

We don't have date info available for this property, but if you fill in your details below, someone will be in touch to arrange a date soon

Please fill in the required fields below marked with *

This site is protected by reCAPTCHA and the Google Privacy Policy and Terms of Service apply.