Skip to main content

MyWinkworth

New Instruction

Picture No. 07
Picture No. 08
Picture No. 09
Picture No. 03
Picture No. 04
Picture No. 05
Picture No. 06
Picture No. 02
6/14

Middleton Crescent, Norwich, Norfolk, NR5

1 bedroom flat/apartment in Norwich

Guide Price £125,000 Leasehold

  • Bedrooms 1
  • Bathrooms 1
  • Reception rooms 1
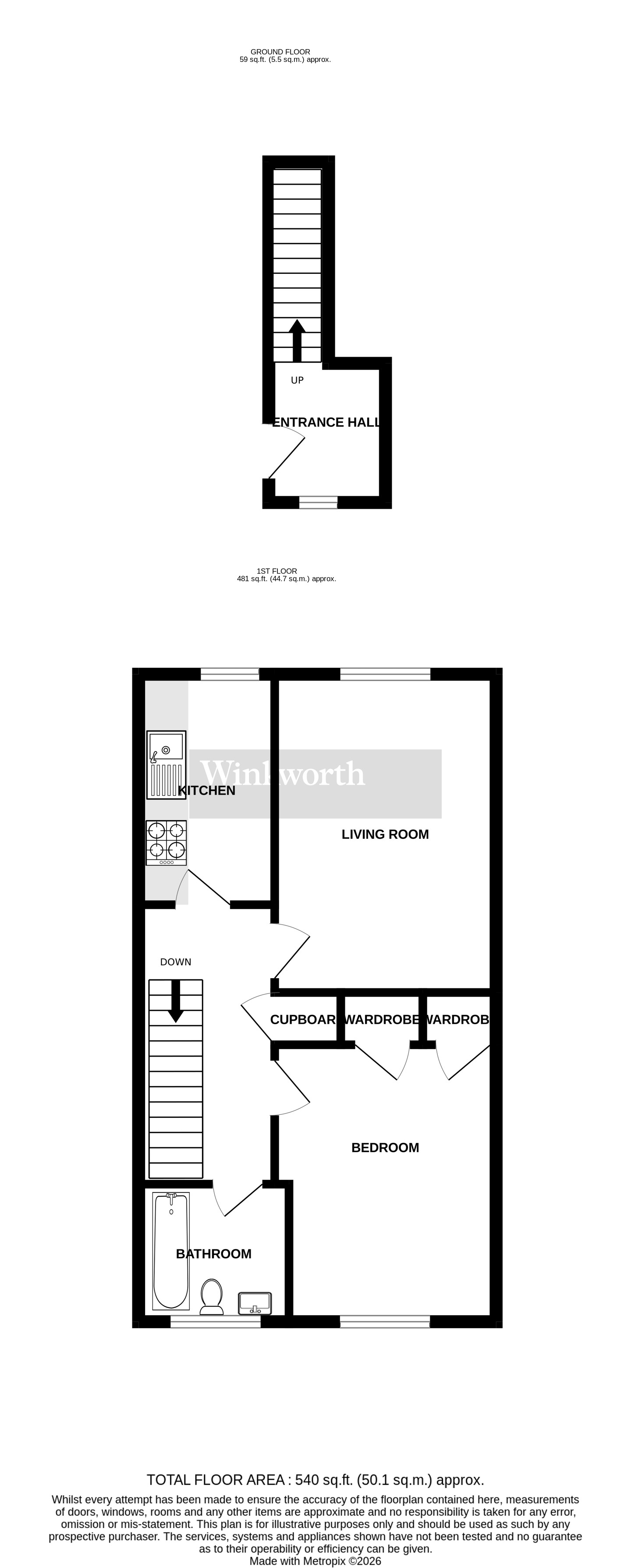
  • Floorplan

PICTURES AND VIDEOS

KEY FEATURES

  • Guide £125,000 To £130,000
  • • No Onward Chain
  • • One Bedroom First Floor Apartment
  • • Private Entrance Hall
  • • Well Proportioned Sitting Room
  • • Modern Fitted Kitchen
  • • Double Bedroom With Built-In Wardrobes
  • • Gas Fired Central Heating And Double Glazing
  • • Allocated Off-Road Parking Space
  • • Popular Costessey Location West Of Norwich

KEY INFORMATION

  • Tenure: Leasehold
  • Lease Length: 104 yrs left
  • Council Tax Band: A
  • Local Authority: Norwich City Council

Description

An immaculately presented one bedroom first floor apartment, discreetly positioned within the popular west Norwich suburb of Costessey and offered to the market with no onward chain. With the benefit of its own private entrance and an allocated off-road parking space, the property represents an excellent opportunity for both first-time buyers and investors alike.

The accommodation is well arranged and approached via a private entrance hall with stairs rising to the first floor landing, providing access to all principal rooms. The sitting room is generously proportioned and enjoys a pleasant rear aspect, creating a light and comfortable living space. The kitchen is fitted with a range of wall and base units with work surfaces over, incorporating a gas hob with extractor, fitted oven and space for freestanding appliances.

The double bedroom is positioned to the front of the property and benefits from built-in wardrobes, while the bathroom is well appointed with a panelled bath and shower over, complemented by a frosted window providing natural light.
The apartment further benefits from double glazing and gas-fired central heating. Externally, there is the advantage of one allocated off-road parking space to the rear.

Costessey is a well-regarded and convenient location to the west of Norwich, offering a range of local amenities, schooling, and excellent access to the University of East Anglia, the Norfolk and Norwich University Hospital, the A47 southern bypass and regular public transport links into the city centre.

The property is held on a leasehold tenure of 125 years from 5 August 2005, with ground rent and service and maintenance charges currently set at £25 per month.

Marketed by

Winkworth Hellesdon

Properties for sale in Hellesdon

Arrange a Viewing

Fill in the form below to arrange your property viewing.

This site is protected by reCAPTCHA and the Google Privacy Policy and Terms of Service apply.
Introduction text for the mortgage calculator

Mortgage Calculator

Fill in the details below to estimate your monthly repayments:

Approximate monthly repayment:

For more information, please contact Winkworth's mortgage partner, Trinity Financial, on +44 (0)20 7267 9399 and speak to the Trinity team.

Stamp Duty Calculator

Fill in the details below to estimate your stamp duty

The above calculator above is for general interest only and should not be relied upon

6/14
Picture No. 07
Picture No. 08
Picture No. 09
Picture No. 03
Picture No. 04
Picture No. 05
Picture No. 06
Picture No. 02

Meet the Team

Our team are here to support and advise our customers when they need it most. We understand that buying, selling, letting or renting can be daunting and often emotionally meaningful. We are there, when it matters, to make the journey as stress-free as possible.

See all team members

Got a question about this property?

This site is protected by reCAPTCHA and the Google Privacy Policy and Terms of Service apply.

More Properties like this

New Instruction

Printworks Drive, Norwich, Norfolk, NR3

£395,000 Leasehold

Ratcliff Court, Gilders Way, Norwich, Norfolk, NR3

£395,000 Leasehold

The Watering, Norwich, Norfolk, NR3

Guide Price £160,000 Leasehold

Gertrude Road, Norwich, Norfolk, NR3

£160,000 Leasehold

Under Offer

Solario Road, Costessey, Norwich, Norfolk, NR8

Guide Price £150,000 Leasehold

Under Offer

Dalrymple Way, Norwich, Norfolk, NR6

Guide Price £140,000 Leasehold

Online Valuations Aren’t Worth The Paper They’re Printed On.

When online valuations don’t give you the whole picture - try Winkworth’s expert service. Get a free property appraisal. Accurate valuations from our local property experts. No obligation to list with Winkworth. Choose a time convenient for you with our online booking system.

Fill in your details and someone will be in touch soon:

You have provisionally booked a valuation for . Please confirm your details below

We don't have date info available for this property, but if you fill in your details below, someone will be in touch to arrange a date soon

Please fill in the required fields below marked with *

This site is protected by reCAPTCHA and the Google Privacy Policy and Terms of Service apply.