New Instruction
Nursery Close, Hellesdon, Norwich, Norfolk, NR6
2 bedroom flat/apartment in Hellesdon
Guide Price £140,000 Leasehold
- 2
- 1
- 1
PICTURES AND VIDEOS











KEY FEATURES
- Guide Price £140,000 - £150,000
- 2 Bedroom First Floor Flat
- Private Entrance Hall & 15ft Lounge
- 11ft Kitchen & Family Bathroom
- Double Glazed With Gas Central Heating
- Access To Communal Garden Area
- Close To Community Centre & Recreation Ground
- Allocated Parking Space To Residents Car Park
- Ideal First Time Buy Or Investment
KEY INFORMATION
- Tenure: Leasehold
- Lease Length: 949 yrs left
- Ground rent: £25.00 per annum
- Service charge: £600.00 per annum
Description
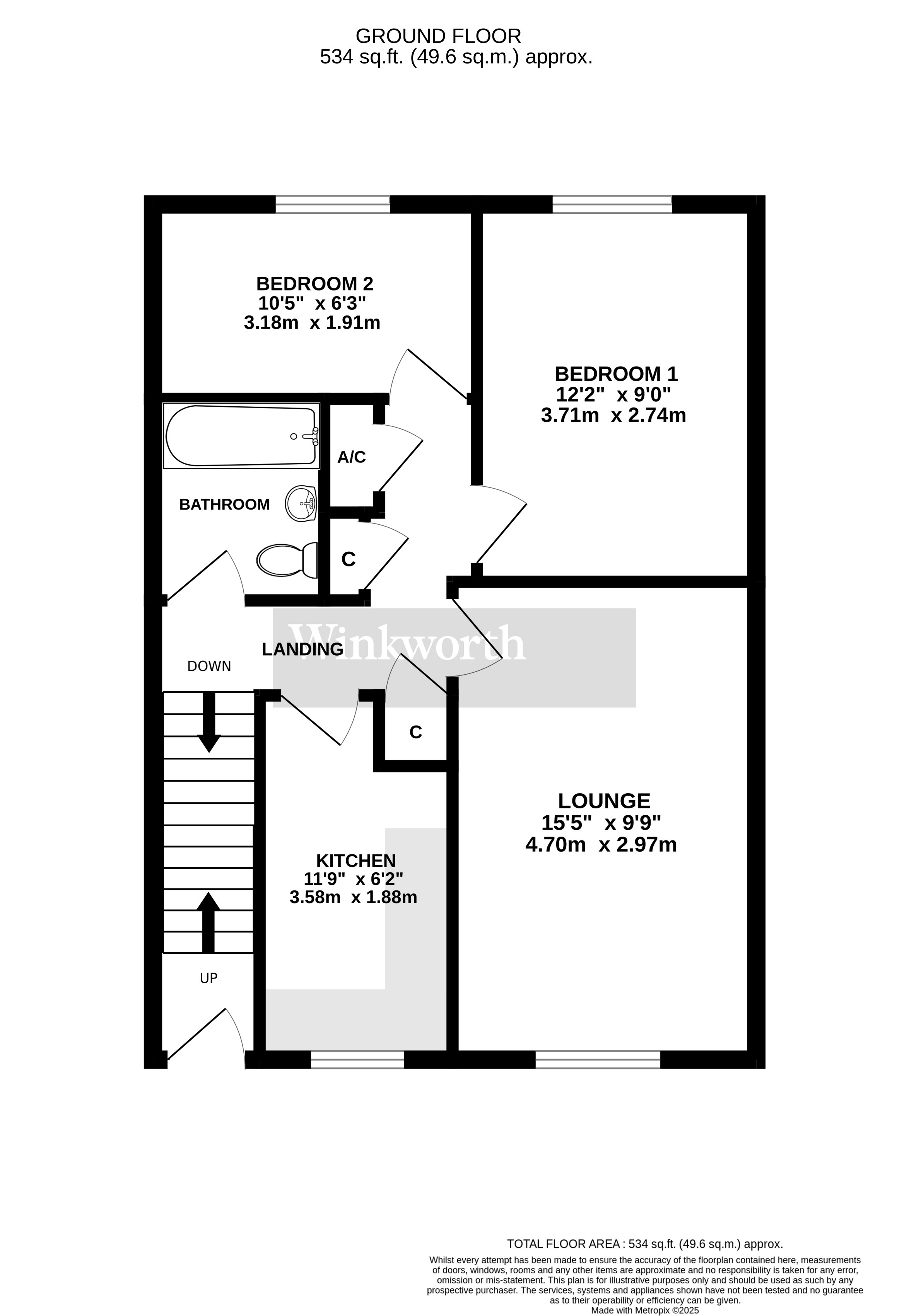
The accommodation on offer consists of a private entrance hall with stairs leading up to the flat, an 11ft kitchen and three-piece family bathroom, 2 bedrooms and a 15ft lounge. The property also benefits from double glazing and gas central heating.
Outside, the flat enjoys shared access to a communal garden area as well as the added bonus of an allocated parking space to the resident’s car park.
With a realistic price and properties of this nature in high demand, make sure you call Winkworth now to arrange your viewing.
AGENTS NOTES
Tenure - Leasehold
Lease Length - 949 Years
Service Charge - £600 Per Annum
Ground Rent - £25 Per Annum
Council Tax Band - A
Local Authority – Broadland
We have been advised that the property is connected to mains water, electricity and gas.
Winkworth wishes to inform prospective buyers and tenants that these particulars are a guide and act as information only. All our details are given in good faith and believed to be correct at the time of printing but they don’t form part of an offer or contract. No Winkworth employee has authority to make or give any representation or warranty in relation to this property. All fixtures and fittings, whether fitted or not are deemed removable by the vendor unless stated otherwise and room sizes are measured between internal wall surfaces, including furnishings. The services, systems and appliances have not been tested, and no guarantee as to their operability or efficiency can be given.
Marketed by
Winkworth Hellesdon
Properties for sale in HellesdonArrange a Viewing
Fill in the form below to arrange your property viewing.
Mortgage Calculator
Fill in the details below to estimate your monthly repayments:
Approximate monthly repayment:
For more information, please contact Winkworth's mortgage partner, Trinity Financial, on +44 (0)20 7267 9399 and speak to the Trinity team.
Stamp Duty Calculator
Fill in the details below to estimate your stamp duty
The above calculator above is for general interest only and should not be relied upon
Meet the Team
Our team are here to support and advise our customers when they need it most. We understand that buying, selling, letting or renting can be daunting and often emotionally meaningful. We are there, when it matters, to make the journey as stress-free as possible.
See all team members