Skip to main content

MyWinkworth

Picture No. 11
Picture No. 17
Picture No. 23
Picture No. 06
Picture No. 20
Picture No. 28
Picture No. 27
Picture No. 26
Picture No. 24
Picture No. 22
Picture No. 21
Picture No. 33
Picture No. 03
Picture No. 15
Picture No. 18
Picture No. 19
Picture No. 04
Picture No. 32
Picture No. 09
Picture No. 29
Picture No. 30
Picture No. 35
Picture No. 34
Picture No. 01
Picture No. 36
Picture No. 02
Picture No. 05
Picture No. 10
Picture No. 13
Picture No. 14
Picture No. 16
Picture No. 12
Picture No. 31
Picture No. 37
6/14

Fakenham Road, Taverham, Norwich, Norfolk, NR8

6 bedroom house in Taverham

Guide Price £675,000 Freehold

  • Bedrooms 6
  • Bathrooms 3
  • Reception rooms 4
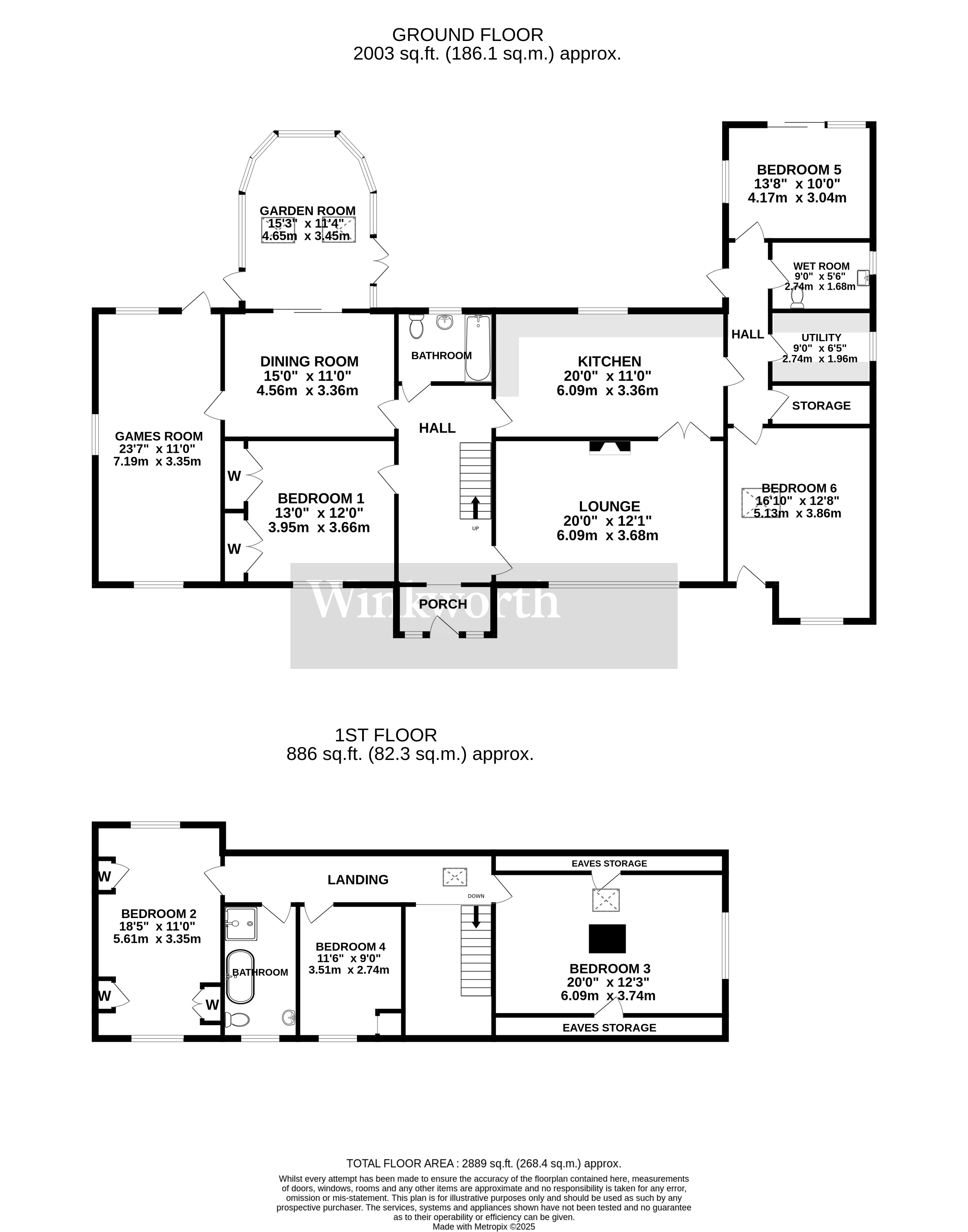
  • Floorplan

PICTURES AND VIDEOS

KEY FEATURES

  • Guide Price £675,000 - £700,000
  • No Onward Chain
  • 6-Bedroom Detached Family Home
  • Front Porch & Welcoming Entrance Hall
  • Spacious 20ft Lounge & 23ft Games Room
  • Modern Fitted Kitchen & Utility Room
  • 15ft Dining Room & Garden Room
  • Modern Wetroom & Family Bathroom
  • Expanssive Mature Gardens & Swimming Pool
  • Convenient Access To Local Emenities

KEY INFORMATION

  • Tenure: Freehold

Description

If you have been in search of a spacious and well-presented family home in Taverham, then look no further than this remarkable 6-bedroom detached house offered with No Onward Chain. Perfectly positioned in a highly sought-after suburb and leaving nothing to be desired, this superb property is certain to impress.

The property on offer presents a wealth of accommodation and greets you with a welcoming porch and entrance hall which provides access to all other areas of this wonderful home. The downstairs comprises a 20ft lounge, a spacious diner leading to the garden room, an impressive 23ft triple-aspect games room, a three-piece family bathroom suite, a modern 20ft kitchen and separate utility room. The downstairs also hosts 3 of the bedrooms with access to a separate wet room, giving this home the potential to accommodate multi-generational living. Upstairs are three further well-proportioned bedrooms and a four-piece family bathroom suite all off landing.

Sitting on a substantial plot, externally the property has so much more to offer. To the front is a generous private driveway with ample off-road parking, attractive front lawns and gated access into the rear garden. The garden itself is an expansive and beautifully established space, bordered by mature planting to crate a high degree of privacy. Laid mainly to lawn with practical areas of patio to create and ideal set up for entertaining and outdoor dining as well as a superb outside heated swimming pool.

Located with access to local amenities, highly regarded schools, countryside walks, and excellent transport links into Norwich city centre, this impressive home combines privacy, space and versatility in an incredibly desirable setting. Properties of this nature seldom become available in this area so don’t miss your opportunity to secure a truly fantastic home.

AGENTS NOTES
Tenure - Freehold
Council Tax Band - F
Local Authority - Broadland
We have been advised that the property is connected to mains water, electricity & gas.

Winkworth wishes to inform prospective buyers and tenants that these particulars are a guide and act as information only. All our details are given in good faith and believed to be correct at the time of printing but they don’t form part of an offer or contract. No Winkworth employee has authority to make or give any representation or warranty in relation to this property. All fixtures and fittings, whether fitted or not are deemed removable by the vendor unless stated otherwise and room sizes are measured between internal wall surfaces, including furnishings. The services, systems and appliances have not been tested, and no guarantee as to their operability or efficiency can be given.

Marketed by

Winkworth Hellesdon

Properties for sale in Hellesdon

Arrange a Viewing

Fill in the form below to arrange your property viewing.

This site is protected by reCAPTCHA and the Google Privacy Policy and Terms of Service apply.
Introduction text for the mortgage calculator

Mortgage Calculator

Fill in the details below to estimate your monthly repayments:

Approximate monthly repayment:

For more information, please contact Winkworth's mortgage partner, Trinity Financial, on +44 (0)20 7267 9399 and speak to the Trinity team.

Stamp Duty Calculator

Fill in the details below to estimate your stamp duty

The above calculator above is for general interest only and should not be relied upon

6/14
Picture No. 11
Picture No. 17
Picture No. 23
Picture No. 06
Picture No. 20
Picture No. 28
Picture No. 27
Picture No. 26
Picture No. 24
Picture No. 22
Picture No. 21
Picture No. 33
Picture No. 03
Picture No. 15
Picture No. 18
Picture No. 19
Picture No. 04
Picture No. 32
Picture No. 09
Picture No. 29
Picture No. 30
Picture No. 35
Picture No. 34
Picture No. 01
Picture No. 36
Picture No. 02
Picture No. 05
Picture No. 10
Picture No. 13
Picture No. 14
Picture No. 16
Picture No. 12
Picture No. 31
Picture No. 37

Meet the Team

Our team are here to support and advise our customers when they need it most. We understand that buying, selling, letting or renting can be daunting and often emotionally meaningful. We are there, when it matters, to make the journey as stress-free as possible.

See all team members

Got a question about this property?

This site is protected by reCAPTCHA and the Google Privacy Policy and Terms of Service apply.

More Properties like this

Newton Street, Newton St Faith, Norwich, Norfolk, NR10

£1,200,000 Freehold

Low Road, Hellesdon, Norwich, Norfolk, NR6

Guide Price £725,000 Freehold

Low Road, Hellesdon, Norwich, Norfolk, NR6

Guide Price £725,000 Freehold

New Road, Stanfield, Dereham, Norfolk, NR20

Guide Price £700,000 Freehold

Under Offer

St. Faiths Road, Old Catton, Norwich, Norfolk, NR6

Guide Price £600,000 Freehold

Under Offer

Philpott Close, Drayton, Norwich, Norfolk, NR8

Guide Price £600,000 Freehold

Online Valuations Aren’t Worth The Paper They’re Printed On.

When online valuations don’t give you the whole picture - try Winkworth’s expert service. Get a free property appraisal. Accurate valuations from our local property experts. No obligation to list with Winkworth. Choose a time convenient for you with our online booking system.

Fill in your details and someone will be in touch soon:

You have provisionally booked a valuation for . Please confirm your details below

We don't have date info available for this property, but if you fill in your details below, someone will be in touch to arrange a date soon

Please fill in the required fields below marked with *

This site is protected by reCAPTCHA and the Google Privacy Policy and Terms of Service apply.