Skip to main content

MyWinkworth

Picture No. 06
Picture No. 16
Picture No. 17
Picture No. 03
Picture No. 02
Picture No. 20
Picture No. 21
Picture No. 14
Picture No. 15
Picture No. 19
Picture No. 18
Picture No. 13
Picture No. 12
Picture No. 04
Picture No. 05
Picture No. 11
Picture No. 07
Picture No. 09
Picture No. 10
Picture No. 08
6/14

Boundary Avenue, Hellesdon, Norwich, Norfolk, NR6

3 bedroom bungalow in Hellesdon

Guide Price £300,000 Freehold

  • Bedrooms 3
  • Bathrooms 2
  • Reception rooms 3
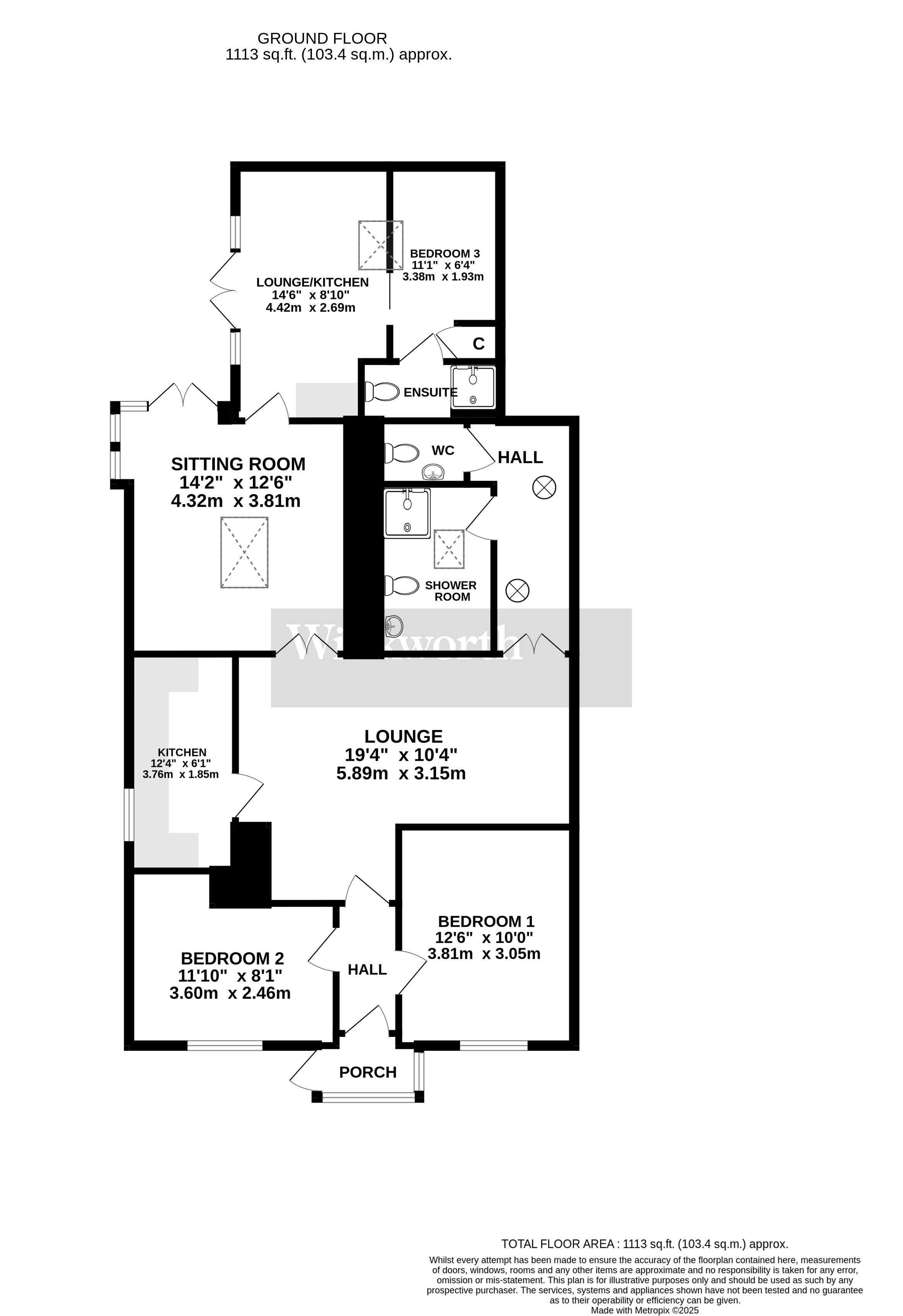
  • Floorplan

PICTURES AND VIDEOS

KEY FEATURES

  • Guide Price £300,000 - £325,000
  • 3-Bedroom Semi-Detached Bungalow
  • Front Porch & Entrance Hall
  • 19ft Lounge & Separate Sitting Room
  • Modern Shower Room & W/C
  • Self-Contained 1-Bedroom Annex
  • Off-Road Parking To Drive & Car Port
  • Detached Garage With Power & Light
  • Convenient Access To Amenities & Transport Links
  • Call Now To Arrange Your Viewing

KEY INFORMATION

  • Tenure: Freehold

Description

Located with fantastic transport links into Norwich City and a host of local amenities is this extended 3-bedroom semi-detached bungalow. With a versatile layout and plenty of scope to truly make this home your own, this bungalow is a superb opportunity to acquire a spacious property in a well-connected area.

The property comprises a porch and entrance hall, 2 double bedrooms to the front, a 19ft lounge, fitted kitchen, modern shower room & w/c. At the rear is a separate sitting room with a stylish roof-lantern and space for a dining table before leading you to a further extension which has been thoughtfully turned into an annex with a lounge/kitchen, double bedroom & ensuite.

Outside, the bungalow enjoys off-road parking to the front, a single garage complete with power and light in addition to gated access into the rear garden via a car port, providing further off-road parking. The garden itself is a private and enclosed space laid to lawn with a generous area of stylish patio.

Set within easy reach of local amenities, schools, transport links, and Norwich city centre, this delightful home is ready to move into and offers excellent scope for personalisation or further enhancement. Please contact Winkworth now to arrange your viewing.

AGENTS NOTES
Tenure - Freehold
Council Tax Band - C
Local Authority - Broadland
We have been advised that the property is connected to mains water, electricity and gas.


Winkworth wishes to inform prospective buyers and tenants that these particulars are a guide and act as information only. All our details are given in good faith and believed to be correct at the time of printing but they don’t form part of an offer or contract. No Winkworth employee has authority to make or give any representation or warranty in relation to this property. All fixtures and fittings, whether fitted or not are deemed removable by the vendor unless stated otherwise and room sizes are measured between internal wall surfaces, including furnishings. The services, systems and appliances have not been tested, and no guarantee as to their operability or efficiency can be given.

Marketed by

Winkworth Hellesdon

Properties for sale in Hellesdon

Arrange a Viewing

Fill in the form below to arrange your property viewing.

This site is protected by reCAPTCHA and the Google Privacy Policy and Terms of Service apply.
Introduction text for the mortgage calculator

Mortgage Calculator

Fill in the details below to estimate your monthly repayments:

Approximate monthly repayment:

For more information, please contact Winkworth's mortgage partner, Trinity Financial, on +44 (0)20 7267 9399 and speak to the Trinity team.

Stamp Duty Calculator

Fill in the details below to estimate your stamp duty

The above calculator above is for general interest only and should not be relied upon

6/14
Picture No. 06
Picture No. 16
Picture No. 17
Picture No. 03
Picture No. 02
Picture No. 20
Picture No. 21
Picture No. 14
Picture No. 15
Picture No. 19
Picture No. 18
Picture No. 13
Picture No. 12
Picture No. 04
Picture No. 05
Picture No. 11
Picture No. 07
Picture No. 09
Picture No. 10
Picture No. 08

Meet the Team

Our team are here to support and advise our customers when they need it most. We understand that buying, selling, letting or renting can be daunting and often emotionally meaningful. We are there, when it matters, to make the journey as stress-free as possible.

See all team members

Got a question about this property?

This site is protected by reCAPTCHA and the Google Privacy Policy and Terms of Service apply.

More Properties like this

Fir Covert Road, Taverham, Norwich, Norfolk, NR8

Guide Price £725,000 Freehold

Under Offer

Sunny Grove, Costessey, Norwich, Norfolk, NR5

Guide Price £475,000 Freehold

Under Offer

Harbord Road, Frettenham, Norwich, Norfolk, NR12

Guide Price £375,000 Freehold

Under Offer

Bramble Avenue, Hellesdon, Norwich, Nofolk, NR6

Guide Price £375,000 Freehold

Under Offer

Prince Andrews Road, Hellesdon, Norwich, Norfolk, NR6

£375,000 Freehold

Under Offer

Russell Avenue, Spixworth, Norwich, Norfolk, NR10

Guide Price £375,000 Freehold

Online Valuations Aren’t Worth The Paper They’re Printed On.

When online valuations don’t give you the whole picture - try Winkworth’s expert service. Get a free property appraisal. Accurate valuations from our local property experts. No obligation to list with Winkworth. Choose a time convenient for you with our online booking system.

Fill in your details and someone will be in touch soon:

You have provisionally booked a valuation for . Please confirm your details below

We don't have date info available for this property, but if you fill in your details below, someone will be in touch to arrange a date soon

Please fill in the required fields below marked with *

This site is protected by reCAPTCHA and the Google Privacy Policy and Terms of Service apply.