Skip to main content

MyWinkworth

Under Offer

Picture No. 01
Picture No. 09
Picture No. 05
Picture No. 04
Picture No. 02
Picture No. 03
Picture No. 06
Picture No. 07
Picture No. 08
Picture No. 10
6/14

Monson Road, London, NW10

2 bedroom flat/apartment in London

£554 per week (£2,400 per month) Fees may apply

  • Bedrooms 2
  • Bathrooms 1
  • Reception rooms 1
  • Unfurnished
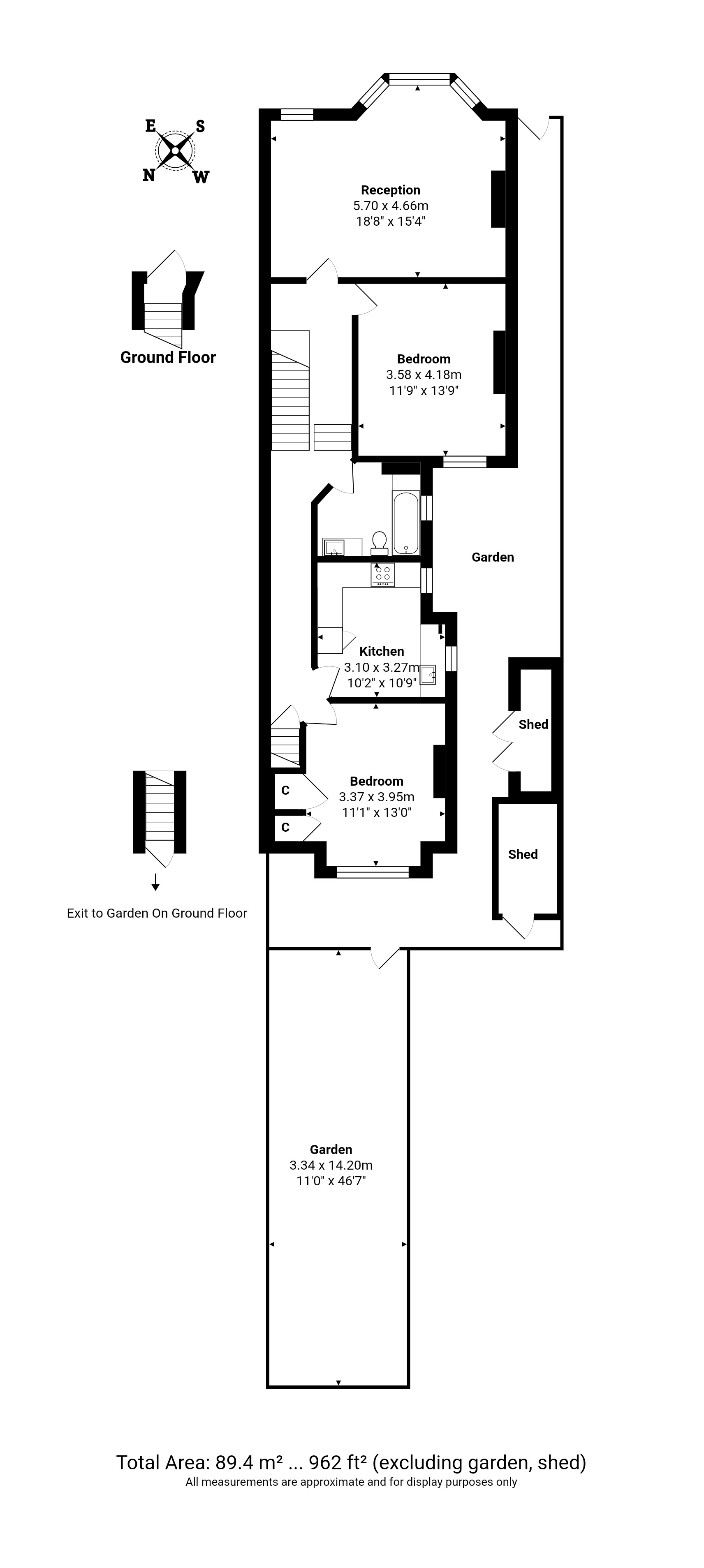
  • Dimensions 962 sq ft
    89 sq m
  • Floorplan

PICTURES AND VIDEOS

KEY FEATURES

  • Bright Bay Fronted Reception Room
  • Two Double Bedrooms
  • Seperate Fully Fitted Kitchen
  • Stylish Bathroom With Underfloor Heating
  • Mixture Between Wooden Flooring And New Carpets
  • Private Rear Garden
  • Unfurnished

KEY INFORMATION

  • Deposit: 5 Weeks rent
  • Council Tax Band: D
  • Local Authority: London Borough Of Brent

Description

Modern first floor, period conversion comprises of two large double bedrooms, a bright bay fronted reception room with hard wood flooring, stylish tiled bathroom and a separate fully fitted kitchen.

Winkworth are delighted to offer this first floor apartment which had previously been stripped back and rebuilt. Currently tenanted, the owners will also ensure that the apartment shows in an immaculate state including redecoration throughout prior to a new tenancy start date.

Benefiting from the extra space that a first floor apartment has to offer but with two access points to a private garden to the rear. (one internally and the other around the side)

With two double bedrooms, a south facing reception room which has stripped original wooden flooring, a feature fireplace and a stylish tiled bathroom (With underfloor heating), this flat really has it all.

The separate kitchen is larger than your average galley kitchen, fitting in all modern white goods and appliances.

Additional features include side access to the rear of the property allowing further access to the rear garden.

Please note that the photos are from a previous tenancy and the garden will be laid with astro turf.

Location

Monson Road is a quiet tree lined residential road which is but a short walk from the hustle and bustle that Kensal Rise/ Kensal Green and Harlesden has to offer. With access from Willesden Junction across the city, this location is very well linked up.
6/14
Picture No. 01
Picture No. 09
Picture No. 05
Picture No. 04
Picture No. 02
Picture No. 03
Picture No. 06
Picture No. 07
Picture No. 08
Picture No. 10

Meet the Team

Our team are here to support and advise our customers when they need it most. We understand that buying, selling, letting or renting can be daunting and often emotionally meaningful. We are there, when it matters, to make the journey as stress-free as possible.

See all team members

Got a question about this property?

This site is protected by reCAPTCHA and the Google Privacy Policy and Terms of Service apply.

More Properties like this

Under Offer

Lichfield House, Tollgate Gardens,, London, NW6

£1,223 per week (£5,300 per month)

Dartmouth Road, Willesden Green, London, NW2

£669 per week (£2,900 per month)

Keslake Road, London, NW6

£635 per week (£2,750 per month)

Claridge House, 91 Mortimer Road, London, NW10

£577 per week (£2,500 per month)

Chandos Road, Willesden Green, London, NW2

£554 per week (£2,400 per month)

Let Agreed

Herbert Gardens, London, NW10

£542 per week (£2,350 per month)

Online Valuations Aren’t Worth The Paper They’re Printed On.

When online valuations don’t give you the whole picture - try Winkworth’s expert service. Get a free property appraisal. Accurate valuations from our local property experts. No obligation to list with Winkworth. Choose a time convenient for you with our online booking system.

Fill in your details and someone will be in touch soon:

You have provisionally booked a valuation for . Please confirm your details below

We don't have date info available for this property, but if you fill in your details below, someone will be in touch to arrange a date soon

Please fill in the required fields below marked with *

This site is protected by reCAPTCHA and the Google Privacy Policy and Terms of Service apply.