Let
Chandos Road, Willesden Green, London, NW2
2 bedroom flat/apartment
£531 per week
- 2
- 1
- 1
- Unfurnished
PICTURES AND VIDEOS











KEY FEATURES
- Two Double Bedroom
- Ground Floor Apartment
- Half Cellar - great for storage
- Private Garden
- Offered Unfurnished (with one Large Double Wooden Wardrobe)
- Great Location
- Managed By Winkworth
KEY INFORMATION
- Deposit: 5 Weeks rent
- Council Tax Band: D
- Local Authority: Brough Of Brent
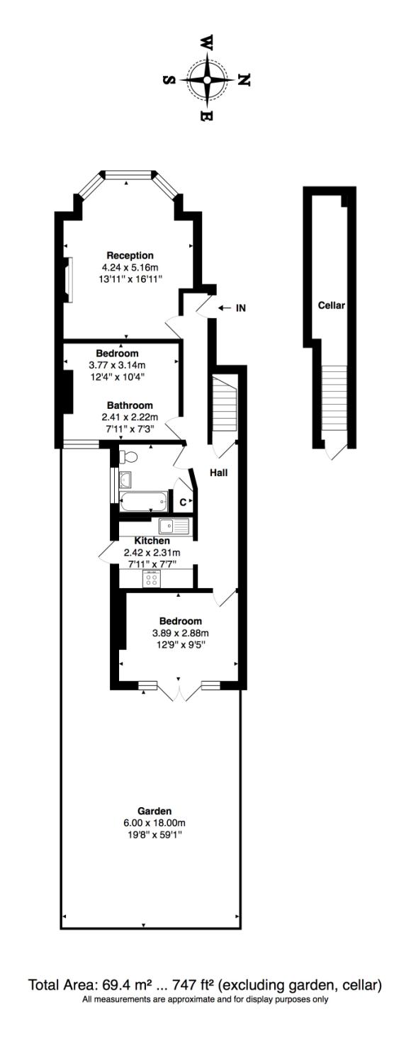
Description
Presenting this stunning recently decorated ground floor two bedroom conversion to the lettings market.
Comprising of two spacious double bedrooms, large bay fronted reception, modern kitchen, fully fitted bathroom and a large private garden.
Additional features include hard wood flooring (NOW PAINTED IN A LIGHT GREY) original features including a feature fireplace and high ceilings, a half cellar, and the apartment is located moments from Gladstone Park.
Offered Unfurnished but with a large double wooden wardrobe.
NEW PHOTOS from 25th January 2023.
Viewings highly recommended to truly appreciate this stunning property.
Council tax - (Band D)
Ward - Dudden Hill
Location
Meet the Team
Our team are here to support and advise our customers when they need it most. We understand that buying, selling, letting or renting can be daunting and often emotionally meaningful. We are there, when it matters, to make the journey as stress-free as possible.
See all team members