Skip to main content

MyWinkworth

Picture No. 26
Picture No. 27
Picture No. 28
Picture No. 30
Picture No. 31
Picture No. 29
Picture No. 23
Picture No. 24
Picture No. 16
Picture No. 25
Picture No. 09
Picture No. 12
6/14

Hartland Road, London, NW6

2 bedroom flat/apartment in London

£646 per week (£2,800 per month) Fees may apply

  • Bedrooms 2
  • Bathrooms 1
  • Reception rooms 1
  • Unfurnished
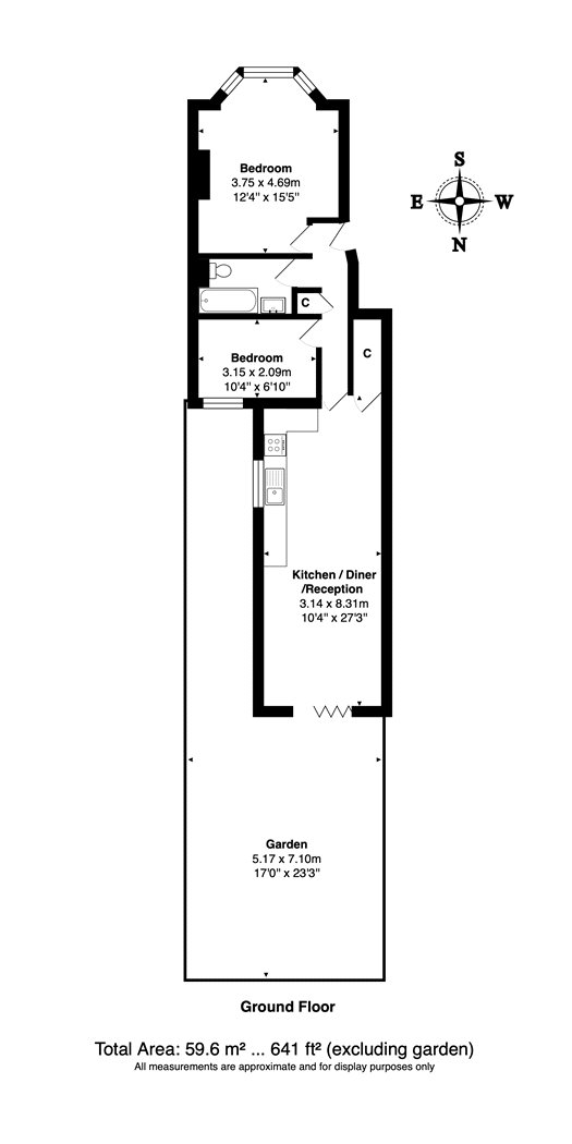
  • Dimensions 641 sq ft
    59 sq m
  • Floorplan

PICTURES AND VIDEOS

KEY FEATURES

  • Two Double Bedrooms
  • Fully Tiled Bathroom
  • Hard Wood Flooring Throughout
  • Open-Plan Kitchen Reception
  • Private Garden
  • Great Location In Queens Park
  • Professionally Managed

KEY INFORMATION

  • Deposit: 5 Weeks rent
  • Council Tax Band: D
  • Local Authority: Brough Of Brent

Description

An exceptional two double bedroom garden flat with open plan kitchen reception and private garden. Located moments from Queens Park itself.

This stylish two bedroom garden flat is located on a desirable road in Queens Park. Finished to exacting standards the property features a high specification kitchen with fully integrated appliances including a fridge freezer, a dishwasher and microwave. The property has solid engineered oak flooring throughout, sash windows and bi-folding doors leading on to a private garden with a decked area and lawn.

Additional features include over entrance storage, under stair storage, a great location and is offered unfurnished. (There is a small wooden table in the kitchen)

Location

Hartland Road is located close to the amenities of Salusbury Road where a whole host shops, bars and eateries can be found.

Locals will also have heard of the buzz around the very popular Lonsdale Road, thriving with new business such as Carmel, don’t tell dad, Milk Beach, the Wolfpack, Tempo (indoor golf range), Pizza Pilgrims all located on one road. A very popular place to spend your off time.

The beautiful Queens Park itself is also very close by as is Queens Park overland and tube stations (Bakerloo line, & Lioness Line Zone 2).

Marketed by

Winkworth Kensal Rise & Queen's Park

Properties for rent in Kensal Rise & Queen's Park

Arrange a Viewing

Fill in the form below to arrange your property viewing.

This site is protected by reCAPTCHA and the Google Privacy Policy and Terms of Service apply.
6/14
Picture No. 26
Picture No. 27
Picture No. 28
Picture No. 30
Picture No. 31
Picture No. 29
Picture No. 23
Picture No. 24
Picture No. 16
Picture No. 25
Picture No. 09
Picture No. 12

Meet the Team

Our team are here to support and advise our customers when they need it most. We understand that buying, selling, letting or renting can be daunting and often emotionally meaningful. We are there, when it matters, to make the journey as stress-free as possible.

See all team members

Got a question about this property?

This site is protected by reCAPTCHA and the Google Privacy Policy and Terms of Service apply.

More Properties like this

Under Offer

Lichfield House, Tollgate Gardens,, London, NW6

£1,223 per week (£5,300 per month)

Under Offer

Wrentham Avenue, London, NW10

£715 per week (£3,100 per month)

Dartmouth Road, Willesden Green, London, NW2

£669 per week (£2,900 per month)

Hartland Road, London, NW6

£646 per week (£2,800 per month)

Keslake Road, London, NW6

£635 per week (£2,750 per month)

Bolton Gardens, London, NW10

£600 per week (£2,600 per month)

Online Valuations Aren’t Worth The Paper They’re Printed On.

When online valuations don’t give you the whole picture - try Winkworth’s expert service. Get a free property appraisal. Accurate valuations from our local property experts. No obligation to list with Winkworth. Choose a time convenient for you with our online booking system.

Fill in your details and someone will be in touch soon:

You have provisionally booked a valuation for . Please confirm your details below

We don't have date info available for this property, but if you fill in your details below, someone will be in touch to arrange a date soon

Please fill in the required fields below marked with *

This site is protected by reCAPTCHA and the Google Privacy Policy and Terms of Service apply.