Skip to main content

MyWinkworth

New Instruction

Picture No. 16
Picture No. 01
Picture No. 10
Picture No. 02
Picture No. 07
Picture No. 03
Picture No. 06
Picture No. 12
Picture No. 04
Picture No. 05
Picture No. 08
Picture No. 09
Picture No. 17
Picture No. 11
6/14

Wimborne Road, Southend-on-Sea, Essex, SS2

2 bedroom flat/apartment in Southend-on-Sea

£180,000 Leasehold

  • Bedrooms 2
  • Bathrooms 1
  • Reception rooms 1
  • Floorplan

PICTURES AND VIDEOS

KEY FEATURES

  • First Floor Flat
  • Two Bedrooms
  • Spacious Lounge
  • Good Size Kitchen/Breakfast Room
  • Bathroom
  • Own Rear Garden
  • Vacant Possession

KEY INFORMATION

  • Tenure: Leasehold
  • Lease Length: 147 yrs left
  • Council Tax Band: B

Description

A spacious first-floor apartment boasting 2 bedrooms and a private garden. The property is located in a popular area, close to local amenities and excellent transport links with mainline railway stations to LondonIdeal for professionals or a small family. Viewing highly recommended.

This spacious first-floor apartment boasts two bedrooms and its own garden. The property features a kitchen/breakfast room. The property is situated in a popular area.

With easy access to Southend High Street with its vast array of shops, restaurants and transport links with two mainline railway stations to London City, this apartment provides the perfect balance of convenience and comfort.

Don't miss out on the opportunity to make this spacious apartment your new home. Contact us today to arrange a viewing and experience all that this property has to offer.


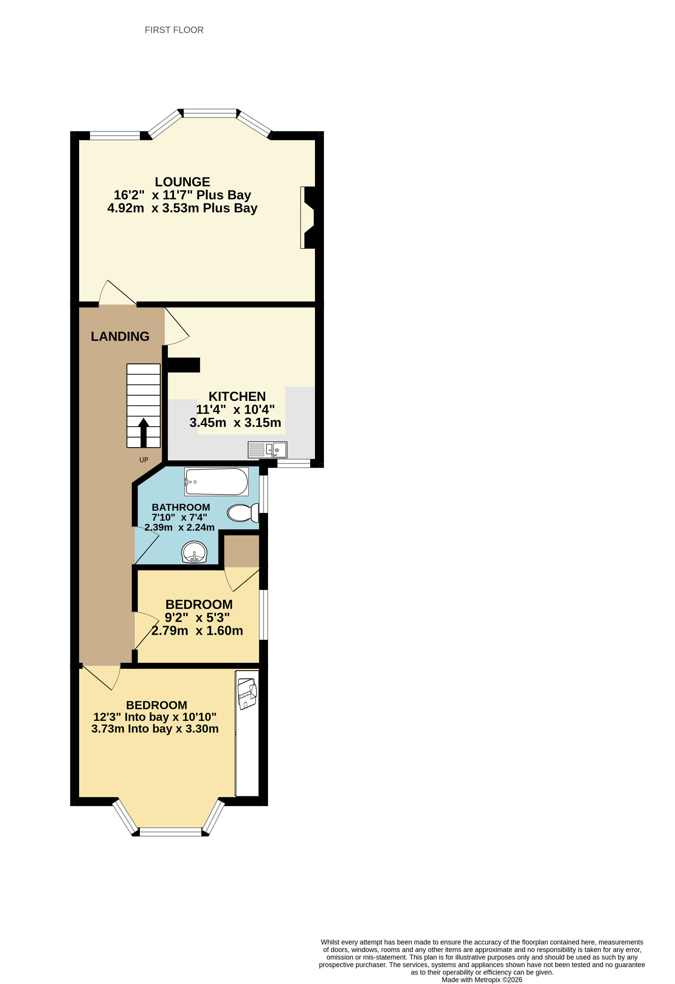
Accommodation: -

Communal entrance door to entrance hall

Entrance door leading to stairs to first floor

Landing: - Doors to all rooms. Loft Access.

Lounge: - 16’2 x 11’7 plus bay. Double glazed bay
window to front and further window to front. Radiator and feature fireplace.

Bedroom One: -12’3 into bay x 10’10. Double glazed bay window to rear. Radiator.

Bedroom Two: -9’2 x 5’3. Double glazed window to side. Built in cupboard housing gas boiler.

Bathroom: -7’10 x 7’4 max. Obscure double-glazed window to side. Three-piece suite comprising bath, low level wc and wash hand basin.

Kitchen/breakfast room: - 11’4 x 10’4. Double glazed window to rear. Working surfaces with base and eye-level units. Sink unit and space for kitchen appliances. Radiator

Own rear garden.

ACCESSIBILITY

  • Unsuitable For Wheelchairs

Utilities

  • Electricity Supply: Mains Supply
  • Water Supply: Mains Supply
  • Sewerage: Mains Supply

Rights & Restrictions

  • Listed Property: No

Marketed by

Winkworth Leigh-on-Sea

Properties for sale in Leigh-on-Sea

Arrange a Viewing

Fill in the form below to arrange your property viewing.

This site is protected by reCAPTCHA and the Google Privacy Policy and Terms of Service apply.
Introduction text for the mortgage calculator

Mortgage Calculator

Fill in the details below to estimate your monthly repayments:

Approximate monthly repayment:

For more information, please contact Winkworth's mortgage partner, Trinity Financial, on +44 (0)20 7267 9399 and speak to the Trinity team.

Stamp Duty Calculator

Fill in the details below to estimate your stamp duty

The above calculator above is for general interest only and should not be relied upon

6/14
Picture No. 16
Picture No. 01
Picture No. 10
Picture No. 02
Picture No. 07
Picture No. 03
Picture No. 06
Picture No. 12
Picture No. 04
Picture No. 05
Picture No. 08
Picture No. 09
Picture No. 17
Picture No. 11

Meet the Team

Our team at Winkworth Leigh-on-Sea Estate Agents are here to support and advise our customers when they need it most. We understand that buying, selling, letting or renting can be daunting and often emotionally meaningful. We are there, when it matters, to make the journey as stress-free as possible.

See all team members

Got a question about this property?

This site is protected by reCAPTCHA and the Google Privacy Policy and Terms of Service apply.

More Properties like this

Video Tour

Broadway, Leigh-on-Sea, Essex, SS9

£550,000 Leasehold

London Road, Leigh On Sea, SS9

Guide Price £475,000 Leasehold

London Road, Leigh On Sea, SS9

Guide Price £400,000 Leasehold

Under Offer

London Road, Leigh On Sea, SS9

Guide Price £325,000 Leasehold

Lord Roberts Avenue, Leigh-on-Sea, Essex, SS9

Guide Price £300,000 Leasehold

Under Offer

Highcliff Drive, Leigh-on-Sea, Essex, SS9

£300,000 Leasehold

Online Valuations Aren’t Worth The Paper They’re Printed On.

When online valuations don’t give you the whole picture - try Winkworth’s expert service. Get a free property appraisal. Accurate valuations from our local property experts. No obligation to list with Winkworth. Choose a time convenient for you with our online booking system.

Fill in your details and someone will be in touch soon:

You have provisionally booked a valuation for . Please confirm your details below

We don't have date info available for this property, but if you fill in your details below, someone will be in touch to arrange a date soon

Please fill in the required fields below marked with *

This site is protected by reCAPTCHA and the Google Privacy Policy and Terms of Service apply.