Skip to main content

MyWinkworth

New Instruction

Picture No. 21
Picture No. 12
Picture No. 15
Picture No. 13
Picture No. 07
Picture No. 06
Picture No. 08
Picture No. 09
Picture No. 22
Picture No. 23
Picture No. 11
Picture No. 16
Picture No. 17
Picture No. 19
Picture No. 10
Picture No. 05
Picture No. 02
6/14

Westcliff Parade, Westcliff-on-Sea, Essex, SS0

2 bedroom flat/apartment in Westcliff-on-Sea

£425,000 Leasehold

  • Bedrooms 2
  • Bathrooms 2
  • Reception rooms 1
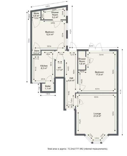
  • Floorplan

PICTURES AND VIDEOS

KEY FEATURES

  • Amazing Sea Views.
  • Ground Floor Apartment.
  • Two Bedrooms Both with En-Suites.
  • Fitted Modern Kitchen.
  • Off Street Parking.
  • Rear Garden.
  • No Onward Chain.
  • Sought After Location.

KEY INFORMATION

  • Tenure: Leasehold
  • Lease Length: 165 yrs left
  • Council Tax Band: C

Description

Charming ground floor apartment with 2 bedrooms. This accessible and bright property boasts a spacious layout and is well-maintained. Features a patio, off-street parking, period conversion, and stunning sea views. Ideal for those seeking comfort and style in a prime location.

This charming ground floor apartment offers a fantastic opportunity to own a delightful 2-bedroom property in a sought-after location. Boasting a blend of traditional charm and modern convenience, this well-maintained apartment is both accessible and inviting.

The property features a bright and spacious interior with a patio area, perfect for enjoying the outdoors. Additionally, off-street parking adds to the convenience of this period conversion property.

Situated in a desirable area, this apartment also offers stunning sea views, providing a tranquil and picturesque setting. Whether you're looking for a comfortable home or a lucrative investment opportunity, this property ticks all the boxes.

Don't miss out on the chance to own this beautiful apartment in a prime location. Contact us today to arrange a viewing and make this property yours.

Communal entrance door to communal entrance hall.

Entrance door to: -

Entrance hall with doors to all rooms. Door to rear and radiator.

Cloakroom/wc:- low level wc and radiator.

Lounge: - A beautiful spacious room with a large bay window to front offering amazing views of the Estuary. High ceiling with coving and radiator.

Kitchen: - Window to front. Modern fitted kitchen with a range of working surfaces to two walls with base units below and above. Inset single drainer sink unit and space for kitchen appliances. Inset electric hob with oven below and extractor hood over with tiled surrounds. Inset lighting and cupboard housing gas boiler.

Bedroom One: - Double glazed windows and double open doors to rear. Radiator and coving to ceiling.

En-suite: - Shower cubicle and wash hand basin in vanity unit. Chrome towel rail and tiling to walls.

Bedroom Two: -Two windows to side. Radiator and coving. Two built in cupboards.

En-Suite: - Obscure glazed window to side.

Shower cubicle, low level wc and wash hand basin with vanity unit. Tiling to walls

Exterior: -

Block paved parking space.

Rear Garden. Patio area part enclosed.

Utilities

  • Electricity Supply: Mains Supply
  • Water Supply: Mains Supply
  • Sewerage: Mains Supply
  • Heating: Gas Central

Marketed by

Winkworth Leigh-on-Sea

Properties for sale in Leigh-on-Sea

Arrange a Viewing

Fill in the form below to arrange your property viewing.

This site is protected by reCAPTCHA and the Google Privacy Policy and Terms of Service apply.
Introduction text for the mortgage calculator

Mortgage Calculator

Fill in the details below to estimate your monthly repayments:

Approximate monthly repayment:

For more information, please contact Winkworth's mortgage partner, Trinity Financial, on +44 (0)20 7267 9399 and speak to the Trinity team.

Stamp Duty Calculator

Fill in the details below to estimate your stamp duty

The above calculator above is for general interest only and should not be relied upon

6/14
Picture No. 21
Picture No. 12
Picture No. 15
Picture No. 13
Picture No. 07
Picture No. 06
Picture No. 08
Picture No. 09
Picture No. 22
Picture No. 23
Picture No. 11
Picture No. 16
Picture No. 17
Picture No. 19
Picture No. 10
Picture No. 05
Picture No. 02

Meet the Team

Our team at Winkworth Leigh-on-Sea Estate Agents are here to support and advise our customers when they need it most. We understand that buying, selling, letting or renting can be daunting and often emotionally meaningful. We are there, when it matters, to make the journey as stress-free as possible.

See all team members

Got a question about this property?

This site is protected by reCAPTCHA and the Google Privacy Policy and Terms of Service apply.

More Properties like this

Video Tour

Broadway, Leigh-on-Sea, Essex, SS9

£550,000 Leasehold

London Road, Leigh On Sea, SS9

Guide Price £475,000 Leasehold

London Road, Leigh On Sea, SS9

Guide Price £400,000 Leasehold

Under Offer

Woodfield Road, Leigh-on-Sea, Essex, SS9

£325,000 Share of Freehold

Under Offer

London Road, Leigh On Sea, SS9

Guide Price £325,000 Leasehold

Lord Roberts Avenue, Leigh-on-Sea, Essex, SS9

Guide Price £300,000 Leasehold

Online Valuations Aren’t Worth The Paper They’re Printed On.

When online valuations don’t give you the whole picture - try Winkworth’s expert service. Get a free property appraisal. Accurate valuations from our local property experts. No obligation to list with Winkworth. Choose a time convenient for you with our online booking system.

Fill in your details and someone will be in touch soon:

You have provisionally booked a valuation for . Please confirm your details below

We don't have date info available for this property, but if you fill in your details below, someone will be in touch to arrange a date soon

Please fill in the required fields below marked with *

This site is protected by reCAPTCHA and the Google Privacy Policy and Terms of Service apply.