Skip to main content

MyWinkworth

New Instruction

Reception
Reception
Reception
Hallway
Dining Room
Study
Kitchen
Kitchen
Kitchen
Kitchen
Kitchen
Garden
External
Master Bedroom
Bedroom Two
Hallway
Garden
Bathroom
Bathroom
Bedroom Three
6/14

Upland Road, East Dulwich, London, SE22

3 bedroom house

£1,400,000 Freehold

  • Bedrooms 3
  • Bathrooms 1
  • Reception rooms 2
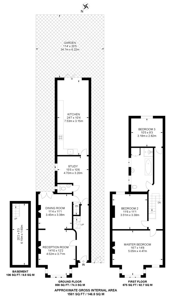
  • Floorplan

PICTURES AND VIDEOS

KEY FEATURES

  • Prime East Dulwich location, moments from Lordship Lane’s shops, cafés, and restaurants
  • Generous three-bedroom home with two reception rooms and a separate study
  • Extended kitchen with seamless access to a beautifully long private garden

KEY INFORMATION

  • Tenure: Freehold
  • Council Tax Band: E
  • Local Authority: London Borough Of Southwark

Description

Positioned on one of SE22’s most established residential streets, this substantial three-bedroom family home on Upland Road offers generous living accommodation, a beautifully extended layout and an exceptionally long private garden, all within easy reach of the best of East Dulwich and Peckham.



The house opens into a welcoming entrance hall, leading through to a bright and well-proportioned reception room at the front of the property. This space works comfortably as a formal sitting room or elegant family living area, benefiting from excellent natural light and a calm residential outlook. Toward the rear, a separate dining room creates a natural setting for entertaining and family gatherings, with a pleasant connection to the garden beyond.

The extended kitchen is a focal point of the home, thoughtfully arranged to suit modern family life and social use, with direct access onto the garden creating an easy transition between indoor and outdoor living. A well-positioned study provides an ideal home office or additional reception space, while a ground floor WC adds to the everyday functionality of the house.

The garden is a particularly notable feature, extending to approximately 114ft and offering a rare sense of scale for the area. Largely private and wonderfully versatile, it provides excellent scope for outdoor dining, entertaining, children’s play or more ambitious landscaping, making it an exceptional asset for long-term family living.

The first floor comprises three generous bedrooms, including an impressive principal bedroom with excellent proportions and natural light. The remaining bedrooms are well balanced and suitable for family members, guests or further workspace, and are served by a well-appointed family bathroom. The home also benefits from a basement level, currently providing valuable storage, with further potential for enhancement subject to the necessary consents.

Upland Road sits at the heart of East Dulwich, an area highly regarded for its strong community feel, excellent local amenities and attractive residential streets. Lordship Lane is just a short distance away and forms the centrepiece of the neighbourhood, offering an outstanding selection of independent shops, artisan cafés, restaurants and popular pubs, as well as a cinema and everyday conveniences. Dulwich Park and the open spaces of Peckham Rye are easily accessible, providing welcome green space for recreation and relaxation. Transport links are excellent, with East Dulwich station offering direct and reliable services into London Bridge and beyond, making the location particularly appealing for families and professionals alike.

AGENT NOTES:

Mobile phone coverage:
EE (Good outdoor and in-home)
Three (Good outdoor and in-home)
O2 (Good outdoor and variable in-home)
Vodaphone (Good outdoor and variable in-home)

(Potential purchasers are advised to seek their own advice as to the suitability of the services and mobile phone coverage, the above is for guidance only.)

Available broadband: Ultrafast Broadband: FTTP
Superfast Broadband: FTTC
Standard Broadband: ADSL
Networks in your area: Virgin media, Openreach
(Information supplied by Ofcom)

Flood Risk: Very low risk of surface water flooding / Very low risk river and sea flooding (Information supplied by gov.uk and purchasers are advised to seek their own legal advice)

Tenure: Freehold

Local Council: Southwark / Tax Band: E
EPC Rating: D

Floor plan: Whilst every attempt has been made to ensure accuracy, all measurements are approximate and not to scale. The floor plan is for illustrative purposes only.

Marketed by

Winkworth Dulwich

Properties for sale in Dulwich

Arrange a Viewing

Fill in the form below to arrange your property viewing.

This site is protected by reCAPTCHA and the Google Privacy Policy and Terms of Service apply.
Introduction text for the mortgage calculator

Mortgage Calculator

Fill in the details below to estimate your monthly repayments:

Approximate monthly repayment:

For more information, please contact Winkworth's mortgage partner, Trinity Financial, on +44 (0)20 7267 9399 and speak to the Trinity team.

Stamp Duty Calculator

Fill in the details below to estimate your stamp duty

The above calculator above is for general interest only and should not be relied upon

6/14
Reception
Reception
Reception
Hallway
Dining Room
Study
Kitchen
Kitchen
Kitchen
Kitchen
Kitchen
Garden
External
Master Bedroom
Bedroom Two
Hallway
Garden
Bathroom
Bathroom
Bedroom Three

Meet the Team

Our team at Winkworth Dulwich Estate Agents are here to support and advise our customers when they need it most. We understand that buying, selling, letting or renting can be daunting and often emotionally meaningful. We are there, when it matters, to make the journey as stress-free as possible.

See all team members

Got a question about this property?

This site is protected by reCAPTCHA and the Google Privacy Policy and Terms of Service apply.

More Properties like this

Video Tour

Under Offer

Crystal Palace Road, East Dulwich, London, SE22

Offers in excess of £2,000,000 Freehold

Under Offer

Crystal Palace Road, East Dulwich, London, SE22

£2,000,000 Freehold

Video Tour

Under Offer

Overhill Road, East Dulwich, London, SE22

£2,000,000 Freehold

Under Offer

Friern Road, East Dulwich, London, SE22

Offers in excess of £1,800,000 Freehold

Under Offer

Ondine Road, Peckham Rye, London, SE15

Offers in excess of £1,800,000 Freehold

Under Offer

Bellenden Road, Peckham Rye, London, SE15

Offers in excess of £1,800,000 Freehold

Online Valuations Aren’t Worth The Paper They’re Printed On.

When online valuations don’t give you the whole picture - try Winkworth’s expert service. Get a free property appraisal. Accurate valuations from our local property experts. No obligation to list with Winkworth. Choose a time convenient for you with our online booking system.

Fill in your details and someone will be in touch soon:

You have provisionally booked a valuation for . Please confirm your details below

We don't have date info available for this property, but if you fill in your details below, someone will be in touch to arrange a date soon

Please fill in the required fields below marked with *

This site is protected by reCAPTCHA and the Google Privacy Policy and Terms of Service apply.