Skip to main content

MyWinkworth

New Instruction

External
Kitchen
Kitchen Two
Bedroom
Bathroom
Bedroom
Bedroom
Reception
Reception
Reception
6/14

Upland Road, East Dulwich, London, SE22

4 bedroom house

£1,200,000 Freehold

  • Bedrooms 4
  • Bathrooms 1
  • Reception rooms 1
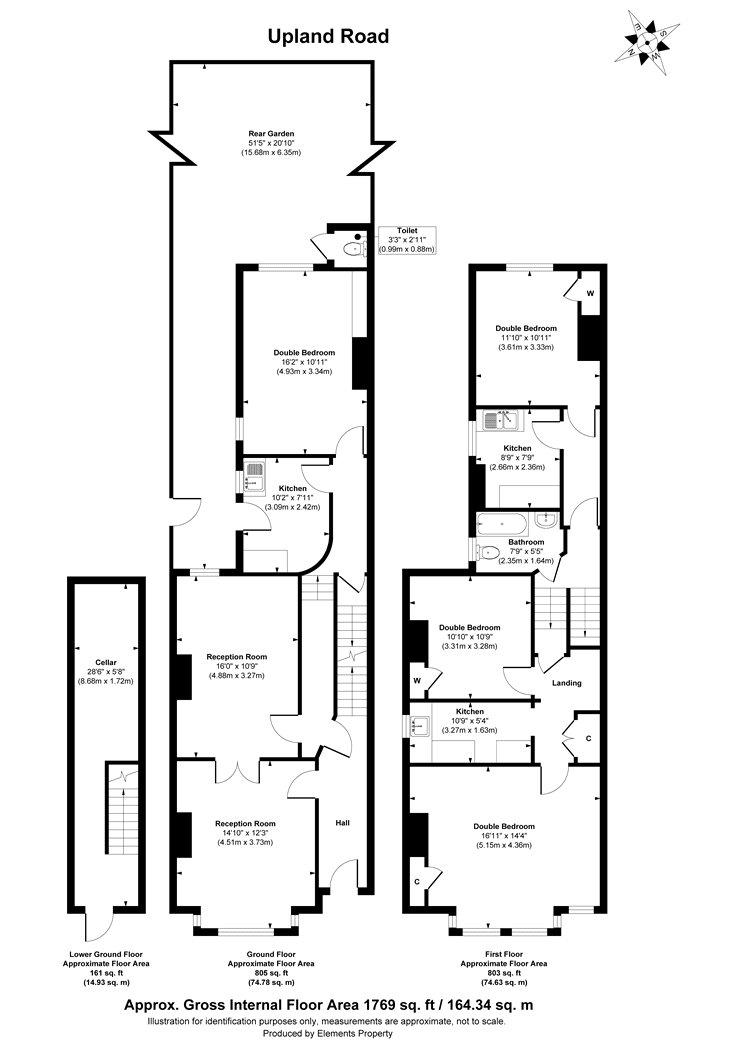
  • Floorplan

PICTURES AND VIDEOS

KEY FEATURES

  • Substantial period home extending to approx. 1,769 sq ft
  • Requires modernisation — ideal to create a bespoke family home
  • Generous 51 ft rear garden and cellar storage
  • Sought-after residential location

KEY INFORMATION

  • Tenure: Freehold
  • Council Tax Band: C
  • Local Authority: London Borough Of Southwark

Description

Situated on a highly desirable residential stretch of Upland Road, this substantial period home presents a rare opportunity to acquire a generously proportioned property ready for modernisation and transformation into a superb long-term family home.



Arranged over multiple levels and extending to approximately 1,769 sq ft, the house retains excellent original proportions throughout, offering flexible and well-balanced accommodation ideally suited to family living. The ground floor features two spacious reception rooms with high ceilings and large windows that draw in excellent natural light, creating wonderful living and entertaining spaces. To the rear sits a separate kitchen with access towards the garden, offering scope for reconfiguration into a larger open-plan kitchen and dining area, subject to the usual planning permissions. A guest WC completes this level.

The upper floors provide several well-proportioned double bedrooms, offering excellent flexibility for growing families, guest accommodation or home working. A family bathroom serves the upper levels, with clear opportunity for updating and redesign. The overall layout provides strong foundations for refurbishment while preserving the home’s sense of scale and character.

Externally, the property benefits from a particularly impressive rear garden extending to approximately 51 ft, providing generous outdoor space ideal for family use, landscaping, or extension (subject to planning permission). A cellar offers additional storage and further options for use.

This is an exceptional opportunity to acquire a substantial period property in a sought-after East Dulwich location, offering generous internal space, a large garden, and excellent scope for enhancement. Upland Road is ideal for buyers looking to create a bespoke family home in a prime residential setting.

AGENT NOTES:

Mobile phone coverage:
EE (Good outdoor and in-home)
Three (Good outdoor and in-home)
O2 (Good outdoor and variable in-home)
Vodaphone (Good outdoor and variable in-home)

(Potential purchasers are advised to seek their own advice as to the suitability of the services and mobile phone coverage, the above is for guidance only.)

Available broadband: Ultrafast Broadband: FTTP
Superfast Broadband: FTTC
Standard Broadband: ADSL
Networks in your area: Virgin media, Openreach
(Information supplied by Ofcom)

Flood Risk: Very low risk of surface water flooding / Very low risk river and sea flooding (Information supplied by gov.uk and purchasers are advised to seek their own legal advice)

Tenure: Freehold

Local Council: Southwark / Tax Band: C
EPC Rating: To be advised

Floor plan: Whilst every attempt has been made to ensure accuracy, all measurements are approximate and not to scale. The floor plan is for illustrative purposes only.

Marketed by

Winkworth Dulwich

Properties for sale in Dulwich

Arrange a Viewing

Fill in the form below to arrange your property viewing.

This site is protected by reCAPTCHA and the Google Privacy Policy and Terms of Service apply.
Introduction text for the mortgage calculator

Mortgage Calculator

Fill in the details below to estimate your monthly repayments:

Approximate monthly repayment:

For more information, please contact Winkworth's mortgage partner, Trinity Financial, on +44 (0)20 7267 9399 and speak to the Trinity team.

Stamp Duty Calculator

Fill in the details below to estimate your stamp duty

The above calculator above is for general interest only and should not be relied upon

6/14
External
Kitchen
Kitchen Two
Bedroom
Bathroom
Bedroom
Bedroom
Reception
Reception
Reception

Meet the Team

Our team at Winkworth Dulwich Estate Agents are here to support and advise our customers when they need it most. We understand that buying, selling, letting or renting can be daunting and often emotionally meaningful. We are there, when it matters, to make the journey as stress-free as possible.

See all team members

Got a question about this property?

This site is protected by reCAPTCHA and the Google Privacy Policy and Terms of Service apply.

More Properties like this

Video Tour

Under Offer

Crystal Palace Road, East Dulwich, London, SE22

Offers in excess of £2,000,000 Freehold

Video Tour

Under Offer

Overhill Road, East Dulwich, London, SE22

£2,000,000 Freehold

Ulverscroft Road, East Dulwich, London, SE22

£1,700,000 Freehold

Under Offer

Champion Grove, Camberwell, London, SE5

£1,700,000 Freehold

Under Offer

Melbourne Grove, East Dulwich, London, SE22

£1,690,000 Freehold

New Instruction

Upland Road, East Dulwich, London, SE22

£1,650,000 Freehold

Online Valuations Aren’t Worth The Paper They’re Printed On.

When online valuations don’t give you the whole picture - try Winkworth’s expert service. Get a free property appraisal. Accurate valuations from our local property experts. No obligation to list with Winkworth. Choose a time convenient for you with our online booking system.

Fill in your details and someone will be in touch soon:

You have provisionally booked a valuation for . Please confirm your details below

We don't have date info available for this property, but if you fill in your details below, someone will be in touch to arrange a date soon

Please fill in the required fields below marked with *

This site is protected by reCAPTCHA and the Google Privacy Policy and Terms of Service apply.