Skip to main content

MyWinkworth

New Instruction

Front
Rear
Rear
Lounge
Family Room
Dining Room
Kitchen
Bedroom
Bedroom
Bathroom
Bedroom
Bedroom
6/14

Triple Plea Road, Woodton, Bungay, Norfolk, NR35

4 bedroom house in Woodton

Offers in excess of £340,000 Freehold

  • Bedrooms 4
  • Bathrooms 1
  • Reception rooms 3
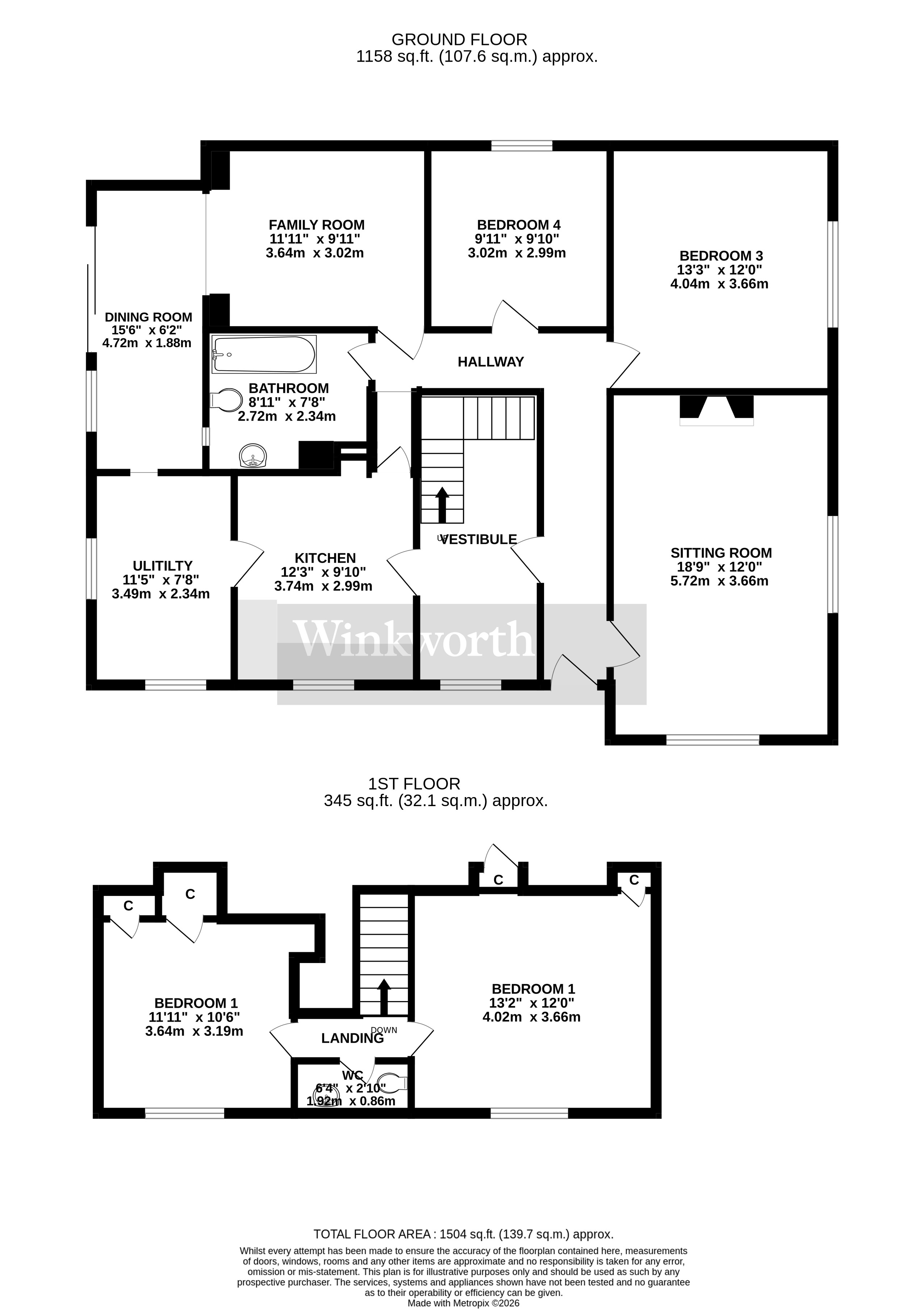
  • Dimensions 1504 sq ft
    139 sq m
  • Floorplan

PICTURES AND VIDEOS

KEY FEATURES

  • Offers In Excess Of £340,000
  • No Onward Chain
  • Exceptionally Spacious Four Bedroom Chalet Bungalow
  • Popular South Nofolk Village
  • Stunning Overall plot, Mainly Lawned With Mature Trees
  • Non Estate Location
  • Long Driveway And Detached Garage
  • In Need Of Some Improvement
  • Ideal For Large Or Growing Family
  • Extention Possibility Subject to Planning

KEY INFORMATION

  • Tenure: Freehold
  • Council Tax Band: D
  • Local Authority: South Norfolk Council

Description

An exceptionally spacious and versatile four bedroom detached chalet bungalow, set within a generous and mature plot on one of the area’s most sought-after non-estate roads, located in the highly regarded south city village of Woodton.

This substantial family home offers excellent potential for creative modernisation and is offered for sale with the added benefit of no onward chain. Positioned gable-end onto the road, the property enjoys a notably private setting, complemented by a long driveway, open frontage and a detached garage.

The accommodation is both flexible and well-proportioned. The ground floor features a double-aspect sitting/family room, which flows through to a light-filled dining room with patio doors opening onto the rear garden and a useful serving hatch. The kitchen adjoins a utility room, while two well-sized bedrooms and a family bathroom complete the ground floor layout.

To the first floor are two further bedrooms, one of which benefits from eaves access to a substantial open loft space, offering excellent scope for further conversion (subject to the necessary consents), along with a convenient WC.

Externally, the property truly excels. The impressive rear garden is of a very good size, predominantly laid to lawn and framed by mature trees, providing a high level of privacy and an attractive natural outlook, ideal for family life and outdoor entertaining.

This is rare opportunity to acquire a substantial home in an enviable village location, offering space, privacy and significant potential.

Discovering Life In Woodton

Woodton is a charming and tranquil village set in the heart of South Norfolk, approximately 10 miles south of Norwich and just a few miles north of Bungay. Nestled close to the Norfolk-Suffolk border, it offers a peaceful countryside lifestyle while maintaining easy access to nearby towns and cities.

The village has a strong sense of community, anchored by the historic All Saints’ Church, a stunning medieval round-tower church that reflects the area’s rich heritage. Residents also benefit from the village hall, which hosts a variety of events and gatherings, and the Woodton Community Wood, a peaceful green space perfect for walks and enjoying nature. Families are well catered for with the Ravens Den play area, providing a safe and welcoming space for children.

Woodton enjoys a calendar of local events that bring the community together, including the annual Flower Show in July and the traditional Farming Day in September, celebrating the village’s rural roots. Despite its serene setting, Woodton is well connected. The B1332 provides straightforward road links to Norwich and Bungay, and regular bus services make commuting convenient for those working in the city.

This combination of countryside charm, community spirit, and accessibility makes Woodton an appealing location for families, professionals, and anyone seeking a quiet village lifestyle within easy reach of urban amenities.

Council Tax Band - D
Local Authority - South Norfolk Council
We have been advised that the property is connected to mains water, electricity with oil fired central heating.

Winkworth wishes to inform prospective buyers and tenants that these particulars are a guide and act as information only. All our details are given in good faith and believed to be correct at the time of printing but they don’t form part of an offer or contract. No Winkworth employee has authority to make or give any representation or warranty in relation to this property. All fixtures and fittings, whether fitted or not are deemed removable by the vendor unless stated otherwise and room sizes are measured between internal wall surfaces, including furnishings. The services, systems and appliances have not been tested, and no guarantee as to their operability or efficiency can be given.

Marketed by

Winkworth Poringland

Properties for sale in Poringland

Arrange a Viewing

Fill in the form below to arrange your property viewing.

This site is protected by reCAPTCHA and the Google Privacy Policy and Terms of Service apply.
Introduction text for the mortgage calculator

Mortgage Calculator

Fill in the details below to estimate your monthly repayments:

Approximate monthly repayment:

For more information, please contact Winkworth's mortgage partner, Trinity Financial, on +44 (0)20 7267 9399 and speak to the Trinity team.

Stamp Duty Calculator

Fill in the details below to estimate your stamp duty

The above calculator above is for general interest only and should not be relied upon

6/14
Front
Rear
Rear
Lounge
Family Room
Dining Room
Kitchen
Bedroom
Bedroom
Bathroom
Bedroom
Bedroom

Meet the Team

With over 100 years of combined experience, our Poringland team offer unrivalled local knowledge and a genuine passion for property. Since opening in 2018, we’ve proudly supported more local schools, events and community initiatives than any other agent in the area — because community isn’t just part of what we do, it’s who we are. As market leaders, we’re committed to delivering exceptional service and care to every customer. Whether you’re buying, selling, renting, lettings or simply exploring your next move, pop into our office for a coffee and a warm welcome.

See all team members

Got a question about this property?

This site is protected by reCAPTCHA and the Google Privacy Policy and Terms of Service apply.

More Properties like this

Main Road, Filby, Great Yarmouth, Norfolk, NR29

OIRO £2,500,000 Freehold

Under Offer

Yarmouth Road, Ditchingham, Bungay, NR35

Guide Price £900,000 Freehold

Under Offer

Cranes Road, Hethel, Norwich, Norfolk, NR14

Guide Price £850,000 Freehold

Under Offer

Rectory Lane, Poringland, Norwich, Norfolk, NR14

OIRO £775,000 Freehold

Brooke Road, Seething, Norwich, Norfolk, NR15

Guide Price £775,000 Freehold

Church Road, Woodton, Bungay, Norfolk, NR35

Guide Price £775,000 Freehold

Online Valuations Aren’t Worth The Paper They’re Printed On.

When online valuations don’t give you the whole picture - try Winkworth’s expert service. Get a free property appraisal. Accurate valuations from our local property experts. No obligation to list with Winkworth. Choose a time convenient for you with our online booking system.

Fill in your details and someone will be in touch soon:

You have provisionally booked a valuation for . Please confirm your details below

We don't have date info available for this property, but if you fill in your details below, someone will be in touch to arrange a date soon

Please fill in the required fields below marked with *

This site is protected by reCAPTCHA and the Google Privacy Policy and Terms of Service apply.