Skip to main content

MyWinkworth

Sold

Picture No. 41
Picture No. 31
Picture No. 33
Picture No. 37
Picture No. 32
Picture No. 42
Picture No. 34
Picture No. 46
Picture No. 21
Picture No. 29
Picture No. 38
Picture No. 39
Picture No. 40
Picture No. 44
Picture No. 35
Picture No. 36
Picture No. 45
Picture No. 20
Picture No. 27
Picture No. 25
Picture No. 26
Picture No. 30
Picture No. 43
Picture No. 22
Picture No. 23
Picture No. 24
6/14

St. Margarets Road, London, N17

4 bedroom house in London

Guide Price £730,000 Freehold

  • Bedrooms 4
  • Bathrooms 2
  • Reception rooms 2
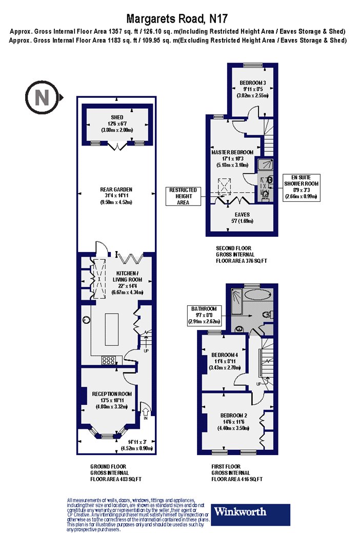
  • Floorplan

PICTURES AND VIDEOS

KEY FEATURES

  • Four Double Bedrooms
  • Lovely Reception Room To Front
  • Impressive Open Plan Kitchen Reception Room
  • Modern Bathroom ( First Floor)
  • Loft Conversion With En Suite
  • Private Garden With Large Shed
  • Period Character |Wood Floors| Period Fireplaces
  • Convenient for Transport Links and Parks
  • Moments From Shopping Area

KEY INFORMATION

  • Tenure: Freehold

Description

Found on a much loved street in Tottenham is this striking Four bedroom Victorian family house having been restored to the highest of standards.


Sole Agent

Total accommodation measures approx. 1357 sq ft over three floors.

Well-proportioned and stylish in equal measure this fabulous period property makes for a truly wonderful family home.
Situated on a lovely, quiet Victorian street close to Philip Lane the house has undergone an extensive restoration including an impressive rear edition extension and a smart loft conversion incorporating two double bedrooms ( Master bedroom with en suite).
As well as a slick and trendy interior design the home further benefits from a beautiful and well-designed West facing garden, this place is ideal for entertaining with such an expansive space that’s flows perfectly.

The location is great, situated on a lovely street with a friendly local community you will be just a short walk to Downhills Park, Lordship rec and Bruce Castle Park where there is plenty to do for kids and adults alike. The local social scene in Tottenham really is on the up with an emergence of gastropubs, super cool coffee shops and bars catering for an increasing demand from young professionals that have made Tottenham their home in recent years.

As far as transport goes you will have convenient access to links at Seven Sisters, Tottenham Hale and Bruce Grove while buses from the nearby High Road can take you into Islington , Hackney and Central London.

SELLERS THOUGHTS:

"Having lived in various places in London for 20+ years we've never felt more part of a community than we have in Tottenham. There are lots of local, inclusive, family-friendly and fun events going on as well as fantastic pubs, cafes, restaurants and a monthly outdoor food market that welcome you with open arms - our favourite places include With Milk, Forks & Green, Wine n Rind, The Palm, The High Cross and True Craft, all within 10 minutes walk. There are also an amazing number of beautiful parks and marshes nearby so plenty of green space where you can forget you're in a city. We've loved renovating and living in this house and have put a lot of love into making it look good and feel spacious yet homely. Most of all we've loved living on this street where we've made lifelong friends (who we'd be happy to introduce you to) - there's even an annual street party, organised by the neighbours and supported by the local council".


Please contact the sales team at Winkworth Harringay office to arrange an appointment to view 020 8800 5151- [email protected]

Winkworth.co.uk

Your local independently owned property agency with a network of 61 London offices.

Est 1835
Introduction text for the mortgage calculator

Mortgage Calculator

Fill in the details below to estimate your monthly repayments:

Approximate monthly repayment:

For more information, please contact Winkworth's mortgage partner, Trinity Financial, on +44 (0)20 7267 9399 and speak to the Trinity team.

Stamp Duty Calculator

Fill in the details below to estimate your stamp duty

The above calculator above is for general interest only and should not be relied upon

6/14
Picture No. 41
Picture No. 31
Picture No. 33
Picture No. 37
Picture No. 32
Picture No. 42
Picture No. 34
Picture No. 46
Picture No. 21
Picture No. 29
Picture No. 38
Picture No. 39
Picture No. 40
Picture No. 44
Picture No. 35
Picture No. 36
Picture No. 45
Picture No. 20
Picture No. 27
Picture No. 25
Picture No. 26
Picture No. 30
Picture No. 43
Picture No. 22
Picture No. 23
Picture No. 24

Meet the Team

At Winkworth Harringay Estate Agents, we have a comprehensive team of knowledgeable and personable property experts who are excited about the local area. So whether you're buying, selling, renting or letting or simply need some advice, pop into our office on Green Lanes for the experience and the local knowledge you need.

See all team members

Got a question about this property?

This site is protected by reCAPTCHA and the Google Privacy Policy and Terms of Service apply.

More Properties like this

Under Offer

Warham Road, London, N4

Guide Price £1,275,000 Freehold

Under Offer

Atterbury Road, Finsbury Park, N4

Guide Price £1,275,000 Freehold

Under Offer

Sydney Road, London, N8

Guide Price £1,150,000 Freehold

Jansons Road, London, N15

£1,100,000 Freehold

Under Offer

Lausanne Road, London, N8

Guide Price £1,050,000 Freehold

Under Offer

Brampton Road, London, N15

Guide Price £1,000,000 Freehold

Online Valuations Aren’t Worth The Paper They’re Printed On.

When online valuations don’t give you the whole picture - try Winkworth’s expert service. Get a free property appraisal. Accurate valuations from our local property experts. No obligation to list with Winkworth. Choose a time convenient for you with our online booking system.

Fill in your details and someone will be in touch soon:

You have provisionally booked a valuation for . Please confirm your details below

We don't have date info available for this property, but if you fill in your details below, someone will be in touch to arrange a date soon

Please fill in the required fields below marked with *

This site is protected by reCAPTCHA and the Google Privacy Policy and Terms of Service apply.