Skip to main content

MyWinkworth

New Instruction

Picture No. 16
Picture No. 07
Picture No. 06
Picture No. 08
Picture No. 09
Picture No. 05
Picture No. 04
Picture No. 02
Picture No. 03
Picture No. 14
Picture No. 15
Picture No. 10
Picture No. 11
Picture No. 12
Picture No. 13
6/14

Hewitt Road, London, N8

4 bedroom house in London

£975,000 Freehold

  • Bedrooms 4
  • Bathrooms 2
  • Reception rooms 3
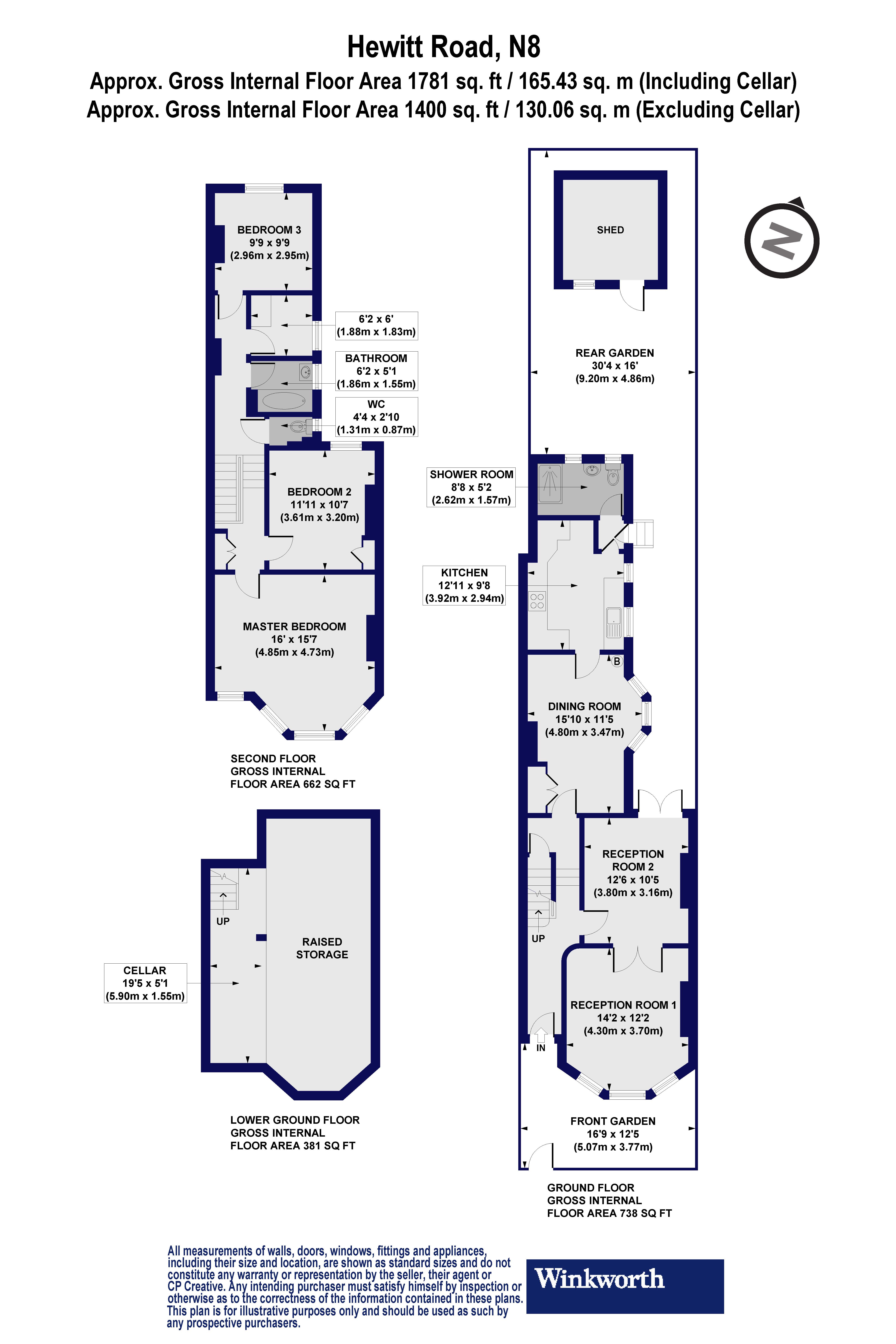
  • Floorplan

PICTURES AND VIDEOS

KEY FEATURES

  • Three/Four Bedrooms
  • Two Reception Rooms
  • Breakfast Room
  • Seperate Kitchen
  • Two Bathrooms
  • Basement For Storage
  • Outhouse
  • Bundles of Potential

KEY INFORMATION

  • Tenure: Freehold

Description

Spread across 1,400 sq. ft., this four-bedroom house offers excellent potential and a good sized garden on one of the Ladder’s most sought-after streets.



The ground floor features two separate reception rooms, divided by Victorian doors, creating flexible living spaces. Toward the rear, a breakfast/morning room leads into the kitchen and a downstairs shower room.

Stepping outside, the garden provides a bright and private outdoor space.

Upstairs, there are three bedrooms, and a smaller study which makes an ideal home office or nursery room. This level also includes a family bathroom.

With scope for a loft conversion, side return, rear extension, and full internal reconfiguration, this could soon become one of the Ladder’s finest homes.

Offered chain-free, early viewing is advised.

This is a great area, becoming more desirable by the day, with great transport links at Manor House (Piccadilly Lines Zone 2), Harringay Over Land Station, Turnpike Lane Underground Station and shopping and entertainment at your door step. The green spaces of Finsbury Park, Fairland Park and Ducketts Common are also within easy reach.

With bustling Green Lanes at the end of the road, you have an array of superb Turkish cuisine on your doorstep, as well as the ever growing mix of independent stores, bars and cafes. You’ll love the Dusty Knuckle bakery and the cool Brouhaha beer/cocktail bar and the Iconic Salisbury Tavern which are a short distance away.


Winkworth.co.uk

Your local independently owned property agency with an extensive network of London offices.


Est 1835

Follow us on Instagram - @winkworthharringay

Marketed by

Winkworth Harringay

Properties for sale in Harringay

Arrange a Viewing

Fill in the form below to arrange your property viewing.

This site is protected by reCAPTCHA and the Google Privacy Policy and Terms of Service apply.
Introduction text for the mortgage calculator

Mortgage Calculator

Fill in the details below to estimate your monthly repayments:

Approximate monthly repayment:

For more information, please contact Winkworth's mortgage partner, Trinity Financial, on +44 (0)20 7267 9399 and speak to the Trinity team.

Stamp Duty Calculator

Fill in the details below to estimate your stamp duty

The above calculator above is for general interest only and should not be relied upon

6/14
Picture No. 16
Picture No. 07
Picture No. 06
Picture No. 08
Picture No. 09
Picture No. 05
Picture No. 04
Picture No. 02
Picture No. 03
Picture No. 14
Picture No. 15
Picture No. 10
Picture No. 11
Picture No. 12
Picture No. 13

Meet the Team

At Winkworth Harringay Estate Agents, we have a comprehensive team of knowledgeable and personable property experts who are excited about the local area. So whether you're buying, selling, renting or letting or simply need some advice, pop into our office on Green Lanes for the experience and the local knowledge you need.

See all team members

Got a question about this property?

This site is protected by reCAPTCHA and the Google Privacy Policy and Terms of Service apply.

More Properties like this

Under Offer

Warham Road, London, N4

Guide Price £1,275,000 Freehold

Under Offer

Atterbury Road, Finsbury Park, N4

Guide Price £1,275,000 Freehold

Under Offer

Sydney Road, London, N8

Guide Price £1,150,000 Freehold

Jansons Road, London, N15

£1,100,000 Freehold

Under Offer

Lausanne Road, London, N8

Guide Price £1,050,000 Freehold

New Instruction

Hewitt Road, London, N8

£975,000 Freehold

Online Valuations Aren’t Worth The Paper They’re Printed On.

When online valuations don’t give you the whole picture - try Winkworth’s expert service. Get a free property appraisal. Accurate valuations from our local property experts. No obligation to list with Winkworth. Choose a time convenient for you with our online booking system.

Fill in your details and someone will be in touch soon:

You have provisionally booked a valuation for . Please confirm your details below

We don't have date info available for this property, but if you fill in your details below, someone will be in touch to arrange a date soon

Please fill in the required fields below marked with *

This site is protected by reCAPTCHA and the Google Privacy Policy and Terms of Service apply.