Skip to main content

MyWinkworth

Picture No. 02
Picture No. 03
Picture No. 20
Picture No. 19
Picture No. 05
Picture No. 16
Picture No. 15
Picture No. 06
Picture No. 13
Picture No. 07
Picture No. 08
Picture No. 09
Picture No. 12
Picture No. 11
6/14

St Andrews Street, Heckington, Sleaford, NG34

4 bedroom house in Heckington

£395,000 Freehold

  • Bedrooms 4
  • Bathrooms 2
  • Reception rooms 2
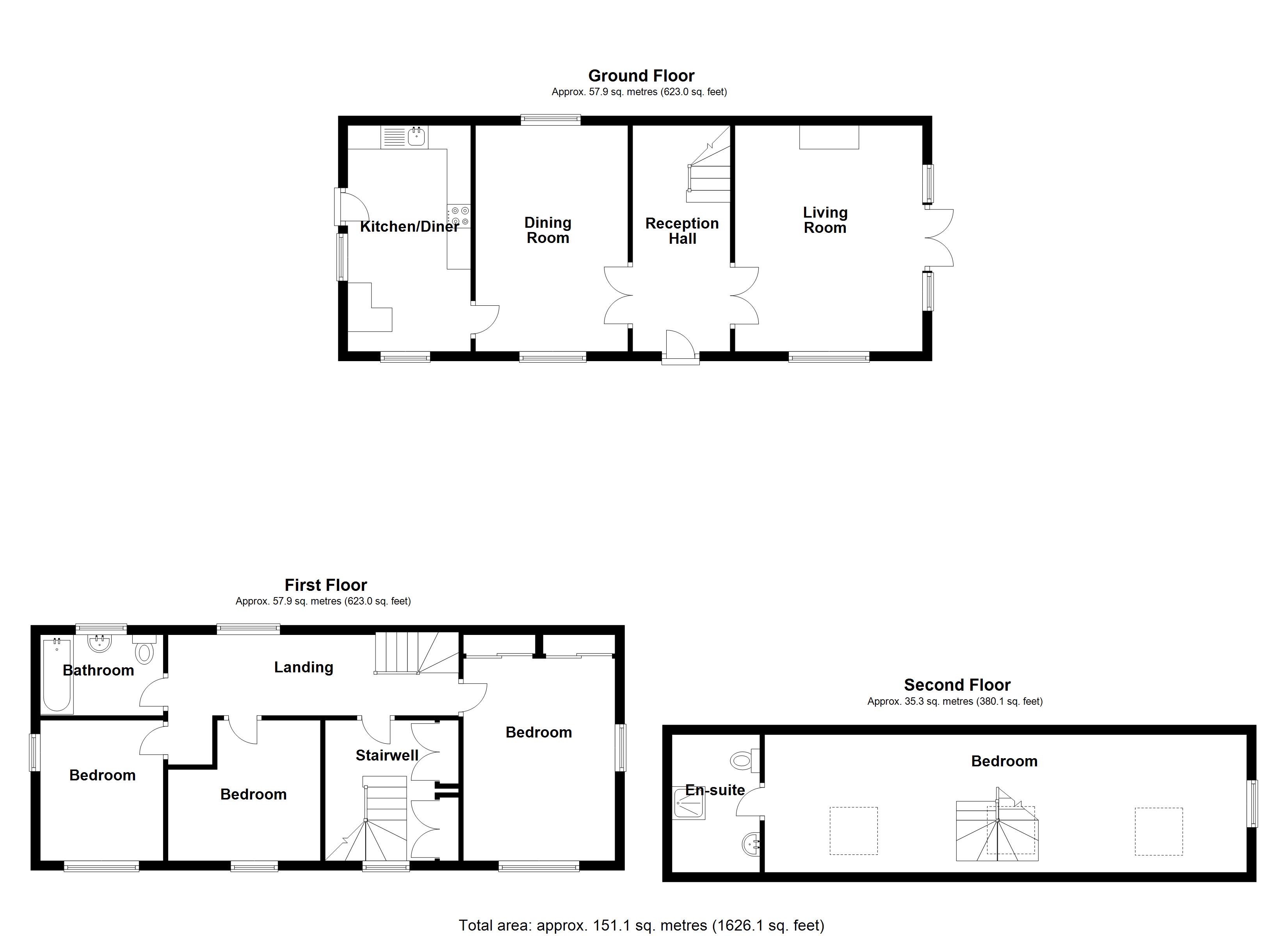
  • Floorplan

PICTURES AND VIDEOS

KEY FEATURES

  • Village Centre Location
  • One of the oldest properties in Heckington
  • Charming Stone Property
  • Four Bedrooms
  • Master Bedroom Suite
  • Extremely Popular Village

KEY INFORMATION

  • Tenure: Freehold
  • Council Tax Band: D
  • Local Authority: North Kesteven District Council

Description

Nestling in the centre of the highly desirable village of Heckington, Tithe Barn is a stone built detached period home with a substantial garden to the front and a secluded side patio. The property has a long history of involvement in the villages historic past, being one of the oldest buildings in the whole of Heckington. Recent improvements to the property include a refurbishment to the windows, a newly fitted boiler and a York stone paved patio to the side of the property. This charmful property oozes character throughout and is situated just a stone’s throw from the village centre. A viewing is highly advised.

Rooms and Accommodations

  • Reception Hallway
  • Approached by a hardwood entrance door, having solid wood flooring, staircase to 1st floor and radiator.
  • Living Room
  • 4.7m x 3.89m
  • Window to front aspect, French doors with full height glazed side windows to side aspect leading to secluded patio, gas powered log burning style stove on flag stone hearth, beamed ceiling, wall lights, exposed stone wall, television point.
  • Dining Room
  • 4.8m x 3.28m
  • being dual aspected with windows to front and rear aspects, solid wood flooring, radiator.
  • Kitchen Dining Room
  • 4.65m x 2.6m
  • Windows to front and side aspects, door to side elevation, fitted with bespoke range of shaker style base and eye level units with bevel edged work top over, 5 ring gas hob, ceramic sink, floor standing gas fired boiler, radiator.
  • Landing
  • Staircase rises from Reception Hallway to 1st floor landing having window to rear aspect, radiator.
  • Bedroom
  • 4.6m x 3.2m
  • Windows to front and side aspects, fitted with a bank of wardrobes with sliding doors, radiator.
  • Bedroom
  • 3.12m x 2.9m
  • Window to front aspect, wood effect flooring, radiator.
  • Bedroom
  • 2.87m x 2.8m
  • Having windows to front and side aspect, wood effect flooring, radiator.
  • Bathroom
  • Window to rear aspect, fitted with a 3 piece suite comprising panelled bath with mixer shower over, close coupled WC, pedestal hand wash basin, feature heated towel radiator, half ceramic tiled walling.
  • Stair well
  • Having window to front aspect, fitted with a range of bedroom furniture, dog leg stair case to top floor.
  • Master Suite
  • 10.06m x 2.95m
  • having 3 velux roof lights, window to side aspect, television and telephone points, radiator. Currently used as a bedroom and sitting room.
  • En-Suite
  • Velux roof light, fitted with a 3 piece suite comprising ceramic tiled shower cubicle with mains fed shower, close coupled WC, pedestal hand wash basin, radiator, eaves storage.
  • Outside
  • The property boasts a tucked away position within the heart of the village, approached by a shared gravelled driveway which extends to a private gravelled driveway leading to the side of the plot and then leading to a paved area. The paved area is beside the house and ideal for caravan or motor home. The garden is principally laid to a generous lawn with well proportioned and established shrub and flower beds attracting many different types of wild life. To the side is a secluded patio seating area made with flag stones believed to be from the original dwelling, with shrub and slate chipped border.
  • Garage
  • 6.45m x 4.75m
  • With sliding doors and window to rear aspect, personal door and window to side aspect, light and power point.
  • Agents Note
  • Please be advised that the photos on this advertisement were taken in March 2021. The property is now empty.
    Please note that prior to acceptance of any offer, Waldeck Snarey & Brown Ltd t/a Winkworth are required to verify the identity of the buyer to comply with the requirements of the Money
    Laundering, Terrorist Financing and Transfer of Funds (Information on the Payer) Regulations 2017. We are most grateful for your assistance with this.

Utilities

  • Electricity Supply: Mains Supply
  • Water Supply: Mains Supply
  • Sewerage: Mains Supply
  • Heating: Other
  • Broadband: FTTP

Marketed by

Winkworth Sleaford

Properties for sale in Sleaford

Arrange a Viewing

Fill in the form below to arrange your property viewing.

This site is protected by reCAPTCHA and the Google Privacy Policy and Terms of Service apply.
Introduction text for the mortgage calculator

Mortgage Calculator

Fill in the details below to estimate your monthly repayments:

Approximate monthly repayment:

For more information, please contact Winkworth's mortgage partner, Trinity Financial, on +44 (0)20 7267 9399 and speak to the Trinity team.

Stamp Duty Calculator

Fill in the details below to estimate your stamp duty

The above calculator above is for general interest only and should not be relied upon

6/14
Picture No. 02
Picture No. 03
Picture No. 20
Picture No. 19
Picture No. 05
Picture No. 16
Picture No. 15
Picture No. 06
Picture No. 13
Picture No. 07
Picture No. 08
Picture No. 09
Picture No. 12
Picture No. 11

Meet the Team

Our team are here to support and advise our customers when they need it most. We understand that buying, selling, letting or renting can be daunting and often emotionally meaningful. We are there, when it matters, to make the journey as stress-free as possible.

See all team members

Got a question about this property?

This site is protected by reCAPTCHA and the Google Privacy Policy and Terms of Service apply.

More Properties like this

Under Offer

Chapel Lane, Little Hale, Sleaford, NG34

£725,000 Freehold

London Road, Silk Willoughby, Sleaford, Lincolnshire, NG34

£699,950 Freehold

Hunters Court, Quarrington, Sleaford, Lincolnshire, NG34

£650,000 Freehold

George Street, Helpringham, Sleaford, Lincolnshire, NG34

£650,000 Freehold

High Street, Walcott, Lincoln, Lincolnshire, LN4

£650,000 Freehold

Under Offer

Side Bar Lane, Heckington Fen, Sleaford, Lincolnshire, NG34

£625,000 Freehold

Online Valuations Aren’t Worth The Paper They’re Printed On.

When online valuations don’t give you the whole picture - try Winkworth’s expert service. Get a free property appraisal. Accurate valuations from our local property experts. No obligation to list with Winkworth. Choose a time convenient for you with our online booking system.

Fill in your details and someone will be in touch soon:

You have provisionally booked a valuation for . Please confirm your details below

We don't have date info available for this property, but if you fill in your details below, someone will be in touch to arrange a date soon

Please fill in the required fields below marked with *

This site is protected by reCAPTCHA and the Google Privacy Policy and Terms of Service apply.