Skip to main content

MyWinkworth

New Instruction

Kitchen
Hallway
Reception
Reception
Reception Two
Kitchen
Kitchen
Garden
Garden
Bedroom One
Bedroom Two
Bedroom Three
Bedroom Four
Bathroom One
Bedroom Five
External
Bedroom Two
6/14

St Aidans Road, East Dulwich, London, SE22

5 bedroom house

£1,300,000 Freehold

  • Bedrooms 5
  • Bathrooms 2
  • Reception rooms 2
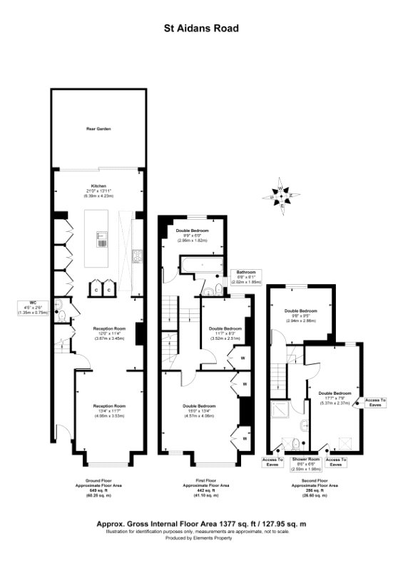
  • Floorplan

PICTURES AND VIDEOS

KEY FEATURES

  • Five-bedroom Victorian terrace on a quiet street near Peckham Rye Park.
  • Elegant reception plus open-plan kitchen/diner with direct garden access.
  • Flexible family layout with modern bathrooms and loft-converted rooms.
  • Excellent location close to transport, Goodrich Primary and Lordship Lane amenitie

KEY INFORMATION

  • Tenure: Freehold
  • Council Tax Band: D
  • Local Authority: London Borough Of Southwark

Description

This superb five bedroom Victorian terraced house is situated in a quiet residential road just off Peckham Rye Park and close to Lordship Lane.

This superb five-bedroom Victorian terraced home is beautifully presented and set on a quiet, tree-lined residential street just moments from the wide open green spaces of Peckham Rye Park. Ideally positioned between East Dulwich and Honor Oak, and within easy reach of the vibrant amenities of Lordship Lane, the property offers an impressive balance of period charm, contemporary style and spacious family living.

The ground floor provides generous living space, starting with an elegant separate reception room featuring high ceilings, attractive period detailing and excellent natural light. To the rear, a stunning open-plan kitchen and dining area forms the heart of the home — perfect for modern family life and entertaining. The contemporary kitchen opens directly onto a beautifully maintained private garden, offering a seamless indoor–outdoor flow ideal for relaxing or dining al fresco.

The first floor comprises three well-proportioned bedrooms, including two large doubles, as well as a stylish family bathroom. The loft has been thoughtfully converted to create two further bright bedrooms and a separate modern bathroom, providing fantastic flexibility for larger families, guests or home working.

Tastefully decorated throughout, the property blends classic Victorian character with fresh, modern finishes, resulting in a home that is ready to move straight into. Transport links are excellent, with easy access to East Dulwich, Honor Oak and Peckham Rye stations — including the London Overground — offering swift travel into Central London. The house is also close to the highly regarded Goodrich Primary School, and just a short walk from the popular cafés, restaurants, independent shops and bars of Lordship Lane.

Beautifully maintained and offering generous, well-designed accommodation across all floors, this exceptional five-bedroom home presents a rare opportunity to secure a spacious, stylish and well-located family property in one of the area’s most sought-after residential pockets.

AGENT NOTES:

Mobile phone coverage:
EE (Good outdoor and variable in-home)
Three (Good outdoor and variable in-home)
O2 (Good outdoor and variable in-home)
Vodaphone (Good outdoor and variable in-home)

(Potential purchasers are advised to seek their own advice as to the suitability of the services and mobile phone coverage, the above is for guidance only.)

Available broadband: Ultrafast Broadband: FTTP
Superfast Broadband: FTTC
Standard Broadband: ADSL
Networks in your area: Virgin media, Openreach
(Information supplied by Ofcom)

Flood Risk: Low risk of surface water flooding / Very low risk river and sea flooding (Information supplied by gov.uk and purchasers are advised to seek their own legal advice)

Tenure: Freehold

Local Council: Southwark / Tax Band: D
EPC Rating: D

Floor plan: Whilst every attempt has been made to ensure accuracy, all measurements are approximate and not to scale. The floor plan is for illustrative purposes only.

Marketed by

Winkworth Dulwich

Properties for sale in Dulwich

Arrange a Viewing

Fill in the form below to arrange your property viewing.

This site is protected by reCAPTCHA and the Google Privacy Policy and Terms of Service apply.
Introduction text for the mortgage calculator

Mortgage Calculator

Fill in the details below to estimate your monthly repayments:

Approximate monthly repayment:

For more information, please contact Winkworth's mortgage partner, Trinity Financial, on +44 (0)20 7267 9399 and speak to the Trinity team.

Stamp Duty Calculator

Fill in the details below to estimate your stamp duty

The above calculator above is for general interest only and should not be relied upon

6/14
Kitchen
Hallway
Reception
Reception
Reception Two
Kitchen
Kitchen
Garden
Garden
Bedroom One
Bedroom Two
Bedroom Three
Bedroom Four
Bathroom One
Bedroom Five
External
Bedroom Two

Meet the Team

Our team at Winkworth Dulwich Estate Agents are here to support and advise our customers when they need it most. We understand that buying, selling, letting or renting can be daunting and often emotionally meaningful. We are there, when it matters, to make the journey as stress-free as possible.

See all team members

Got a question about this property?

This site is protected by reCAPTCHA and the Google Privacy Policy and Terms of Service apply.

More Properties like this

Video Tour

Under Offer

Crystal Palace Road, East Dulwich, London, SE22

Offers in excess of £2,000,000 Freehold

Under Offer

Crystal Palace Road, East Dulwich, London, SE22

£2,000,000 Freehold

Video Tour

Under Offer

Overhill Road, East Dulwich, London, SE22

£2,000,000 Freehold

Under Offer

Friern Road, East Dulwich, London, SE22

Offers in excess of £1,800,000 Freehold

Under Offer

Ondine Road, Peckham Rye, London, SE15

Offers in excess of £1,800,000 Freehold

Under Offer

Bellenden Road, Peckham Rye, London, SE15

Offers in excess of £1,800,000 Freehold

Online Valuations Aren’t Worth The Paper They’re Printed On.

When online valuations don’t give you the whole picture - try Winkworth’s expert service. Get a free property appraisal. Accurate valuations from our local property experts. No obligation to list with Winkworth. Choose a time convenient for you with our online booking system.

Fill in your details and someone will be in touch soon:

You have provisionally booked a valuation for . Please confirm your details below

We don't have date info available for this property, but if you fill in your details below, someone will be in touch to arrange a date soon

Please fill in the required fields below marked with *

This site is protected by reCAPTCHA and the Google Privacy Policy and Terms of Service apply.