Skip to main content

MyWinkworth

Sold

Picture No. 01
Picture No. 17
Picture No. 03
Picture No. 05
Picture No. 07
Picture No. 06
Picture No. 08
Picture No. 09
Picture No. 10
Picture No. 11
Picture No. 12
Picture No. 13
Picture No. 14
Picture No. 04
Picture No. 02
6/14

Silverstone Road, Bourne, Lincolnshire, PE10

3 bedroom house in Bourne

£250,000 Freehold

  • Bedrooms 3
  • Bathrooms 2
  • Reception rooms 2
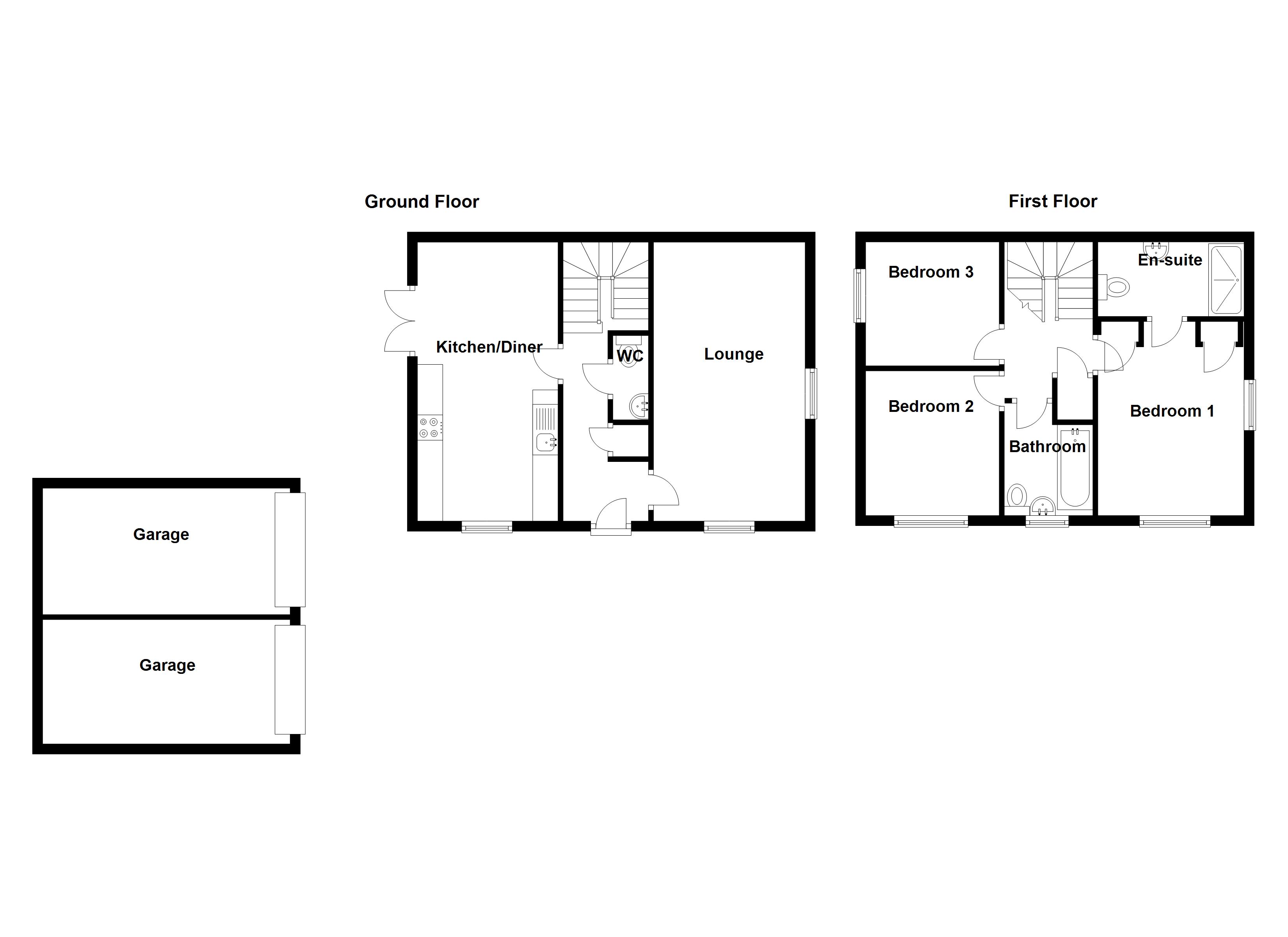
  • Floorplan

PICTURES AND VIDEOS

KEY FEATURES

  • 3 Bedrooms
  • Entrance Hall
  • Lounge
  • Kitchen/Dining Room
  • En-Suite Shower Room
  • Bathroom
  • Outside

KEY INFORMATION

  • Tenure: Freehold
  • Council Tax Band: C
  • Local Authority: South Kesteven District Council

Description

Winkworth are delighted to offer for sale this fantastic three bedroom detached home with the advantage of having two single garages to the side and a really good sized garden making this home a must view. The property is superbly presented throughout and benefits from, entrance hall with downstairs cloakroom off, lounge, modern fitted kitchen/dining room with oak worktops, master bedroom with built in wardrobes and en-suite, two further bedrooms and family bathroom. Outside there are two single garages with a driveway to the front providing off road parking for two cars side by side and to the rear a generous established garden with paved patio leading to a lawned garden being part walled and fully enclosed with further gravelled patio to the rear. Please call 01778 392807 for more information.

Rooms and Accommodations

  • Entrance Hall
  • With stairs leading to the first floor, LVT flooring, radiator, power points, built in storage cupboard and door leading to.
  • Downstairs Cloakroom
  • Witj low level wc and wash hand basin.
  • Lounge
  • 5.64m x 3m
  • With LVT flooring, upvc double glazed windows to the front and side, radiator and power points.
  • Kitchen/Dining Room
  • 5.66m x 2.77m
  • With modern fitted units comprising, sink with cupboard below, excellent range of wall and base units with oak worktops, built in oven and hob with extractor above, space and plumbing for washing machine and dishwasher, space for fridge freezer, wall mounted gas boiler supplying hot water and central heating, LVT flooring, part tiled walls, radiator, upvc double glazed window to the front and french doors to the rear garden.
  • First Floor Landing
  • With built in airing cupboard and door leading to.
  • Bedroom One
  • 3.7m x 3.05m
  • With upvc double glazed windows to the front and side, two built in wardrobes, radiator, power points and door leading to.
  • En-Suite Shower Room
  • With walk in shower cubicle, low level wc, wash hand basin, part tiled walls, heated towel rail and extractor fan.
  • Bedroom Two
  • 3.12m x 2.8m
  • With upvc double glazed window, radiator and power points.
  • Bedroom Three
  • 2.8m x 2.41m
  • With upvc double glazed window, radiator and power points.
  • Bathroom
  • Fitted suite comprising, panelled bath with shower attachment, low level wc, wash hand basin, part tiled walls, heated towel rail and frosted window.
  • Outside
  • To the front there is a gravelled front garden with pathway leading to the first floor. To the side there are two single garages both with driveways in front providing parking for two cars side by side. The rear garden is a really good size being part walled and fully enclosed. There is a newly laid patio leading to a lawned garden with flower and shrub borders with further gravelled patio to the rear of the garden. There is also side access leading to the garage.
Introduction text for the mortgage calculator

Mortgage Calculator

Fill in the details below to estimate your monthly repayments:

Approximate monthly repayment:

For more information, please contact Winkworth's mortgage partner, Trinity Financial, on +44 (0)20 7267 9399 and speak to the Trinity team.

Stamp Duty Calculator

Fill in the details below to estimate your stamp duty

The above calculator above is for general interest only and should not be relied upon

6/14
Picture No. 01
Picture No. 17
Picture No. 03
Picture No. 05
Picture No. 07
Picture No. 06
Picture No. 08
Picture No. 09
Picture No. 10
Picture No. 11
Picture No. 12
Picture No. 13
Picture No. 14
Picture No. 04
Picture No. 02

Meet the Team

Our team are here to support and advise our customers when they need it most. We understand that buying, selling, letting or renting can be daunting and often emotionally meaningful. We are there, when it matters, to make the journey as stress-free as possible.

See all team members

Got a question about this property?

This site is protected by reCAPTCHA and the Google Privacy Policy and Terms of Service apply.

More Properties like this

North Road, Gedney Hill, Spalding, Lincolnshire, PE12

£695,000 Freehold

Under Offer

Clarks Close, Morton, Bourne, Lincolnshire, PE10

£695,000 Freehold

Swallow Hill, Thurlby, Bourne, Lincolnshire, PE10

£685,000 Freehold

High Street, Horbling, Sleaford, Lincolnshire, NG34

£675,000 Freehold

Saxon Way, Bourne, PE10

£550,000 Freehold

Mill Drove, Bourne, Lincolnshire, PE10

Offers in excess of £550,000 Freehold

Online Valuations Aren’t Worth The Paper They’re Printed On.

When online valuations don’t give you the whole picture - try Winkworth’s expert service. Get a free property appraisal. Accurate valuations from our local property experts. No obligation to list with Winkworth. Choose a time convenient for you with our online booking system.

Fill in your details and someone will be in touch soon:

You have provisionally booked a valuation for . Please confirm your details below

We don't have date info available for this property, but if you fill in your details below, someone will be in touch to arrange a date soon

Please fill in the required fields below marked with *

This site is protected by reCAPTCHA and the Google Privacy Policy and Terms of Service apply.