Skip to main content

MyWinkworth

New Instruction

Picture No. 01
Picture No. 02
Picture No. 03
Picture No. 04
Picture No. 05
Picture No. 06
Picture No. 07
Picture No. 08
Picture No. 09
Picture No. 10
Picture No. 11
Picture No. 12
Picture No. 13
6/14

Shelbourne Road, London, N17

3 bedroom house in London

£500,000 Freehold

  • Bedrooms 3
  • Bathrooms 2
  • Reception rooms 1
  • Floorplan

PICTURES AND VIDEOS

KEY FEATURES

  • Three Bedrooms
  • Two Receptions
  • 21ft Kitchen Diner
  • 60ft West Facing Garden
  • Chain Free
  • Loads Of Potential (STPP)

KEY INFORMATION

  • Tenure: Freehold

Description

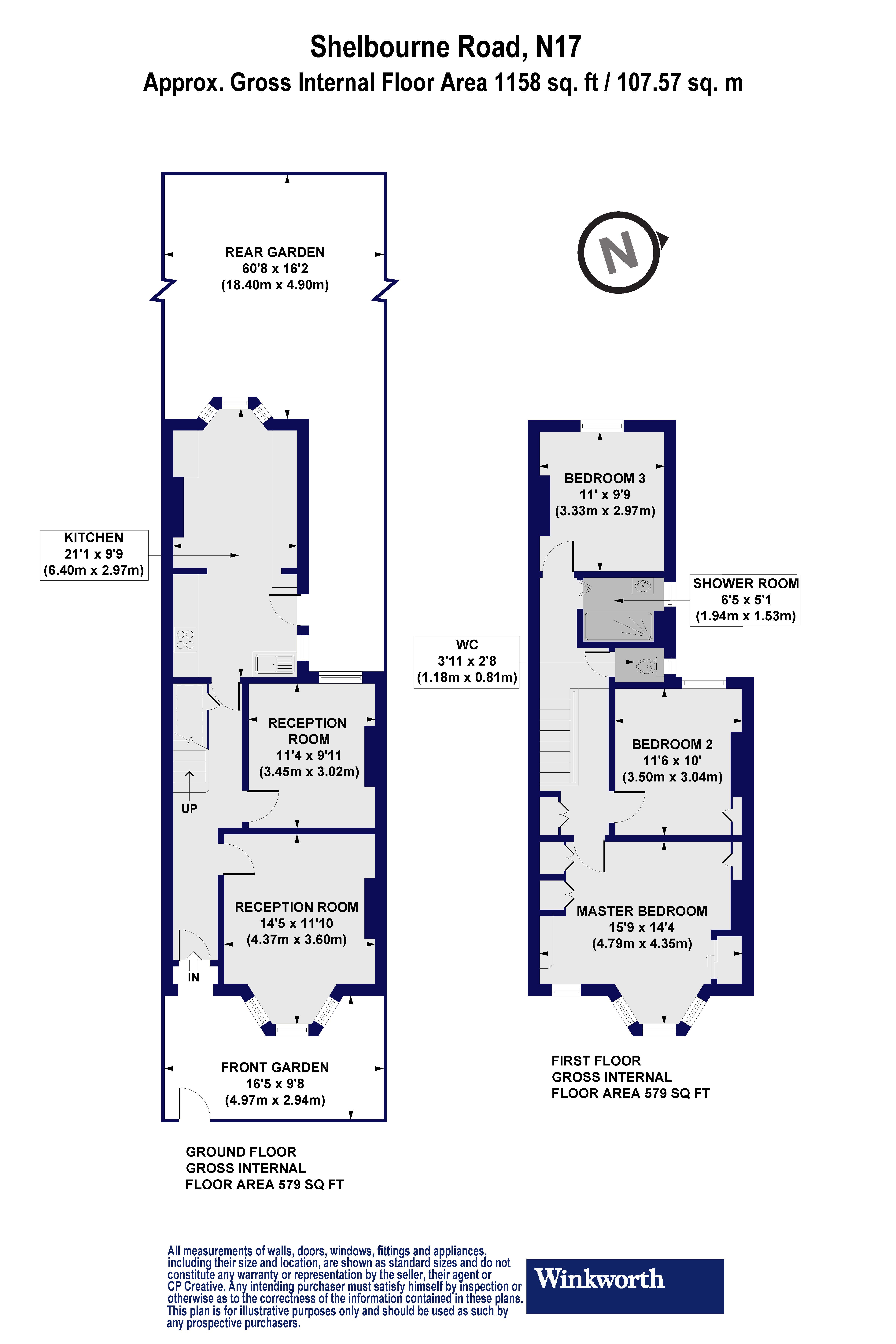
Arranged over two floors, this three-bedroom house offers generous proportions and a brilliant garden, providing a genuine blank canvas to create a home around your own tastes.



The ground floor is made up of two separate reception rooms, along with a 21ft kitchen-diner at the rear. From here, doors lead out to a 60ft west-facing garden, a real standout feature and ideal for both entertaining and future landscaping.

Upstairs, the first floor offers three comfortable double bedrooms, along with a separate bathroom and WC. Above, the loft space presents clear potential to extend, subject to the usual consents, while the ground floor also offers scope for further extension.

With a fireplace in every room and plenty of original period charm, this is a house with real character and the bones of an excellent family home.

Shelbourne Road sits within a popular and growing neighbourhood, particularly well regarded by young families and professionals. Tottenham Hale (Victoria Line) is around a fifteen-minute walk away, Northumberland Park station is just five minutes on foot with direct services to Stratford, and Bruce Grove Overground is roughly ten minutes away. A good selection of schools, green spaces, local shops and cafés are all close by, making this a well-connected and convenient place to settle.

To arrange an appointment to view please contact the sales team at Winkworth Harringay -

Winkworth.co.uk

Your local independently owned property agency with a network of London offices.

Est 1835

Marketed by

Winkworth Harringay

Properties for sale in Harringay

Arrange a Viewing

Fill in the form below to arrange your property viewing.

This site is protected by reCAPTCHA and the Google Privacy Policy and Terms of Service apply.
Introduction text for the mortgage calculator

Mortgage Calculator

Fill in the details below to estimate your monthly repayments:

Approximate monthly repayment:

For more information, please contact Winkworth's mortgage partner, Trinity Financial, on +44 (0)20 7267 9399 and speak to the Trinity team.

Stamp Duty Calculator

Fill in the details below to estimate your stamp duty

The above calculator above is for general interest only and should not be relied upon

6/14
Picture No. 01
Picture No. 02
Picture No. 03
Picture No. 04
Picture No. 05
Picture No. 06
Picture No. 07
Picture No. 08
Picture No. 09
Picture No. 10
Picture No. 11
Picture No. 12
Picture No. 13

Meet the Team

At Winkworth Harringay Estate Agents, we have a comprehensive team of knowledgeable and personable property experts who are excited about the local area. So whether you're buying, selling, renting or letting or simply need some advice, pop into our office on Green Lanes for the experience and the local knowledge you need.

See all team members

Got a question about this property?

This site is protected by reCAPTCHA and the Google Privacy Policy and Terms of Service apply.

More Properties like this

Under Offer

Warham Road, London, N4

Guide Price £1,275,000 Freehold

Under Offer

Atterbury Road, Finsbury Park, N4

Guide Price £1,275,000 Freehold

Under Offer

Sydney Road, London, N8

Guide Price £1,150,000 Freehold

Jansons Road, London, N15

£1,100,000 Freehold

Under Offer

Lausanne Road, London, N8

Guide Price £1,050,000 Freehold

Keston Road, London, N17

Guide Price £965,000 Freehold

Online Valuations Aren’t Worth The Paper They’re Printed On.

When online valuations don’t give you the whole picture - try Winkworth’s expert service. Get a free property appraisal. Accurate valuations from our local property experts. No obligation to list with Winkworth. Choose a time convenient for you with our online booking system.

Fill in your details and someone will be in touch soon:

You have provisionally booked a valuation for . Please confirm your details below

We don't have date info available for this property, but if you fill in your details below, someone will be in touch to arrange a date soon

Please fill in the required fields below marked with *

This site is protected by reCAPTCHA and the Google Privacy Policy and Terms of Service apply.