New Instruction
Ryan Gardens, Ferndown, BH22
3 bedroom bungalow in Ferndown
Guide Price £525,000 Freehold
- 3
- 2
- 2
PICTURES AND VIDEOS

















KEY FEATURES
- Three Double Bedrooms
- Detached Double Garage With Electric Door
- Sought After Cul-De-Sac
- Well Maintained Throughout
- Two Reception Rooms
- Detached Bungalow
- Low Maintenance Garden
- Two Bathrooms
- Off Road Parking
- No Onward Chain
KEY INFORMATION
- Tenure: Freehold
Description
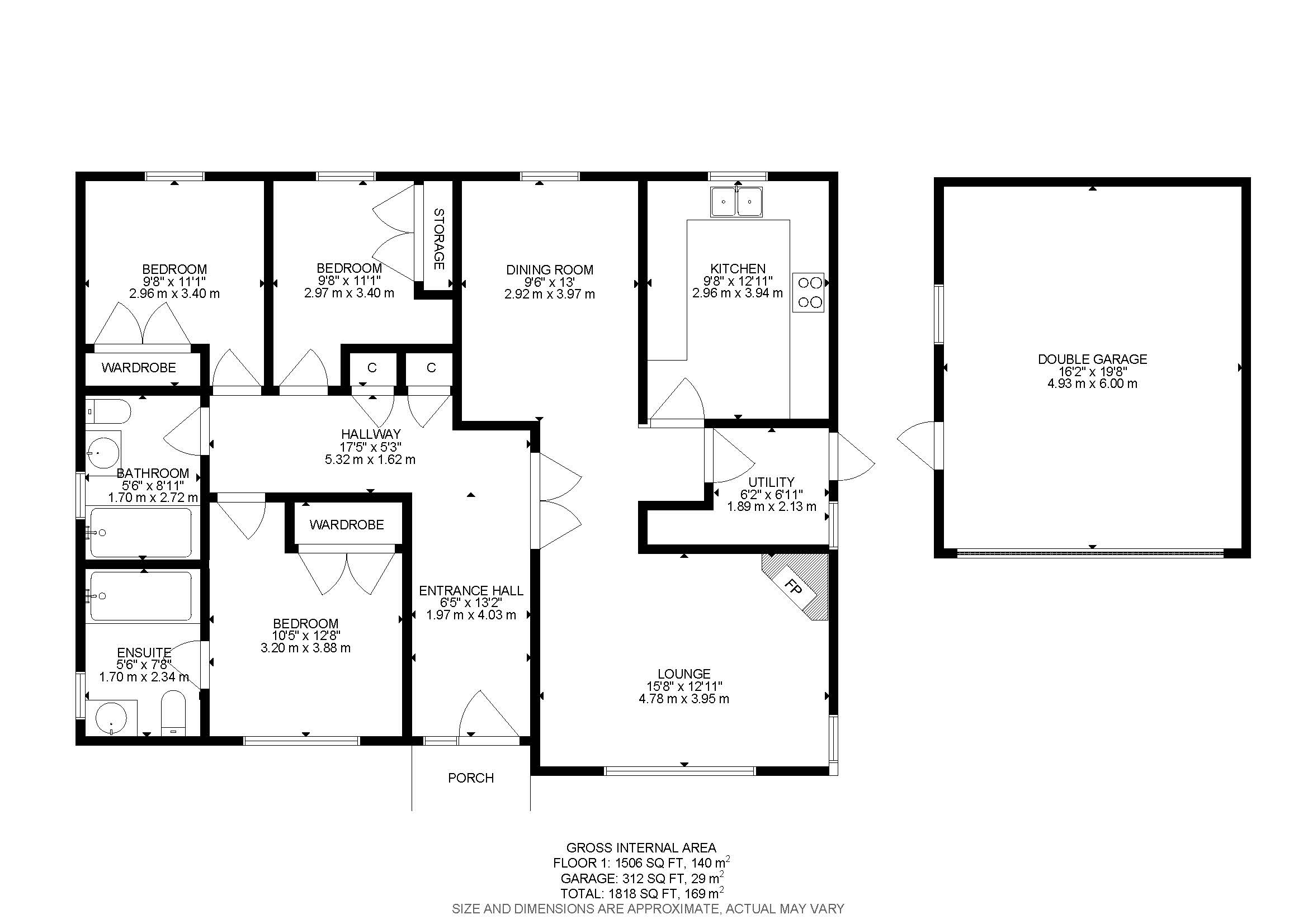
The bungalow features an impressively spacious hallway with excellent storage and a convenient layout with bedrooms to one side of the property and the living space to the other. There is a good size kitchen/breakfast room which leads to a useful utility room with side access, a dining room with sliding doors onto the garden and a light and spacious living room with feature fireplace. The main en-suite bedroom has built in wardrobes and there are two further double bedrooms with fitted storage, as well as a main bathroom with a bath and overhead shower, w.c and hand basin.
Outside, there are well maintained front and rear gardens with the pretty rear garden featuring a patio area leading to artificial grass for easy maintenance with well stocked shrubs and borders. There is off road parking for several vehicles to the side of the property which leads to a detached double garage with electric door. NO ONWARD CHAIN.
Location
Marketed by
Winkworth Ferndown
Properties for sale in FerndownArrange a Viewing
Fill in the form below to arrange your property viewing.
Mortgage Calculator
Fill in the details below to estimate your monthly repayments:
Approximate monthly repayment:
For more information, please contact Winkworth's mortgage partner, Trinity Financial, on +44 (0)20 7267 9399 and speak to the Trinity team.
Stamp Duty Calculator
Fill in the details below to estimate your stamp duty
The above calculator above is for general interest only and should not be relied upon
Meet the Team
As one of the most experienced teams in Ferndown our recently refurbished office is found in the heart of Ferndown. Please come and talk to us about your property requirements, and get to know the team from the Winkworth Estate Agents in Ferndown.
See all team members