Skip to main content

MyWinkworth

Sold

Picture No. 04
Picture No. 17
Picture No. 16
Picture No. 06
Picture No. 05
Picture No. 07
Picture No. 12
Picture No. 03
Picture No. 13
Picture No. 09
Picture No. 08
Picture No. 18
Picture No. 19
Picture No. 02
Picture No. 01
Picture No. 14
Picture No. 15
Picture No. 11
Picture No. 10
6/14

Russell Avenue, Noel Park, London, N22

2 bedroom house in Noel Park

£700,000 Freehold

  • Bedrooms 2
  • Bathrooms 1
  • Reception rooms 2
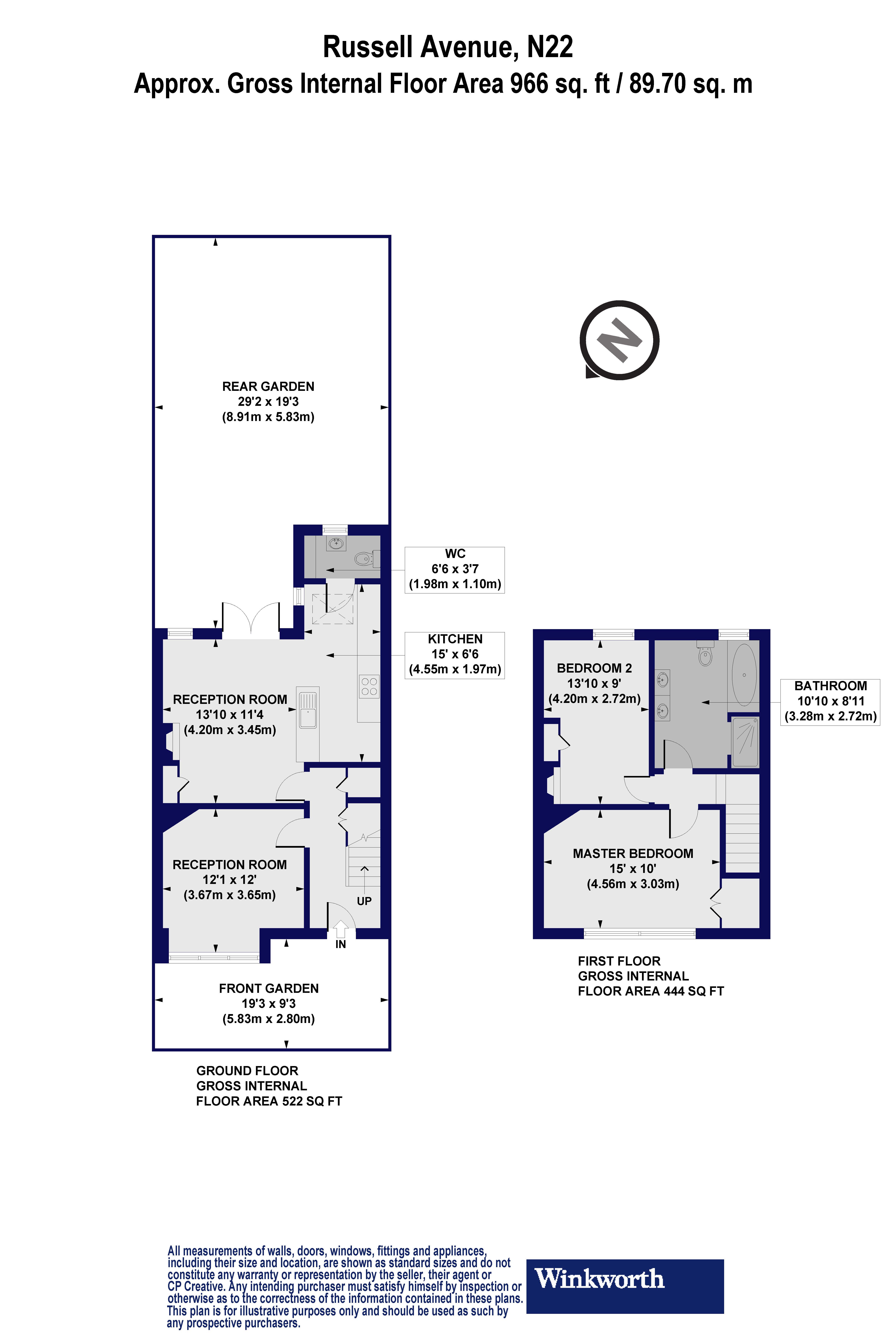
  • Floorplan

PICTURES AND VIDEOS

KEY FEATURES

  • Two Double Bedrooms
  • Open Plan Kitchen Reception Room
  • Separate Sitting Room
  • Fitted Kitchen
  • Utility Room
  • First Floor Bathroom
  • Private Garden
  • Excellent Order Throughout
  • Close To Transport Links and Park
  • Chain Free

KEY INFORMATION

  • Tenure: Freehold

Description

This charming and stylish two bedroom period house sits within the highly sought after Noel Park Conservation Area of Wood Green, London N22.

Providing bright and well-proportioned accommodation this well presented property spans over 966 Sq ft. Comprising a spacious entrance hall, a separate reception room, original restored wooden floors throughout, open plan and well fitted kitchen/living area maximising space and light and enhanced by good a sized rear south facing garden.

The first floor features two double bedrooms and a modern and generous bathroom with underfloor heating.

The Noel Park Conservation Area is an attractive collection of period homes planned and developed by The Artisans, Labourers and General Dwellings Company circa 1881 to 1913. The houses were designed to house the families of artisans, skilled workers and labourers in fashionable cottage style dwellings. The area still retains its homogenous and distinguished appearance today and was designated as a conservation area in 1982 in recognition of its special architectural and historic significance and to preserve and enhance its character and appearance.

A peaceful and convenient location, there's a choice of good nurseries and Noel Park Primary School is rated Outstanding by Ofsted.

Turnpike Lane Underground Station (Piccadilly Line Zone 3) is within just 8 minutes' walking distance (0.4 mile). There’s lots of green space nearby; Russell Park and Belmont Park, Downhills Park and Lordship Rec are all within a few minutes’ walk.

The Hub at Lordship Rec offers a range of community activities including yoga and children’s clubs, nearby Alexandra Palace is good for walks, concerts, the newly reopened theatre and the farmers’ market on Sundays.

Please contact the Sales department at Winkworth Harringay office to arrange an appointment to view 020 8800 [email protected]


Winkworth.co.uk

Your local independently owned property agency with a network of 62 London offices.


Est 1835

Follow us on Instagram - @winkworthharringay
Introduction text for the mortgage calculator

Mortgage Calculator

Fill in the details below to estimate your monthly repayments:

Approximate monthly repayment:

For more information, please contact Winkworth's mortgage partner, Trinity Financial, on +44 (0)20 7267 9399 and speak to the Trinity team.

Stamp Duty Calculator

Fill in the details below to estimate your stamp duty

The above calculator above is for general interest only and should not be relied upon

6/14
Picture No. 04
Picture No. 17
Picture No. 16
Picture No. 06
Picture No. 05
Picture No. 07
Picture No. 12
Picture No. 03
Picture No. 13
Picture No. 09
Picture No. 08
Picture No. 18
Picture No. 19
Picture No. 02
Picture No. 01
Picture No. 14
Picture No. 15
Picture No. 11
Picture No. 10

Meet the Team

At Winkworth Harringay Estate Agents, we have a comprehensive team of knowledgeable and personable property experts who are excited about the local area. So whether you're buying, selling, renting or letting or simply need some advice, pop into our office on Green Lanes for the experience and the local knowledge you need.

See all team members

Got a question about this property?

This site is protected by reCAPTCHA and the Google Privacy Policy and Terms of Service apply.

More Properties like this

Under Offer

Warham Road, London, N4

Guide Price £1,275,000 Freehold

Under Offer

Atterbury Road, Finsbury Park, N4

Guide Price £1,275,000 Freehold

Under Offer

Sydney Road, London, N8

Guide Price £1,150,000 Freehold

Under Offer

Lausanne Road, London, N8

Guide Price £1,050,000 Freehold

Under Offer

Hewitt Road, London, N8

£975,000 Freehold

Keston Road, London, N17

Guide Price £965,000 Freehold

Online Valuations Aren’t Worth The Paper They’re Printed On.

When online valuations don’t give you the whole picture - try Winkworth’s expert service. Get a free property appraisal. Accurate valuations from our local property experts. No obligation to list with Winkworth. Choose a time convenient for you with our online booking system.

Fill in your details and someone will be in touch soon:

You have provisionally booked a valuation for . Please confirm your details below

We don't have date info available for this property, but if you fill in your details below, someone will be in touch to arrange a date soon

Please fill in the required fields below marked with *

This site is protected by reCAPTCHA and the Google Privacy Policy and Terms of Service apply.