Under Offer
Rowlands Hill, Wimborne, Dorset, BH21
11 bedroom house
£1,500,000 Freehold
- 11
- 6
- 5
PICTURES AND VIDEOS























KEY FEATURES
- Character home with planning for change of use to convert into a large single residence
- Separate planning to redevelop the coach house
- Set in over 0.4 acres of gardens
- In the heart of this market town
KEY INFORMATION
- Tenure: Freehold
- Council Tax Band: G
Description
With Planning permission for change of use to residential use obtained to convert it into a large single residence and separate planning permission to redevelop the Coach House as a separate dwelling this is rare opportunity.
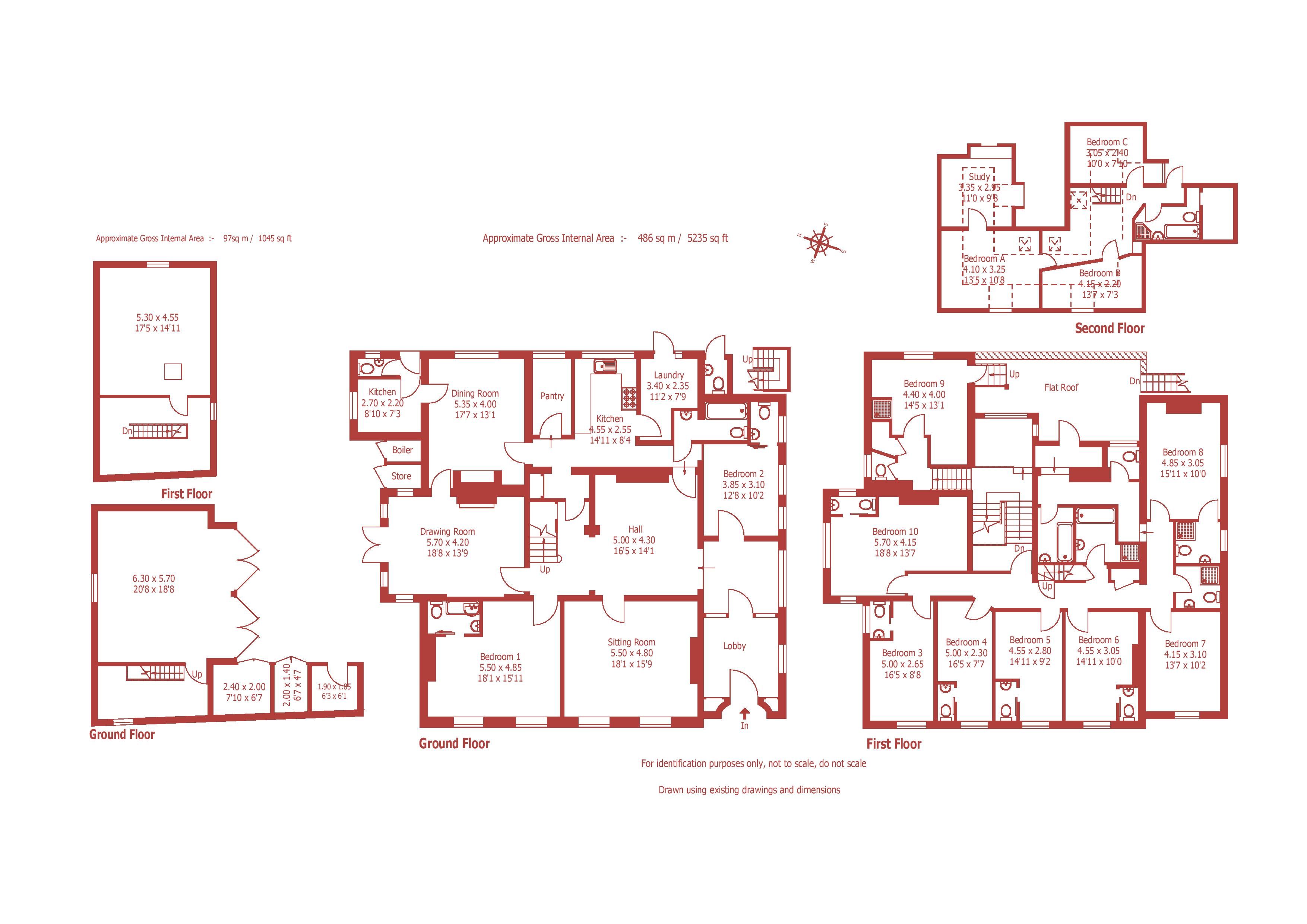
Stoneleigh House was built in the 1860s and is an imposing character home set within a conservation area in the heart of the market town of Wimborne Minster. Formerly a family-run nursing home, the main residence covers over 5,000 square feet across 3 floors, and has planning permission to convert back into a substantial residential home with 6 large bedrooms, a home gym, cinema space, and multiple reception areas. It retains many of its original features, including sash windows, high ceilings, intricate cornicing and glasswork.
A separate coach house set within the grounds is currently used for garaging and storage. This has its own planning permission to be converted into a detached 3 bedroom, 2 reception room detached home with private entrance and garden.
Approaching the property, you are greeted by a large wooden door with imposing pillars either side. The lobby leads to an inner reception space with leaded light windows, wooden parquet floors, and access to a large central reception hall with a feature fireplace and ionic columns. All rooms are accessed from this hall, including 3 large reception rooms (2 with front aspects and one with side aspect and garden doors), a fourth room currently used as a bedroom (with toilet), kitchen, dining room, bathroom and separate toilet. These rooms boast high ceilings, picture rails, intricate lighting, cornices and coving, feature fireplaces and sash windows.
The dining room, with a rear aspect, connects to the utility room and a ground floor cloakroom, and leads to multiple parking spaces. The kitchen features a pantry and further utility space and has an industrial feel.
There is a beautiful staircase with a half landing reading area and feature picture window. At this point the staircase splits with the main stairs leading to the first floor, while a small set of stairs lead to a double bedroom with its own shower and sink, a separate WC and a fire door to the flat roof space.
The first floor contains a series of rooms formerly for residents and is currently arranged as 7 bedrooms, many of which have WCs and some which have en suite wet rooms. They range from large doubles with view across the gardens through to smaller, split rooms which, under the current planning permission, could be returned to their original size. A hallway with a feature fireplace, separate WC, separate bath, and access to the flat roof space which is accessed via a few steps.
A narrow staircase leads to the second floor accommodation which includes 3 double bedrooms (one with an additional dressing room), with either Velux or dormer style windows, and a separate bathroom.
Set in grounds of over 0.4 of an acre are various outbuildings, including a wooden summerhouse (with power and lighting) and a detached coach house. The latter has power and lighting, and 2 floors accessible via barn-style wooden doors and a wooden staircase. It would be ideal for a home office and has planning permission to convert into a separate 3 bedroom, 2 bathroom dwelling. The gardens, which are well maintained and offer tranquillity in the heart of Wimborne, feature well-stocked borders with mature plants, shrubs and trees, and a tarmac drive with ample off road parking at the front and secondary parking to the rear.
Agents Note: Planning permission expires November 2024
Location
Mortgage Calculator
Fill in the details below to estimate your monthly repayments:
Approximate monthly repayment:
For more information, please contact Winkworth's mortgage partner, Trinity Financial, on +44 (0)20 7267 9399 and speak to the Trinity team.
Stamp Duty Calculator
Fill in the details below to estimate your stamp duty
The above calculator above is for general interest only and should not be relied upon