Skip to main content

MyWinkworth

New Instruction

Picture No. 01
6/14

Purves Road, London, NW10

3 bedroom house in London

£899,950 Freehold

  • Bedrooms 3
  • Bathrooms 1
  • Reception rooms 2
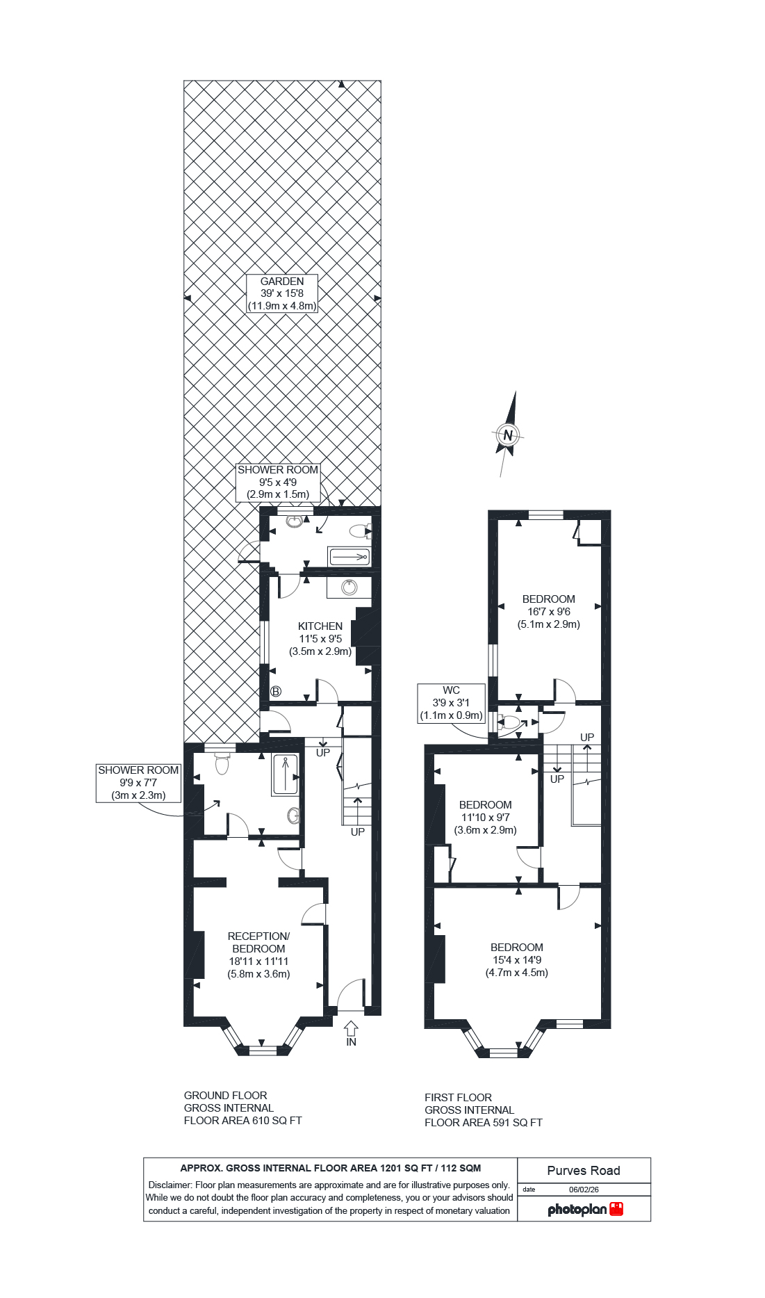
  • Floorplan

PICTURES AND VIDEOS

KEY FEATURES

  • 1200 SQ.FT
  • IN NEED OF RENOVATION
  • GREAT LOCATION
  • CLOSE TO TRANSPORT
  • VICTORIAN PERIOD PROPERTY
  • HUGE POTENTIAL

KEY INFORMATION

  • Tenure: Freehold
  • Council Tax Band: E

Description

A fantastic opportunity to purchase this unmodernized family home in a highly sought after location and transform it into your dream house

This 1,200 sq. ft. Victorian period property currently offers three bedrooms and presents an exceptional opportunity for buyers seeking a renovation project in a highly desirable location.

Rich in period character and architectural charm, the property offers huge potential to be transformed into a quality family home.

Many comparable properties in the area have been successfully extended and reconfigured to create four bedrooms and two bathrooms, and these homes sell extremely well as finished family properties. Subject to the usual consents, this property offers similar scope for extension and value enhancement.

An exciting prospect for owner occupiers, developers or investors looking to create a bespoke home in a up and coming, well connected location.

Utilities

  • Heating: Central Heating, Gas Central
  • Broadband: FTTP
  • Mobile Coverage: Excellent

Rights & Restrictions

  • Restrictions: Yes
  • Easements, servitudes or wayleaves: Yes

Risks

Location

This property enjoys an ideal location on Purves Road, just moments from the amenities of College Road, including the Island Pub, L’Anglos Italian Deli, and the Kensal Store.

Excellent transport links are nearby at Kensal Green Station, offering the Bakerloo Line and London Overground services to Euston.

Families will appreciate being directly opposite Princess Fredericas School and College Green Nursery, both highly sought after.

The house is also conveniently close to three local parks, Queens Park, Roundwood Park, and King Edwards Park, making this a highly desirable location.

Marketed by

Winkworth Kensal Rise & Queen's Park

Properties for sale in Kensal Rise & Queen's Park

Arrange a Viewing

Fill in the form below to arrange your property viewing.

This site is protected by reCAPTCHA and the Google Privacy Policy and Terms of Service apply.
Introduction text for the mortgage calculator

Mortgage Calculator

Fill in the details below to estimate your monthly repayments:

Approximate monthly repayment:

For more information, please contact Winkworth's mortgage partner, Trinity Financial, on +44 (0)20 7267 9399 and speak to the Trinity team.

Stamp Duty Calculator

Fill in the details below to estimate your stamp duty

The above calculator above is for general interest only and should not be relied upon

6/14
Picture No. 01

Meet the Team

Our team are here to support and advise our customers when they need it most. We understand that buying, selling, letting or renting can be daunting and often emotionally meaningful. We are there, when it matters, to make the journey as stress-free as possible.

See all team members

Got a question about this property?

This site is protected by reCAPTCHA and the Google Privacy Policy and Terms of Service apply.

More Properties like this

Under Offer

Keslake Road, London, NW6

£2,650,000 Freehold

Under Offer

Chevening Road, London, NW6

£2,195,000 Freehold

Chelmsford Square, London, NW10

Offers in excess of £2,000,000 Freehold

Under Offer

Herbert Gardens, London, NW10

£2,000,000 Freehold

Under Offer

Ashburnham Road, London, NW10

£1,875,000 Freehold

Dobree Avenue, London, NW10

£1,699,950 Freehold

Online Valuations Aren’t Worth The Paper They’re Printed On.

When online valuations don’t give you the whole picture - try Winkworth’s expert service. Get a free property appraisal. Accurate valuations from our local property experts. No obligation to list with Winkworth. Choose a time convenient for you with our online booking system.

Fill in your details and someone will be in touch soon:

You have provisionally booked a valuation for . Please confirm your details below

We don't have date info available for this property, but if you fill in your details below, someone will be in touch to arrange a date soon

Please fill in the required fields below marked with *

This site is protected by reCAPTCHA and the Google Privacy Policy and Terms of Service apply.