Skip to main content

MyWinkworth

New Instruction

Picture No. 18
Picture No. 13
Picture No. 22
Picture No. 17
Picture No. 15
Picture No. 19
Picture No. 14
Picture No. 16
Picture No. 21
6/14

Purves Road, London, NW10

2 bedroom flat/apartment in London

£550,000 Leasehold

  • Bedrooms 2
  • Bathrooms 1
  • Reception rooms 1
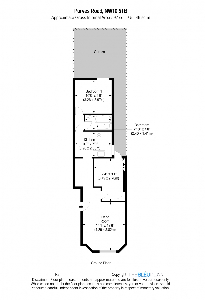
  • Dimensions 597 sq ft
    55 sq m
  • Floorplan

PICTURES AND VIDEOS

KEY FEATURES

  • PRIVATE REAR GARDEN
  • TWO BEDROOMS
  • CENTRALLY LOCATED TO TRANSPORT LINKS & AMENITIES
  • EXCELLENT CONDITION THROUGHOUT
  • CATCHMENT FOR PRINCESS FREDERICA SCHOOL
  • QUIET STREET
  • NEWLY PAINTED AND DECORATED
  • NEWLY REFURBISHED FLOORS THROUGHOUT

KEY INFORMATION

  • Tenure: Leasehold
  • Lease Length: 95 yrs left
  • Ground rent: £30.00 per annum
  • Service charge: £468.00 per annum
  • Council Tax Band: B
  • Local Authority: London Borough Of Brent

Description

A characterful and well-presented two bedroom ground floor flat, with private garden located in the heart of Kensal Rise on Purves Road.

This lovely flat comprises of a light and airy reception room to the front of the property, with large sash bay window and high ceilings. Located to the middle of the property is the kitchen with ample counter and unit space. The shower room is a fully tiled three piece suite with modern fittings. The principle bedroom is located to the rear of the property, overlooking the garden, with the second bedroom also being a double room, providing direct access on to the garden. The garden is paved with mature plants around the borders. This is a wonderful entertaining space, especially as we enter the spring and summer months. Overall, the flat is tasteful throughout and is presented in excellent condition having recently been completely painted and decorated, as well as newly refurbished floors throughout.
Viewing comes highly recommended.

ACCESSIBILITY

  • Lateral Living
  • Level Access
  • Level Access Shower

Utilities

  • Electricity Supply: Mains Supply
  • Water Supply: Mains Supply
  • Sewerage: Mains Supply
  • Heating: Central Heating, Gas Central
  • Broadband: FTTP
  • Mobile Coverage: Excellent

Rights & Restrictions

  • Listed Property: No
  • Restrictions: Yes
  • Easements, servitudes or wayleaves: Yes
  • Public right of way: No

Risks

  • Flood Risk: There has not been flooding in the last 5 years

Location

Purves Road is ideally located on quiet residential street which is a few moments from Kensal Green Underground (Zone 2, Bakerloo line) & Overground to Euston, allowing for quick and convenient access to Central London and other parts of the city. The no. 18 bus along Harrow Road also takes you to Euston. College Road is highly popular with independent shops, cafes and The Island GastroPub. Princess Frederica CE School is also within the catchment area and highly popular with families moving to the area.

Marketed by

Winkworth Kensal Rise & Queen's Park

Properties for sale in Kensal Rise & Queen's Park

Arrange a Viewing

Fill in the form below to arrange your property viewing.

This site is protected by reCAPTCHA and the Google Privacy Policy and Terms of Service apply.
Introduction text for the mortgage calculator

Mortgage Calculator

Fill in the details below to estimate your monthly repayments:

Approximate monthly repayment:

For more information, please contact Winkworth's mortgage partner, Trinity Financial, on +44 (0)20 7267 9399 and speak to the Trinity team.

Stamp Duty Calculator

Fill in the details below to estimate your stamp duty

The above calculator above is for general interest only and should not be relied upon

6/14
Picture No. 18
Picture No. 13
Picture No. 22
Picture No. 17
Picture No. 15
Picture No. 19
Picture No. 14
Picture No. 16
Picture No. 21

Meet the Team

Our team are here to support and advise our customers when they need it most. We understand that buying, selling, letting or renting can be daunting and often emotionally meaningful. We are there, when it matters, to make the journey as stress-free as possible.

See all team members

Got a question about this property?

This site is protected by reCAPTCHA and the Google Privacy Policy and Terms of Service apply.

More Properties like this

Leighton Gardens, London, NW10

£1,150,000 Leasehold

Under Offer

College Road, London, NW10

£875,000 Share of Freehold

Under Offer

Leighton Gardens, London, NW10

£850,000 Leasehold

Under Offer

Keslake Road, London, NW6

£800,000 Share of Freehold

New Instruction

Harvist Road, London, NW6

£775,000 Leasehold

Under Offer

Burrows Road, London, NW10

£700,000 Freehold

Online Valuations Aren’t Worth The Paper They’re Printed On.

When online valuations don’t give you the whole picture - try Winkworth’s expert service. Get a free property appraisal. Accurate valuations from our local property experts. No obligation to list with Winkworth. Choose a time convenient for you with our online booking system.

Fill in your details and someone will be in touch soon:

You have provisionally booked a valuation for . Please confirm your details below

We don't have date info available for this property, but if you fill in your details below, someone will be in touch to arrange a date soon

Please fill in the required fields below marked with *

This site is protected by reCAPTCHA and the Google Privacy Policy and Terms of Service apply.