Skip to main content

MyWinkworth

Sold

Front
Reception Room
Kitchen
Kitchen
Balcony
Bedroom
En-Suite
Bedroom
Bathroom
Front Views
The Maltings
Parking
6/14

Pirnhow Street, Ditchingham, Bungay, Norfolk, NR35

2 bedroom flat/apartment in Ditchingham

Guide Price £190,000 Leasehold

  • Bedrooms 2
  • Bathrooms 2
  • Reception rooms 1
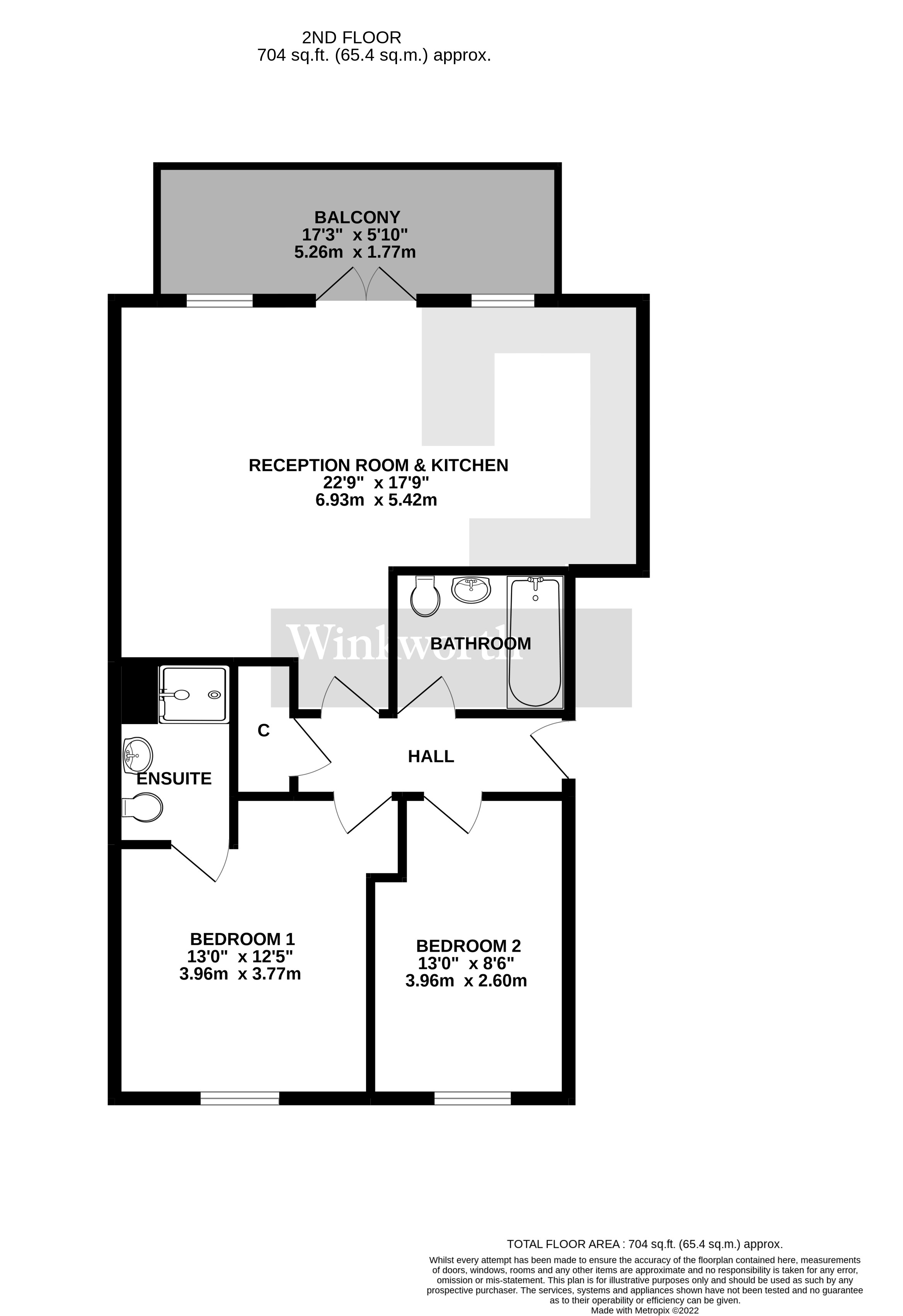
  • Floorplan

PICTURES AND VIDEOS

KEY FEATURES

  • Guide Price £190,000 - £200,000
  • No Onward Chain
  • Stunning Conversion Offering Over 700 SQ FT
  • Secure Intercom Entry System & Communal Lift
  • Allocated Parking, Visitors Parking & Communal Gardens
  • 2nd Floor 2 Double Bedroom Apartment
  • Remarkable Open Plan Reception Room & Kitchen
  • Quality Integrated Appliances & Large Storage Cupboard
  • 17ft Balcony Perfect For Alfresco Dining
  • Easy Access To Norwich, Bungay and Beccles

KEY INFORMATION

  • Tenure: Leasehold

Description

Perfectly positioned within the highly desirable 'Waterside Maltings development' stands this deceptively spacious home. This remarkable conversion was meticulously designed and finished by the renowned P J Livesey, this unique property is a must see! Designed with open plan living in mind, the sizeable reception room and kitchen seamlessly flow as one, creating the ideal environment for entertaining. Double doors lead to a large balcony which offer ample space for alfresco dining. The kitchen itself offers a fashionable feel and comes equipped with all the integrated appliances you could wish for. Both the bedrooms are doubles and both enjoy an attractive outlook. The principal bedroom features a stylish en-suite, and the family bathroom is in pristine condition. The property comes complete with allocated parking and use of the communal gardens and visitor parking bays. This alluring home offers easy access to Norwich, Bungay and Beccles and is sure to be popular. Offered with no onward chain.
Introduction text for the mortgage calculator

Mortgage Calculator

Fill in the details below to estimate your monthly repayments:

Approximate monthly repayment:

For more information, please contact Winkworth's mortgage partner, Trinity Financial, on +44 (0)20 7267 9399 and speak to the Trinity team.

Stamp Duty Calculator

Fill in the details below to estimate your stamp duty

The above calculator above is for general interest only and should not be relied upon

6/14
Front
Reception Room
Kitchen
Kitchen
Balcony
Bedroom
En-Suite
Bedroom
Bathroom
Front Views
The Maltings
Parking

Meet the Team

With over 100 years of combined experience, our Poringland team offer unrivalled local knowledge and a genuine passion for property. Since opening in 2018, we’ve proudly supported more local schools, events and community initiatives than any other agent in the area — because community isn’t just part of what we do, it’s who we are. As market leaders, we’re committed to delivering exceptional service and care to every customer. Whether you’re buying, selling, renting, lettings or simply exploring your next move, pop into our office for a coffee and a warm welcome.

See all team members

Got a question about this property?

This site is protected by reCAPTCHA and the Google Privacy Policy and Terms of Service apply.

More Properties like this

Under Offer

Hamilton Court, Trafalgar Square, Poringland, Norwich, NR14

Guide Price £220,000 Leasehold

Poringland, Norwich, Norfolk, NR14

Guide Price £220,000 Leasehold

Poringland, Norwich, Norfolk, NR14

£210,000 Leasehold

Poringland, Norwich, Norfolk, NR14

Guide Price £210,000 Leasehold

Poringland, Norwich, Norfolk, NR14

£210,000 Leasehold

New Instruction

Hamilton Court, Trafalgar Square, Poringland, Norwich, NR14

Guide Price £210,000 Leasehold

Online Valuations Aren’t Worth The Paper They’re Printed On.

When online valuations don’t give you the whole picture - try Winkworth’s expert service. Get a free property appraisal. Accurate valuations from our local property experts. No obligation to list with Winkworth. Choose a time convenient for you with our online booking system.

Fill in your details and someone will be in touch soon:

You have provisionally booked a valuation for . Please confirm your details below

We don't have date info available for this property, but if you fill in your details below, someone will be in touch to arrange a date soon

Please fill in the required fields below marked with *

This site is protected by reCAPTCHA and the Google Privacy Policy and Terms of Service apply.