Skip to main content

MyWinkworth

New Instruction

Picture No. 30
Picture No. 29
Picture No. 02
Picture No. 03
Picture No. 04
Picture No. 05
Picture No. 06
Picture No. 07
Picture No. 08
Picture No. 01
Picture No. 25
Picture No. 23
Picture No. 17
Picture No. 18
Picture No. 19
Picture No. 20
Picture No. 21
Picture No. 24
Picture No. 22
Picture No. 11
Picture No. 31
Picture No. 12
Picture No. 10
Picture No. 09
6/14

Old Ruttington Lane, Canterbury, Kent, CT1

4 bedroom house in Canterbury

£650,000 Freehold

  • Bedrooms 4
  • Bathrooms 3
  • Reception rooms 2
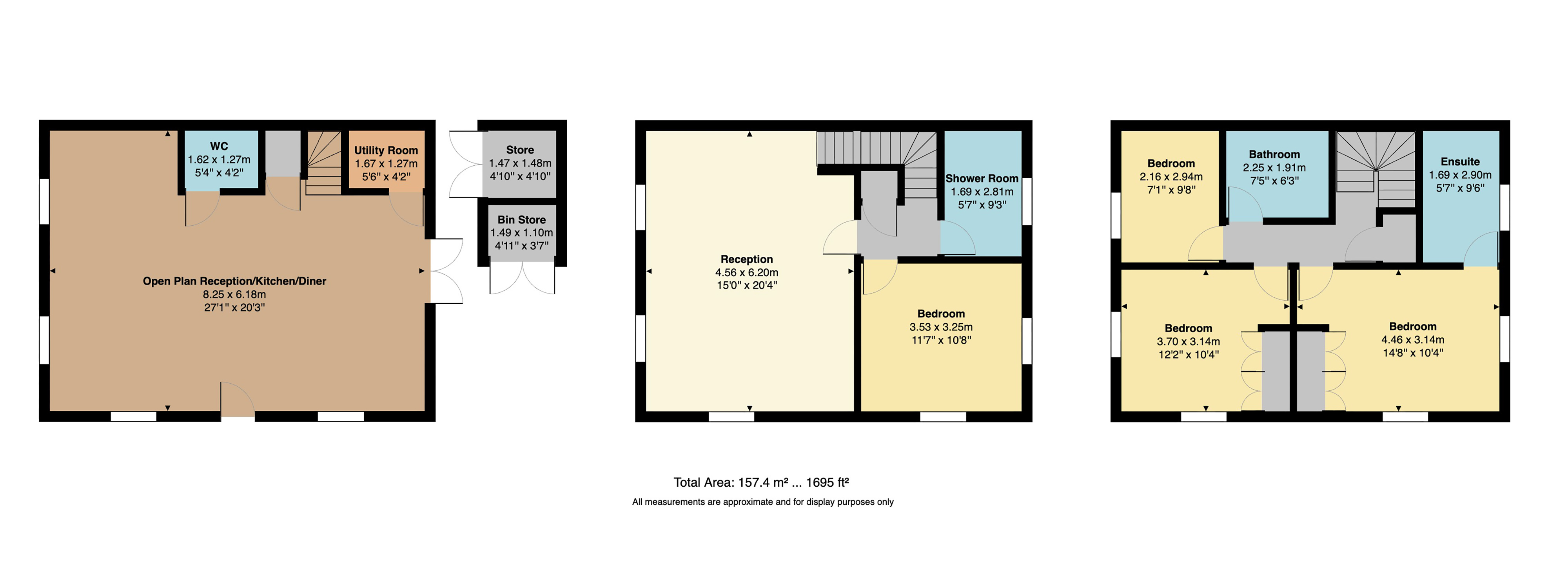
  • Dimensions 1695 sq ft
    157 sq m
  • Floorplan

PICTURES AND VIDEOS

KEY FEATURES

  • Front and Rear Garden

KEY INFORMATION

  • Tenure: Freehold
  • Council Tax Band: F
  • Local Authority: Canterbury City Council

Description

A unique property which stands proud on the edge of this small development from award winning developers, Rogate. Close to the City Centre and Canterbury train stations this is an attractive four bedroom town house.

Situated on the edge of the historical City of Canterbury, close to the Cathedral Precincts and St Augustine’s Abbey, St Thomas Place is a small and exclusive development of eight townhouses and six apartments. 1 St Thomas is a larger property with Cathedral views from many of the windows.

Marrying contemporary design features with a timeless style, the latest build practices and high-specification, modern fixtures and fittings, these are sophistic homes that, nonetheless, sit very comfortably within the historical context of Canterbury City.

Arranged over three floors, the thoughtfully conceived layout includes a large, open-plan living space with living area, dining area and kitchen. The large open plan area is triple aspect so light floods through from all angles. There is also a utility room and cloakroom.

Doors open onto a courtyard/decked enclosed rear garden with a purpose built shed and bin store, leading out to the gated parking area, with allocated parking for one vehicle. On the first floor lies a second, large living room as well as a bedroom and shower room. Three further bedrooms are arranged on the second floor, including an ensuite shower room to the main bedroom, and a further bathroom.

French doors open onto the fully enclosed walled courtyard garden, with storage cupboard and access to the allocated parking space, which is enclosed by a secure electric wrought iron gate. The front of the property has wrought iron railings with a gate leading to a small area of garden.

This property is highly energy efficient, with an EPC rating B, Gas central heating, underfloor heating on the ground floor, air exchange ventilation system, fire sprinkler system integrated with the fire alarm and an EV charging point.

The town centre is just a few minutes walk from the property and offers a wide range of shopping facilities, restaurants and entertainment, including Canterbury's popular Marlowe Theatre, and street side cafes. Canterbury is well served by other amenities including a wealth of high-achieving schools, two mainline stations to London and excellent access to the coastal ports of Dover and Folkestone.

Utilities

  • Electricity Supply: Mains Supply
  • Water Supply: Mains Supply
  • Sewerage: Mains Supply
  • Heating: Gas Central
  • Broadband: FTTP

Marketed by

Winkworth Canterbury

Properties for sale in Canterbury

Arrange a Viewing

Fill in the form below to arrange your property viewing.

This site is protected by reCAPTCHA and the Google Privacy Policy and Terms of Service apply.
Introduction text for the mortgage calculator

Mortgage Calculator

Fill in the details below to estimate your monthly repayments:

Approximate monthly repayment:

For more information, please contact Winkworth's mortgage partner, Trinity Financial, on +44 (0)20 7267 9399 and speak to the Trinity team.

Stamp Duty Calculator

Fill in the details below to estimate your stamp duty

The above calculator above is for general interest only and should not be relied upon

6/14
Picture No. 30
Picture No. 29
Picture No. 02
Picture No. 03
Picture No. 04
Picture No. 05
Picture No. 06
Picture No. 07
Picture No. 08
Picture No. 01
Picture No. 25
Picture No. 23
Picture No. 17
Picture No. 18
Picture No. 19
Picture No. 20
Picture No. 21
Picture No. 24
Picture No. 22
Picture No. 11
Picture No. 31
Picture No. 12
Picture No. 10
Picture No. 09

Meet the Team

Our team at Winkworth Canterbury Estate Agents are here to support and advise our customers when they need it most. We understand that buying, selling, letting or renting can be daunting and often emotionally meaningful. We are there, when it matters, to make the journey as stress-free as possible.

See all team members

Got a question about this property?

This site is protected by reCAPTCHA and the Google Privacy Policy and Terms of Service apply.

More Properties like this

Station Road, Patrixbourne, Canterbury, Kent, CT4

Offers over £2,000,000 Freehold

Video Tour

Joss Gap Road, Broadstairs, Kent, CT10

Offers in excess of £1,850,000 Freehold

Video Tour

Richdore Road, Waltham, Canterbury, Kent, CT4

£1,295,000 Freehold

Video Tour

Meadow Close, Bridge, Canterbury, Kent, CT4

£1,250,000

Video Tour

Water Lane, Ospringe, Faversham, Kent, ME13

£1,050,000 Freehold

Video Tour

Canterbury Road, Wingham, Canterbury, CT3

£795,000 Leasehold

Online Valuations Aren’t Worth The Paper They’re Printed On.

When online valuations don’t give you the whole picture - try Winkworth’s expert service. Get a free property appraisal. Accurate valuations from our local property experts. No obligation to list with Winkworth. Choose a time convenient for you with our online booking system.

Fill in your details and someone will be in touch soon:

You have provisionally booked a valuation for . Please confirm your details below

We don't have date info available for this property, but if you fill in your details below, someone will be in touch to arrange a date soon

Please fill in the required fields below marked with *

This site is protected by reCAPTCHA and the Google Privacy Policy and Terms of Service apply.