New Instruction
Oaklands, Framingham Earl, Norwich, Norfolk, NR14
3 bedroom house in Framingham Earl
Guide Price £375,000 Freehold
- 3
- 2
- 4
PICTURES AND VIDEOS
























KEY FEATURES
- Guide Price £375,000 - £400,000
- Immaculately Presented Throughout
- Highly Desirable Cul-De-Sac
- Walking Distance Of Amenities & Schools
- Extended Family Room With Featured Domb Skylight
- Exceptional Non-Over Looked Large Front & Rear Gardens
- Impressive Driveway & Single Garage
- Modern Kitchen With Built In Appliances
- Sizeable Sitting Room Flooded With Natural Light
- Family Bathroom, En Suite & Additional WC
KEY INFORMATION
- Tenure: Freehold
- Council Tax Band: D
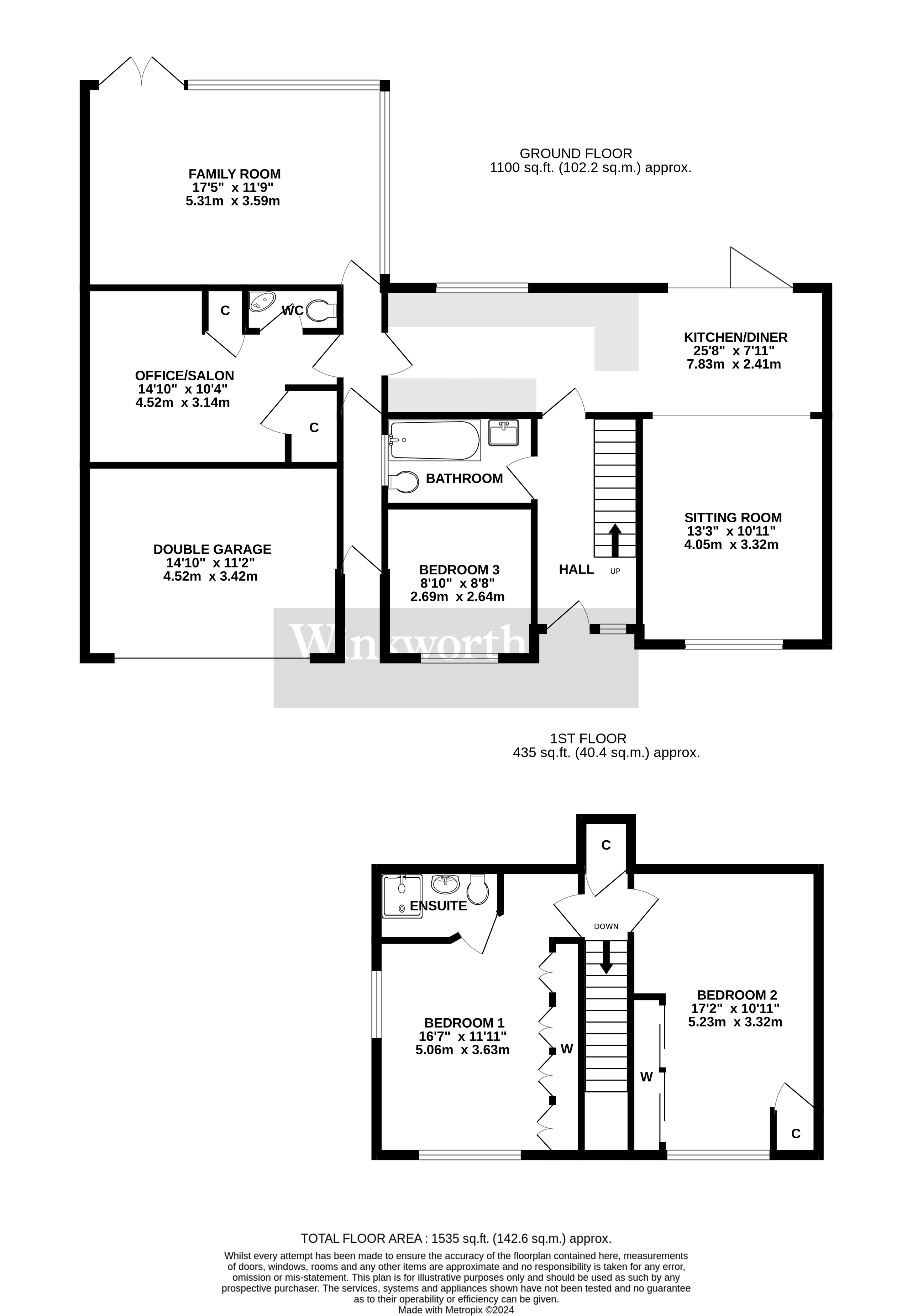
Description
Cleverly extended this property perfectly suits expanding families and those who love to entertain. The kitchen diner perfectly combines as one, ideal for modern living. The kitchen itself is in great condition and the bifold doors found in the dining room lead to the terrace creating the perfect environment for alfresco dining. The sitting room then seamlessly combines with the kitchen diner creating an unrivalled amount of entertaining space.
The newly constructed family room offers an abundance of space. The dual aspect outlook and dome roof lantern allows light to flood through this section of the home. The double garage has cleverly been divided to create an impressive workspace which currently being used as a home salon and offers an additional WC. The remaining part of the double garage still offers ample space and features an electric roller door. A versatile bedroom and a modern family bathroom complete the accommodation found to the ground floor.
Two double bedrooms are found to the first floor and both benefit from built in wardrobes. The principal bedroom has the added benefit of a stylish en-suite.
As you explore the enclosed private garden, the home continues to impress. Multiple terrace areas provide the perfect setting for outdoor entertaining, while the generous lawn offers a wonderful space for families to relax and play. Mature planting and well-tended borders create a real sense of privacy and seclusion, making this a garden to be enjoyed throughout the seasons. A versatile summer house with power and lighting creates an additional outdoor room with endless potential. ideal as a home office, gym, studio, or peaceful retreat.
To the front, the gates and a redesigned driveway and garden now provide a fully enclosed front garden, while still offering a sizeable private driveway leading to the garage.
Internal and external inspection will be essential to appreciate everything this versatile detached home has to offer, one not to miss.
The thriving village of Poringland plays host to a selection of local amenities which include a supermarket, restaurant, shops and two pubs. Both the local primary and secondary schools are rated 'Good' by Ofsted and the village also benefits from two doctor surgeries, a private dental practice, a pharmacy, a new coffee shop and a community centre which features a library and cafe.
Additional Information:
Council Tax Band - D
Local Authority - South Norfolk Council
We have been advised that the property is connected to mains water, electric and gas central heating.
Winkworth wishes to inform prospective buyers and tenants that these particulars are a guide and act as information only. All our details are given in good faith and believed to be correct at the time of printing but they don’t form part of an offer or contract. No Winkworth employee has authority to make or give any representation or warranty in relation to this property. All fixtures and fittings, whether fitted or not are deemed removable by the vendor unless stated otherwise and room sizes are measured between internal wall surfaces, including furnishings. The services, systems and appliances have not been tested, and no guarantee as to their operability or efficiency can be given.
Marketed by
Winkworth Poringland
Properties for sale in PoringlandArrange a Viewing
Fill in the form below to arrange your property viewing.
Mortgage Calculator
Fill in the details below to estimate your monthly repayments:
Approximate monthly repayment:
For more information, please contact Winkworth's mortgage partner, Trinity Financial, on +44 (0)20 7267 9399 and speak to the Trinity team.
Stamp Duty Calculator
Fill in the details below to estimate your stamp duty
The above calculator above is for general interest only and should not be relied upon
Meet the Team
As the area's newest independent agent we bring with us 30 years of experience, and a love for what we do and the local community around us. Understanding the individual needs of our clients is paramount to who we are. Our newly built office is perfectly positioned within the Budgens complex. We have a modern and vibrant office that offers a warm welcome to our customers as well as providing the perfect setting to showcase our clients' homes. We would love to hear more about your plans to move so please pop in to the office for a coffee when passing. We look forward to meeting you.
See all team members