Skip to main content

MyWinkworth

Front
Rear
Kitchen/Dining
Kitchen/Dining
Kitchen/Dining
Kitchen/Dining
Kitchen
Kitchen/Dining Room
Family Room
Family Room
Snug
Snug
Bedroom
Bedroom
Bedroom
Bathroom
Bedroom
Bedroom
Garden
Garden
Garden
Garden
6/14

Norwich Road, Stoke Holy Cross, Norwich, Norfolk, NR14

5 bedroom house in Stoke Holy Cross

Guide Price £625,000 Freehold

  • Bedrooms 5
  • Bathrooms 3
  • Reception rooms 4
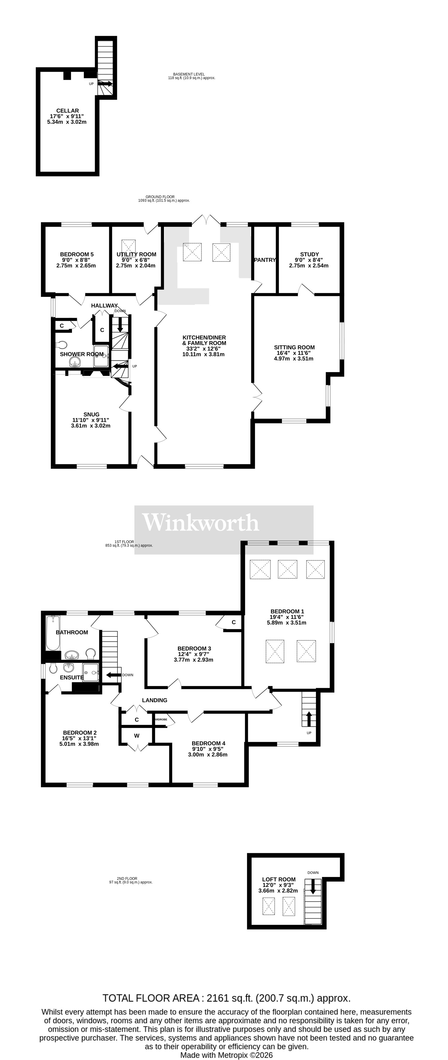
  • Dimensions 2155 sq ft
    200 sq m
  • Floorplan

PICTURES AND VIDEOS

KEY FEATURES

  • Prime Period Home Steeped In History
  • Architecturally Redesigned And Substantially Extended
  • Over 2150 Sq. Ft. Of Accommodation
  • Impressive 33ft Open-Plan Kitchen, Dining & Family Room
  • Formal Sitting Room, Separate Snug & Study
  • 5 Versatile Bedrooms & Additional Loft Room
  • Full-Height Cellar With Original Brick-Built Wine Bins
  • Expansive Mature Rear Garden With Brick-Built Pizza Oven
  • Easy Reach Of Local Amenities, Schools & Norwich's City Centre

KEY INFORMATION

  • Tenure: Freehold
  • Council Tax Band: F
  • Local Authority: South Norfolk Council

Description

Riverdale is a home of genuine stature, an expansive five-bedroom residence extending to approximately 2150 sq. ft, combining architectural presence with historic provenance.

Believed to be one of the oldest properties in the village, originally dating back to the 1870s and understood to have once served as the village post office, Riverdale carries a genuine sense of history. In recent years, the house has been architecturally redesigned and substantially extended, carefully reconfigured to enhance its scale and flow, evolving into a refined and expansive five-bedroom home that balances period character with contemporary family living.

Riverdale is discreetly positioned along the Norwich Road and carefully screened by established planting, creating a surprising sense of privacy on approach. The moment you arrive, the scale of the house becomes apparent and the off road parking is sure to appeal to all.

Stepping inside, the welcoming hallway is laid with traditional quarry tiling, immediately setting a tone of warmth and heritage. The balance between original features and modern finishes is thoughtfully executed throughout, with smooth plastered ceilings enhancing the refined, contemporary feel introduced through the extensions.

The centrepiece of the home is the impressive 33ft open-plan kitchen dining and family room. Finished with authentic Norfolk pamment tiles underfoot, this expansive space combines texture, scale and functionality. The kitchen offers extensive cabinetry, generous work surfaces and excellent storage, while the dining area comfortably accommodates a large table and sofa, making it an ideal setting for both everyday family life and entertaining. French doors open onto the garden terrace, allowing natural light to flood the space and creating a seamless connection between indoor and outdoor living.

To the front of the property, a formal sitting room provides an elegant additional reception space, with glazed doors allowing it to either open into the kitchen/dining room for a more sociable flow or remain closed for quieter occasions. A dedicated study is positioned just off the sitting room, ideal for modern home working, yet equally well suited as a playroom for younger children, creating a practical and adaptable family arrangement.

The snug provides further flexibility and is centred around an open fire, creating a cosy and characterful focal point.

A well-appointed utility room, separate pantry and ground floor shower room enhance the everyday functionality of Riverdale, ensuring the practical demands of family life are well catered for. Bedroom Five, positioned on the ground floor, offers excellent versatility and would lend itself equally well to guest accommodation, multigenerational living or additional workspace if required.

To the lower ground level, a substantial cellar provides far more than simple storage. With excellent head height, the space is currently utilised by the owners as a practical workshop area, demonstrating its versatility and usability. Set within an arched recess, the original brick-built wine bins create a striking and authentic feature, offering dedicated bottle storage that feels entirely in keeping with the home’s heritage. It is a characterful and highly functional space, ideal for hobbies, wine storage or additional utility use.

Upstairs, the accommodation continues to impress. The principal first-floor bedroom is a particularly striking space, illuminated by five Velux skylight windows that draw in exceptional natural light and enhance the sense of volume. The second bedroom benefits from its own ensuite shower room, while two further well-proportioned bedrooms are served by the family bathroom. The second floor reveals a useful loft room, ideal as a teenage retreat, creative studio or additional guest accommodation.

The rear garden is both expansive and established, offering a depth of plot rarely found locally. Sweeping lawns are bordered by mature planting and trees, creating a private and tranquil setting, while a generous paved terrace extends from the kitchen to provide an ideal entertaining space. A striking brick-built pizza oven anchors the terrace, lending character and a natural focal point for summer gatherings.

A further advantage lies in the vehicle access to the rear via Chapel Loke. This secondary access not only enhances convenience but, subject to the necessary planning permissions, presents the opportunity to create a substantial double garage or outbuilding, offering exciting scope for future enhancement.

Riverdale is a home of rare depth and distinction, a substantial five-bedroom residence where heritage, architectural reinvention and generous grounds combine to create a property of enduring quality and lasting appeal.

Discover Life In Stoke Holy Cross -

The village itself boasts a warm and welcoming community, supported by a well-regarded primary school, nursery, a local shop, and a popular pub. For those who enjoy fine dining, Stoke Holy Cross is something of a hidden gem. The renowned Wildebeest offers exceptional seasonal cuisine in a stylish, relaxed setting, while Stoke Mill, set beside the river in a beautifully restored watermill, provides an elegant menu in one of Norfolk’s most unique dining locations.

Just moments away in the neighbouring village of Caistor St Edmund, Caistor Hall is home to Michelin-starred chef Mark Poynton, bringing refined, destination dining to your doorstep.

Excellent road links connect the village easily to Norwich, the A47, and the A140, making it a desirable base for those who commute — or simply wish to dip into city life when the mood strikes. With its sought-after location, beautiful surroundings, and access to some of the region’s finest culinary experiences, Stoke Holy Cross offers a lifestyle that’s both peaceful and richly rewarding.

Additional Information:
Council Tax Band -F
Local Authority - South Norfolk Council
We have been advised that the property is connected to mains water, electricity and gas.

Winkworth wishes to inform prospective buyers and tenants that these particulars are a guide and act as information only. All our details are given in good faith and believed to be correct at the time of printing but they don’t form part of an offer or contract. No Winkworth employee has authority to make or give any representation or warranty in relation to this property. All fixtures and fittings, whether fitted or not are deemed removable by the vendor unless stated otherwise and room sizes are measured between internal wall surfaces, including furnishings. The services, systems and appliances have not been tested, and no guarantee as to their operability or efficiency can be given.

Marketed by

Winkworth Poringland

Properties for sale in Poringland

Arrange a Viewing

Fill in the form below to arrange your property viewing.

This site is protected by reCAPTCHA and the Google Privacy Policy and Terms of Service apply.
Introduction text for the mortgage calculator

Mortgage Calculator

Fill in the details below to estimate your monthly repayments:

Approximate monthly repayment:

For more information, please contact Winkworth's mortgage partner, Trinity Financial, on +44 (0)20 7267 9399 and speak to the Trinity team.

Stamp Duty Calculator

Fill in the details below to estimate your stamp duty

The above calculator above is for general interest only and should not be relied upon

6/14
Front
Rear
Kitchen/Dining
Kitchen/Dining
Kitchen/Dining
Kitchen/Dining
Kitchen
Kitchen/Dining Room
Family Room
Family Room
Snug
Snug
Bedroom
Bedroom
Bedroom
Bathroom
Bedroom
Bedroom
Garden
Garden
Garden
Garden

Meet the Team

With over 100 years of combined experience, our Poringland team offer unrivalled local knowledge and a genuine passion for property. Since opening in 2018, we’ve proudly supported more local schools, events and community initiatives than any other agent in the area — because community isn’t just part of what we do, it’s who we are. As market leaders, we’re committed to delivering exceptional service and care to every customer. Whether you’re buying, selling, renting, lettings or simply exploring your next move, pop into our office for a coffee and a warm welcome.

See all team members

Got a question about this property?

This site is protected by reCAPTCHA and the Google Privacy Policy and Terms of Service apply.

More Properties like this

Main Road, Filby, Great Yarmouth, Norfolk, NR29

OIRO £2,500,000 Freehold

New Instruction

Long Road, Framingham Earl, Norwich, Norfolk, NR14

Offers in excess of £1,650,000 Freehold

Under Offer

Yarmouth Road, Ditchingham, Bungay, NR35

Guide Price £900,000 Freehold

Under Offer

Cranes Road, Hethel, Norwich, Norfolk, NR14

Guide Price £850,000 Freehold

Low Road, North Tuddenham, Dereham, Norfolk, NR20

Guide Price £800,000 Freehold

Under Offer

Green Fall, Poringland, Norwich, Norfolk, NR14

Offers in excess of £800,000 Freehold

Online Valuations Aren’t Worth The Paper They’re Printed On.

When online valuations don’t give you the whole picture - try Winkworth’s expert service. Get a free property appraisal. Accurate valuations from our local property experts. No obligation to list with Winkworth. Choose a time convenient for you with our online booking system.

Fill in your details and someone will be in touch soon:

You have provisionally booked a valuation for . Please confirm your details below

We don't have date info available for this property, but if you fill in your details below, someone will be in touch to arrange a date soon

Please fill in the required fields below marked with *

This site is protected by reCAPTCHA and the Google Privacy Policy and Terms of Service apply.