Skip to main content

MyWinkworth

Picture No. 01
Picture No. 06
Picture No. 11
Picture No. 09
Picture No. 10
Picture No. 08
Picture No. 12
Picture No. 18
Picture No. 14
Picture No. 15
Picture No. 16
Picture No. 17
Picture No. 13
Picture No. 03
Picture No. 05
Picture No. 04
Picture No. 02
6/14

Musselburgh Way, Bourne, Lincolnshire, PE10

4 bedroom house in Bourne

£350,000 Freehold

  • Bedrooms 4
  • Bathrooms 2
  • Reception rooms 2
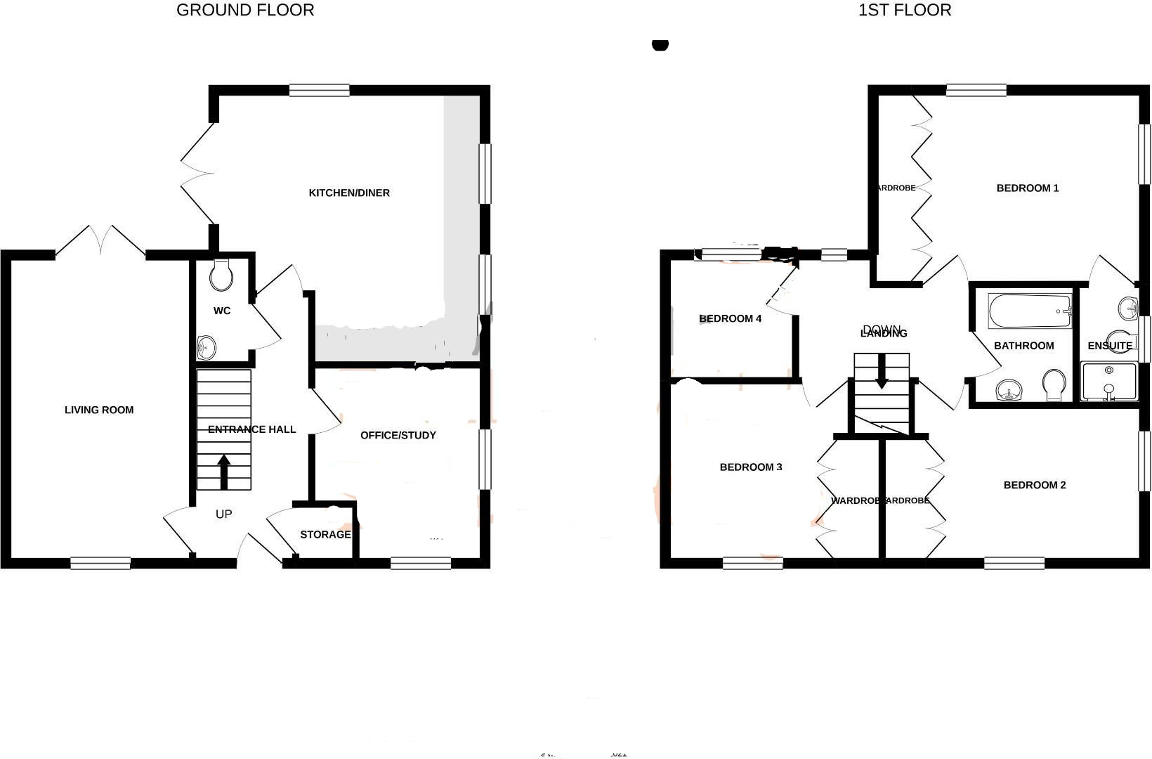
  • Floorplan

PICTURES AND VIDEOS

KEY FEATURES

  • Four bedroom detached home
  • Barratt Homes
  • Single garage with driveway
  • Ample off road parking
  • EPC Rating B
  • Council Tax Band D

KEY INFORMATION

  • Tenure: Freehold
  • Council Tax Band: D
  • Local Authority: South Kesteven

Description

A superbly presented four bedroom detached home built by Barratt Homes located on the popular elsea park development giving easy access to the Grammar school, Tesco supermarket and the A15 road link to Peterborough. The property offers great accommodation benefiting from, entrance hall, downstairs cloakroom, lounge, study and fantastic kitchen/dining room. On the first floor there is a master bedroom with en-suite, three further bedrooms and family bathroom. Outside there is a single garage with driveway providing ample off road parking and to the rear a fully enclosed part walled garden. Please call 01778 392807 for more information.

Rooms and Accommodations

  • Entrance Hall
  • With wood plank effect vinyl flooring, stairs leading to the first floor, built in storage cupboard, radiator and door leading to.
  • Lounge
  • 5.1m x 3.07m
  • With upvc double glazed window to the front and french doors to the rear garden, radiator, power points.
  • Study
  • 3.3m x 2.95m
  • With wood plank effect vinyl flooring, upvc double glazed windows to the front and side, radiator and power points.
  • Downstairs Cloakroom
  • With low level wc, wash hand basin and radiator.
  • Kitchen/Dining Room
  • 4.57m x 4.55m
  • With superb modern fitted units comprising, one and a half bowl sink with cupboard below, excellent range of wall and base units, built in oven, built in gas hob with extractor above, integrated fridge freezer, integrated washing machine, integrated dishwasher, wood plank effect vinyl flooring, radiator, power points, upvc double glazed windows and french doors to the rear garden.
  • First Floor Landing
  • With upvc double glazed window and door leading to
  • Bedroom One
  • 3.94m x 3.05m
  • With fitted wardrobes, radiator, power points and door leading to.
  • En-Suite Shower Room
  • Modern fitted suite comprising, shower cubicle, low level wc, wash hand basin, radiator and wood plank effect vinyl flooring.
  • Bedroom Two
  • 3.94m x 2.62m
  • With upvc double glazed window, built in wardrobes, radiator and power points.
  • Bedroom Three
  • 3.12m x 2.74m
  • With built in wardrobes, upvc double glazed window, radiator and power points.
  • Bedroom Four
  • 2.26m x 2.08m
  • With upvc double glazed window, radiator and power points.
  • Family Bathroom
  • Modern fitted suite comprising, panelled bath, low level wc, wash hand basin, part tiled walls, radiator, wood plank effect vinyl flooring and frosted window.
  • Outside
  • To the side there is a SINGLE GARAGE with driveway to the front providing ample off road parking.
    The rear garden has a paved patio leading to a well maintained lawned garden being part walled with side access.
  • Agents note
  • BUYER IDENTITY CHECK
    Please note that prior to acceptance of any offer, Waldeck Snarey & Brown ( Bourne) LLP t/a Winkworth are required to verify the identity of the buyer to comply with the requirements of the Money
    Laundering, Terrorist Financing and Transfer of Funds (Information on the Payer) Regulations 2017. We are most grateful for your assistance with this.

Marketed by

Winkworth Bourne

Properties for sale in Bourne

Arrange a Viewing

Fill in the form below to arrange your property viewing.

This site is protected by reCAPTCHA and the Google Privacy Policy and Terms of Service apply.
Introduction text for the mortgage calculator

Mortgage Calculator

Fill in the details below to estimate your monthly repayments:

Approximate monthly repayment:

For more information, please contact Winkworth's mortgage partner, Trinity Financial, on +44 (0)20 7267 9399 and speak to the Trinity team.

Stamp Duty Calculator

Fill in the details below to estimate your stamp duty

The above calculator above is for general interest only and should not be relied upon

6/14
Picture No. 01
Picture No. 06
Picture No. 11
Picture No. 09
Picture No. 10
Picture No. 08
Picture No. 12
Picture No. 18
Picture No. 14
Picture No. 15
Picture No. 16
Picture No. 17
Picture No. 13
Picture No. 03
Picture No. 05
Picture No. 04
Picture No. 02

Meet the Team

Our team are here to support and advise our customers when they need it most. We understand that buying, selling, letting or renting can be daunting and often emotionally meaningful. We are there, when it matters, to make the journey as stress-free as possible.

See all team members

Got a question about this property?

This site is protected by reCAPTCHA and the Google Privacy Policy and Terms of Service apply.

More Properties like this

Under Offer

Swallow Hill, Thurlby, Bourne, Lincolnshire, PE10

£685,000 Freehold

Lound, Bourne, PE10

£625,000 Freehold

High Street, Horbling, Sleaford, Lincolnshire, NG34

£625,000 Freehold

Saxon Way, Bourne, PE10

£550,000 Freehold

Under Offer

Mill Drove, Bourne, Lincolnshire, PE10

Offers in excess of £550,000 Freehold

Main Road, Dowsby, Bourne, PE10

£550,000 Freehold

Online Valuations Aren’t Worth The Paper They’re Printed On.

When online valuations don’t give you the whole picture - try Winkworth’s expert service. Get a free property appraisal. Accurate valuations from our local property experts. No obligation to list with Winkworth. Choose a time convenient for you with our online booking system.

Fill in your details and someone will be in touch soon:

You have provisionally booked a valuation for . Please confirm your details below

We don't have date info available for this property, but if you fill in your details below, someone will be in touch to arrange a date soon

Please fill in the required fields below marked with *

This site is protected by reCAPTCHA and the Google Privacy Policy and Terms of Service apply.