Skip to main content

MyWinkworth

Picture No. 01
Picture No. 17
Picture No. 09
Picture No. 06
Picture No. 04
Picture No. 05
Picture No. 07
Picture No. 03
Picture No. 10
Picture No. 11
Picture No. 15
Picture No. 18
Picture No. 12
Picture No. 13
Picture No. 14
Picture No. 16
Picture No. 19
Picture No. 20
Picture No. 21
Picture No. 22
Picture No. 02
6/14

Main Road, Dowsby, Bourne, PE10

5 bedroom house in Dowsby

£550,000 Freehold

  • Bedrooms 5
  • Bathrooms 3
  • Reception rooms 4
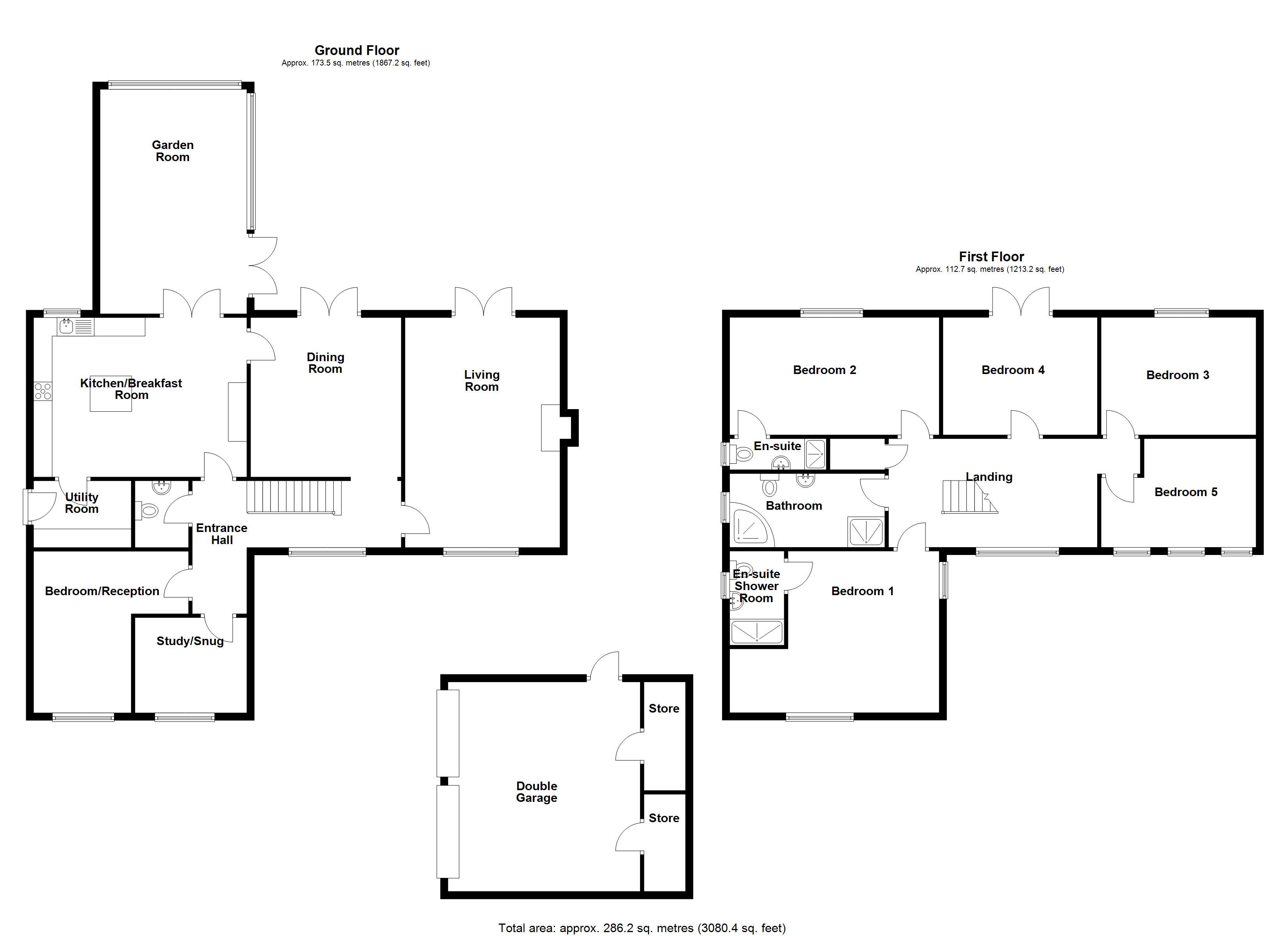
  • Floorplan

PICTURES AND VIDEOS

KEY FEATURES

  • Five Bedroom Detached Architect Designed Home
  • Spacious Accommodation
  • Detached Double Garage
  • EPC Rating C

KEY INFORMATION

  • Tenure: Freehold
  • Council Tax Band: E
  • Local Authority: South Kesteven

Description

Winkworth Estate Agents are delighted to offer for sale this stunning architect designed five/six-bedroom detached home located on a none estate position with views over open fields to the rear. The property has been built to a barn conversion style with a wealth of character and charm including, exposed beams, attractive fireplace with woodburning stove and exposed brick walls. The property offers fantastic versatile accommodation benefiting from, lounge with wood burning stove, separate dining room, family room/bedroom six, study/snug, kitchen/breakfast room with utility off and impressive garden room overlooking the rear garden. Upstairs the master bedroom benefits from an en-suite, there is also a guest bedroom with en-suite, three further bedrooms and family bathroom. Outside there is an extended detached double garage with driveway to the front proving ample off-road parking and to the rear an enclosed established garden with views over open fields. There is also an outside Air source heat pump supplying the hot water and central heating. Please call 01778 392807 for more information.

Rooms and Accommodations

  • Door to
  • Reception Hall
  • Indian limestone flooring, almost full height dome topped multi-pane feature picture window to the front elevation, door to:
  • Downstairs Cloakroom
  • Two piece suite comprising concealed low level WC, bracket hand basin with mixer tap, tiled floor, underfloor heating and extractor fan.
  • Study/Snug
  • 2.7m x 2.6m
  • Multi-pane window to the front elevation, Indian limestone flooring, underfloor heating, one exposed brick wall and power points.
  • Family Room/Bedroom Six
  • 4.27m x 2.7m
  • Multi-pane window to the front elevation, underfloor heating, TV point and power points.
  • Sitting Room
  • 6.3m x 3.96m
  • Inglenook fireplace with multi-fuel burner, three windows to the front elevation, beamed and textured ceiling, French doors to the rear elevation, under floor heating, TV point and power points.
  • Dining Room
  • 4.17m x 4.06m
  • Indian limestone flooring, dome topped multi-pane picture window with integral French doors to the rear elevation, exposed walls and under floor heating.
  • Kitchen/Breakfast Room
  • 5.6m x 4.67m
  • With range of modern shaker style units comprising numerous base cupboards and drawers beneath granite worktops with inset one and half bowl single drainer sink unit with mixer tap, intermediate wall tiling, matching eye level wall cupboards, central island with built-in cupboards, space and plumbing for dishwasher, Induction four ring hob, built-in oven, space for fridge/freezer, Indian limestone flooring with underfloor heating and, door to the garden room and door to.
  • Utility Room
  • 2.6m x 2.13m
  • Indian limestone flooring with under floor heating, roll edged worktop with inset single drainer stainless steel sink unit with hot and cold taps, tiled splashback, fitted base cupboards and drawers, plumbing and space for washing machine, space for tumble dryer, water softener, half-glazed stable door to the side.
  • Garden Room
  • 6.12m x 4.04m
  • With double glazed windows and doors onto the rear garden, underfloor heating, tv point and power points.
  • First floor landing
  • With bridge style gallery with varnished spindles and newel posts and a range of uplighters to the feature ceiling with exposed beams. Built-in Airing Cupboard with hanging space, access to the loft with loft ladder and part boarded loft and door to.
  • Master Bedroom
  • 5.28m x 4.3m
  • With window overlooking the front, radiator, power points and door leading to:
  • En-Suite Shower Room
  • With modern fitted suite comprising, walk in shower cubicle, low level wc, wash hand basin, heated towel rail and frosted window.
  • Guest Bedroom
  • 5.6m x 3.1m
  • Two windows to the rear elevation, laminate flooring with underfloor heating, power points and door to:
  • En-Suite
  • With a polished limestone floor, tiled walls, fitted three piece suite comprising shower cubicle, wash hand basin, low level WC, shaver point, radiator, underfloor heating and obscure glazed window.
  • Bedroom three
  • 4.01m x 3.2m
  • Window to the rear elevation, laminate flooring with underfloor heating, power points.
  • Bedroom Four
  • 4.01m x 2.9m
  • With french doors and Juliette balcony overlooking the rear, laminate flooring with under floor heating, exposed brick walls with feature beams.
  • Bedroom Five
  • 4m x 3m
  • With window overlooking the front, under floor heating and power points.
  • Family Bathroom
  • Fully tiled walls, tiled floor, fitted four piece suite comprising panelled corner jacuzzi bath with mixer tap and sealed low level WC, bracket hand basin with mixer tap, tiled shower cubicle, vertical radiator/towel rail, underfloor heating shaver point, linen cupboard.
  • Outside
  • The property is approached via a gravelled driveway providing ample off road parking leading to a detached DOUBLE GARAGE (21'6 x 16'4) with two up and over doors, power and light. The rear of the garage has been extended by the current vendors providing two useful storage rooms. The rear garden is an established lawned garden with mature shrubs and trees, paved patio outside power sockets and vegetable garden backing onto open fields.
  • Agents Note
  • BUYER IDENTITY CHECK
    Please note that prior to acceptance of any offer, Waldeck Snarey & Brown ( Bourne) LLP t/a Winkworth are required to verify the identity of the buyer to comply with the requirements of the Money
    Laundering, Terrorist Financing and Transfer of Funds (Information on the Payer) Regulations 2017. We are most grateful for your assistance with this.

Marketed by

Winkworth Bourne

Properties for sale in Bourne

Arrange a Viewing

Fill in the form below to arrange your property viewing.

This site is protected by reCAPTCHA and the Google Privacy Policy and Terms of Service apply.
Introduction text for the mortgage calculator

Mortgage Calculator

Fill in the details below to estimate your monthly repayments:

Approximate monthly repayment:

For more information, please contact Winkworth's mortgage partner, Trinity Financial, on +44 (0)20 7267 9399 and speak to the Trinity team.

Stamp Duty Calculator

Fill in the details below to estimate your stamp duty

The above calculator above is for general interest only and should not be relied upon

6/14
Picture No. 01
Picture No. 17
Picture No. 09
Picture No. 06
Picture No. 04
Picture No. 05
Picture No. 07
Picture No. 03
Picture No. 10
Picture No. 11
Picture No. 15
Picture No. 18
Picture No. 12
Picture No. 13
Picture No. 14
Picture No. 16
Picture No. 19
Picture No. 20
Picture No. 21
Picture No. 22
Picture No. 02

Meet the Team

Our team are here to support and advise our customers when they need it most. We understand that buying, selling, letting or renting can be daunting and often emotionally meaningful. We are there, when it matters, to make the journey as stress-free as possible.

See all team members

Got a question about this property?

This site is protected by reCAPTCHA and the Google Privacy Policy and Terms of Service apply.

More Properties like this

Under Offer

Swallow Hill, Thurlby, Bourne, Lincolnshire, PE10

£685,000 Freehold

Lound, Bourne, PE10

£625,000 Freehold

High Street, Horbling, Sleaford, Lincolnshire, NG34

£625,000 Freehold

Saxon Way, Bourne, PE10

£550,000 Freehold

Under Offer

Mill Drove, Bourne, Lincolnshire, PE10

Offers in excess of £550,000 Freehold

Bear Lane, Pinchbeck, Spalding, Lincolnshire, PE11

£535,000 Freehold

Online Valuations Aren’t Worth The Paper They’re Printed On.

When online valuations don’t give you the whole picture - try Winkworth’s expert service. Get a free property appraisal. Accurate valuations from our local property experts. No obligation to list with Winkworth. Choose a time convenient for you with our online booking system.

Fill in your details and someone will be in touch soon:

You have provisionally booked a valuation for . Please confirm your details below

We don't have date info available for this property, but if you fill in your details below, someone will be in touch to arrange a date soon

Please fill in the required fields below marked with *

This site is protected by reCAPTCHA and the Google Privacy Policy and Terms of Service apply.