Skip to main content

MyWinkworth

Picture No. 08
Picture No. 05
Picture No. 15
Picture No. 07
Picture No. 12
Picture No. 06
Picture No. 14
Picture No. 13
Picture No. 09
Picture No. 10
Picture No. 04
Picture No. 11
6/14

Murrain Road, London, N4

2 bedroom flat/apartment in London

£775,000 Leasehold

  • Bedrooms 2
  • Bathrooms 2
  • Reception rooms 1
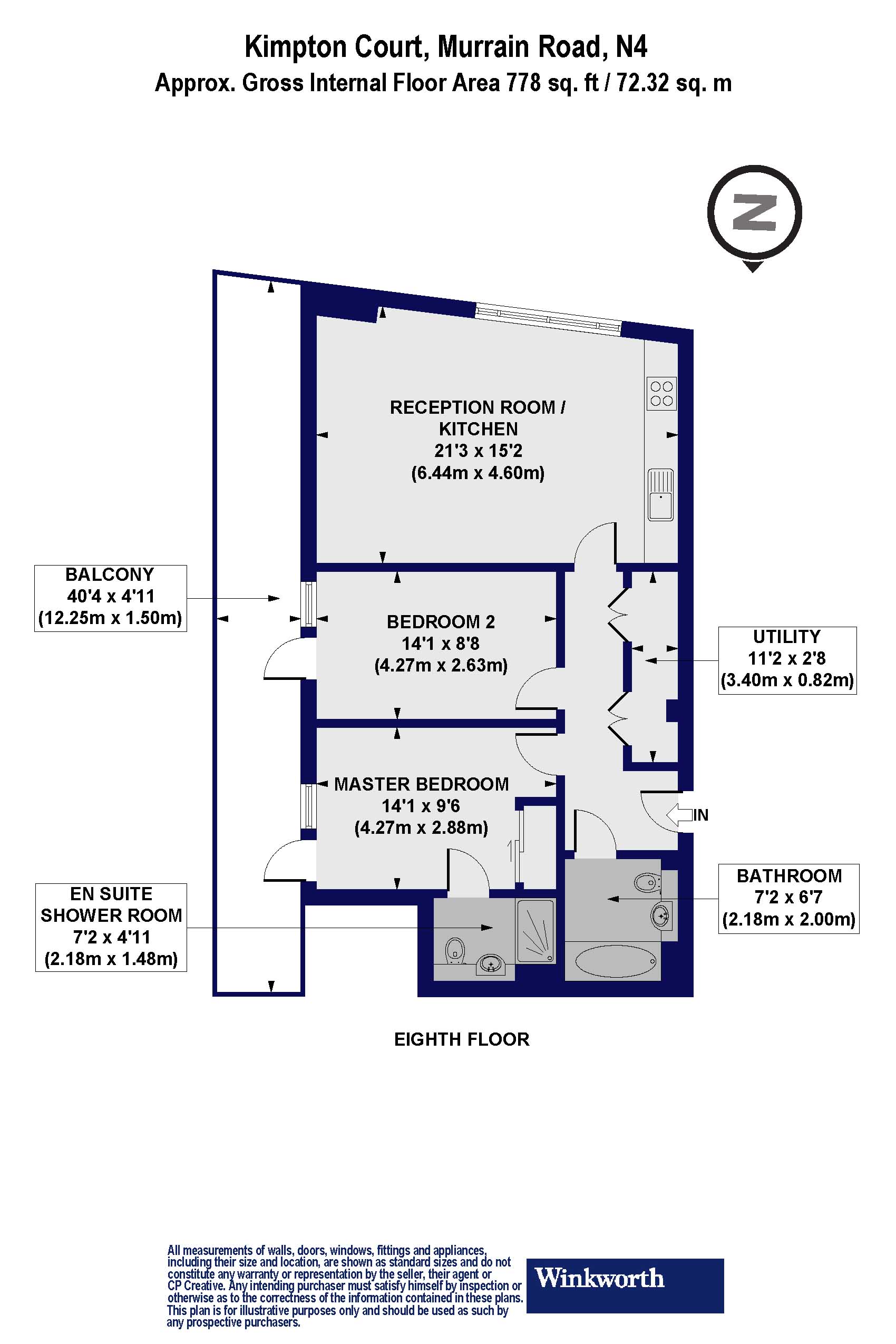
  • Dimensions 778 sq ft
    72 sq m
  • Floorplan

PICTURES AND VIDEOS

KEY INFORMATION

  • Tenure: Leasehold
  • Lease Length: 119 yrs left
  • Ground rent: £300.00 per annum
  • Service charge: £3600.00 per annum
  • Council Tax Band: D

Description

A stunning, two-bedroom, two bathroom modern apartment positioned on the eighth floor of this popular and beautifully maintained development in N4. Standing at 778 sqft, the property offers a wealth of natural light with floor to ceiling windows with breathtaking views of both the city and Clissold Park. The bright, dual aspect, open plan living room/kitchen is well proportioned and benefits from direct access to a private balcony spanning the full length of the apartment with the sensational views across Clissold Park. Both bedrooms are good sizes, the master bedroom featuring an en-suite shower room and each have a built-in wardrobe. The property is completed with a family sized bathroom and ample storage throughout.
Kimpton Court, Murrain Road is a quiet residential street moments from the entrance of Clissold Park whilst allowing for easy access to the green spaces of Finsbury Park and Woodberry Wetland nature reserve. A variety of shops, cafes and eateries are located along Church Street and Blackstock Road along with a selection of bus routes.
The nearest public transport link is Finsbury Park Station (Victoria, Piccadilly and over ground rail services), Arsenal Underground Station (Piccadilly Line) is also close by whilst Canonbury Station (Overground Lines) is also within easy reach.

Utilities

  • Electricity Supply: Mains Supply
  • Water Supply: Mains Supply
  • Sewerage: Mains Supply

Marketed by

Winkworth Highbury

Properties for sale in Highbury

Arrange a Viewing

Fill in the form below to arrange your property viewing.

This site is protected by reCAPTCHA and the Google Privacy Policy and Terms of Service apply.
Introduction text for the mortgage calculator

Mortgage Calculator

Fill in the details below to estimate your monthly repayments:

Approximate monthly repayment:

For more information, please contact Winkworth's mortgage partner, Trinity Financial, on +44 (0)20 7267 9399 and speak to the Trinity team.

Stamp Duty Calculator

Fill in the details below to estimate your stamp duty

The above calculator above is for general interest only and should not be relied upon

6/14
Picture No. 08
Picture No. 05
Picture No. 15
Picture No. 07
Picture No. 12
Picture No. 06
Picture No. 14
Picture No. 13
Picture No. 09
Picture No. 10
Picture No. 04
Picture No. 11

Meet the Team

From our office on Highbury Park, we pride ourselves on our unrivalled local knowledge. Many of the team here at Winkworth Highbury Estate Agents live locally and whether it's sales, lettings or property management, we're always striving to provide an unparalleled service and tailor it to your exacting needs.

See all team members

Got a question about this property?

This site is protected by reCAPTCHA and the Google Privacy Policy and Terms of Service apply.

More Properties like this

Under Offer

Gloucester Drive, London, N4

Offers in excess of £1,000,000 Share of Freehold

Under Offer

Finsbury Park Road, London, N4

£950,000 Leasehold

Under Offer

Kelvin Road, London, N5

Offers in excess of £950,000 Leasehold

Under Offer

Finsbury Park Road, London, N4

Offers in excess of £950,000 Share of Freehold

Under Offer

Aberdeen Road, London, N5

Offers in excess of £895,000 Share of Freehold

Adolphus Road, London, N4

Offers in excess of £850,000 Share of Freehold

Online Valuations Aren’t Worth The Paper They’re Printed On.

When online valuations don’t give you the whole picture - try Winkworth’s expert service. Get a free property appraisal. Accurate valuations from our local property experts. No obligation to list with Winkworth. Choose a time convenient for you with our online booking system.

Fill in your details and someone will be in touch soon:

You have provisionally booked a valuation for . Please confirm your details below

We don't have date info available for this property, but if you fill in your details below, someone will be in touch to arrange a date soon

Please fill in the required fields below marked with *

This site is protected by reCAPTCHA and the Google Privacy Policy and Terms of Service apply.