Skip to main content

MyWinkworth

Under Offer

Picture No. 22
Picture No. 28
Picture No. 24
Picture No. 26
Picture No. 19
Picture No. 18
Picture No. 23
Picture No. 16
Picture No. 21
Picture No. 17
Picture No. 25
Picture No. 29
6/14

Kilravock Street, Queens Park, W10

2 bedroom house in Queens Park

£1,100,000 Freehold

  • Bedrooms 2
  • Bathrooms 1
  • Reception rooms 2
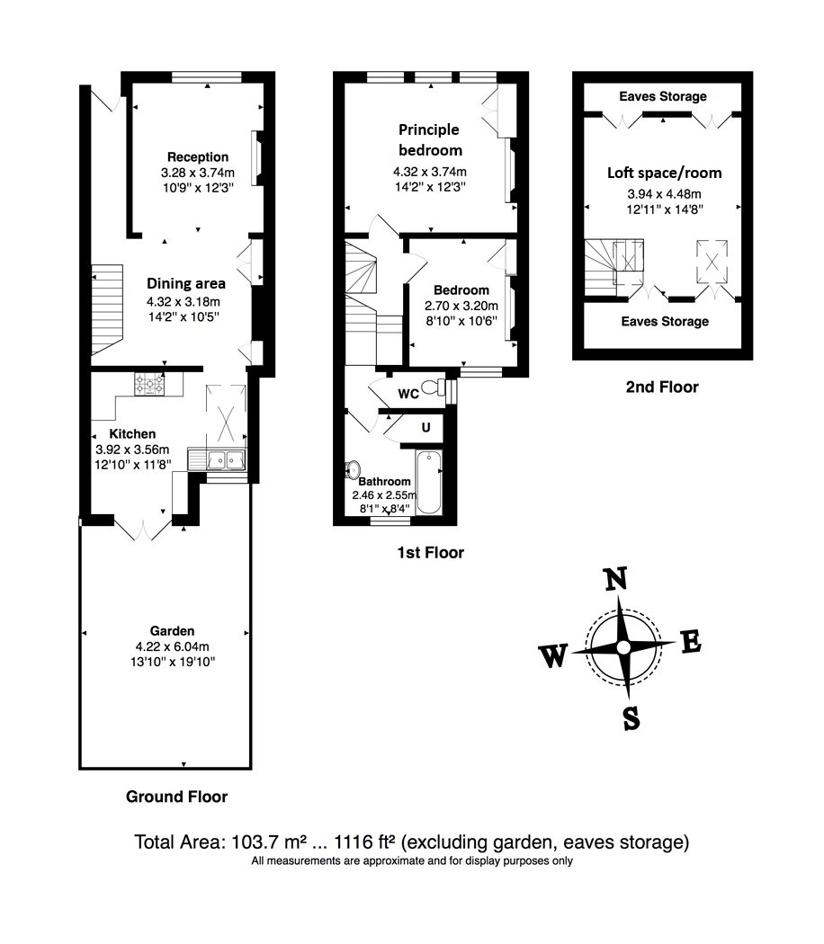
  • Dimensions 1116 sq ft
    103 sq m
  • Floorplan

PICTURES AND VIDEOS

KEY FEATURES

  • LARGER THAN AVERAGE
  • QUEENS PARK CONSERVATION AREA
  • EXTENDED
  • SOUTH FACING GARDEN
  • LOFT SPACE CONVERTED
  • FREEHOLD

KEY INFORMATION

  • Tenure: Freehold
  • Council Tax Band: E

Description

A unique and extended period cottage in the popular Queens Park conservation area, with south facing garden and no upper chain.15b bur

This charming cottage dates back to the 1880s and is full of period character and charm, whilst being larger than average to neighbouring properties. From a stunning exterior, original stripped wood floors, this home is not one to be missed.
The well-proportioned interior has a through reception and dining room with feature fire place. The kitchen has been extended offers a functional space with ample counter space and cupboard storage, as well space for a breakfast table. The garden is accessible via French doors. The garden has been designed for ease of maintenance, with paved central area, and beds with mature trees to the sides allowing for privacy. Being south facing, the garden is a great sun trap.
Upstairs, the first floor includes the principle bedroom, and additional double bedroom. The family bathroom is a tiled suite with utility and airing cupboard. The WC is separate – convenient for family living.
The well designed landing has really opened up the space, with staircase leading up to the converted loft. This can be used a third room, or office space. There is also ample eaves storage space and large south facing skylights pulling in the natural light.

This home is ideal for those seeking character, on top of being a rare find that is not to be missed.

Utilities

  • Electricity Supply: Mains Supply
  • Water Supply: Mains Supply
  • Sewerage: Mains Supply
  • Heating: Central Heating, Gas Central, Other
  • Broadband: FTTP
  • Mobile Coverage: Excellent

Rights & Restrictions

  • Listed Property: No
  • Restrictions: Yes
  • Easements, servitudes or wayleaves: Yes
  • Public right of way: No

Risks

  • Flood Risk: There has not been flooding in the last 5 years

Location

Kilravock Street is ideally positioned for easy access to both Queen’s Park and Kensal Rise, providing convenient access to local amenities such as shops, delicatessens, restaurants, parks & gastro Pubs. Portobello market and Golborne Road are also a short walk away. Transport wise, Queen’s Park Tube station is closest for access to the Bakerloo Line and London Overground.
Introduction text for the mortgage calculator

Mortgage Calculator

Fill in the details below to estimate your monthly repayments:

Approximate monthly repayment:

For more information, please contact Winkworth's mortgage partner, Trinity Financial, on +44 (0)20 7267 9399 and speak to the Trinity team.

Stamp Duty Calculator

Fill in the details below to estimate your stamp duty

The above calculator above is for general interest only and should not be relied upon

6/14
Picture No. 22
Picture No. 28
Picture No. 24
Picture No. 26
Picture No. 19
Picture No. 18
Picture No. 23
Picture No. 16
Picture No. 21
Picture No. 17
Picture No. 25
Picture No. 29

Meet the Team

Our team are here to support and advise our customers when they need it most. We understand that buying, selling, letting or renting can be daunting and often emotionally meaningful. We are there, when it matters, to make the journey as stress-free as possible.

See all team members

Got a question about this property?

This site is protected by reCAPTCHA and the Google Privacy Policy and Terms of Service apply.

More Properties like this

Under Offer

Keslake Road, London, NW6

£2,650,000 Freehold

Under Offer

Chevening Road, London, NW6

£2,195,000 Freehold

Chelmsford Square, London, NW10

£2,000,000 Freehold

Under Offer

Herbert Gardens, London, NW10

£2,000,000 Freehold

New Instruction

Leighton Gardens, London, NW10

£1,899,950 Freehold

Under Offer

Ashburnham Road, London, NW10

£1,875,000 Freehold

Online Valuations Aren’t Worth The Paper They’re Printed On.

When online valuations don’t give you the whole picture - try Winkworth’s expert service. Get a free property appraisal. Accurate valuations from our local property experts. No obligation to list with Winkworth. Choose a time convenient for you with our online booking system.

Fill in your details and someone will be in touch soon:

You have provisionally booked a valuation for . Please confirm your details below

We don't have date info available for this property, but if you fill in your details below, someone will be in touch to arrange a date soon

Please fill in the required fields below marked with *

This site is protected by reCAPTCHA and the Google Privacy Policy and Terms of Service apply.