Skip to main content

MyWinkworth

Front
Rear
Kitchen
Kitchen
Living Room
Living Room
Conservatory
Bedroom
Bedroom
Family Bathroom
Garden
Garden
6/14

John Drewry Close, Framingham Earl, Norwich, Norfolk, NR14

3 bedroom house in Framingham Earl

£300,000 Freehold

  • Bedrooms 3
  • Bathrooms 2
  • Reception rooms 2
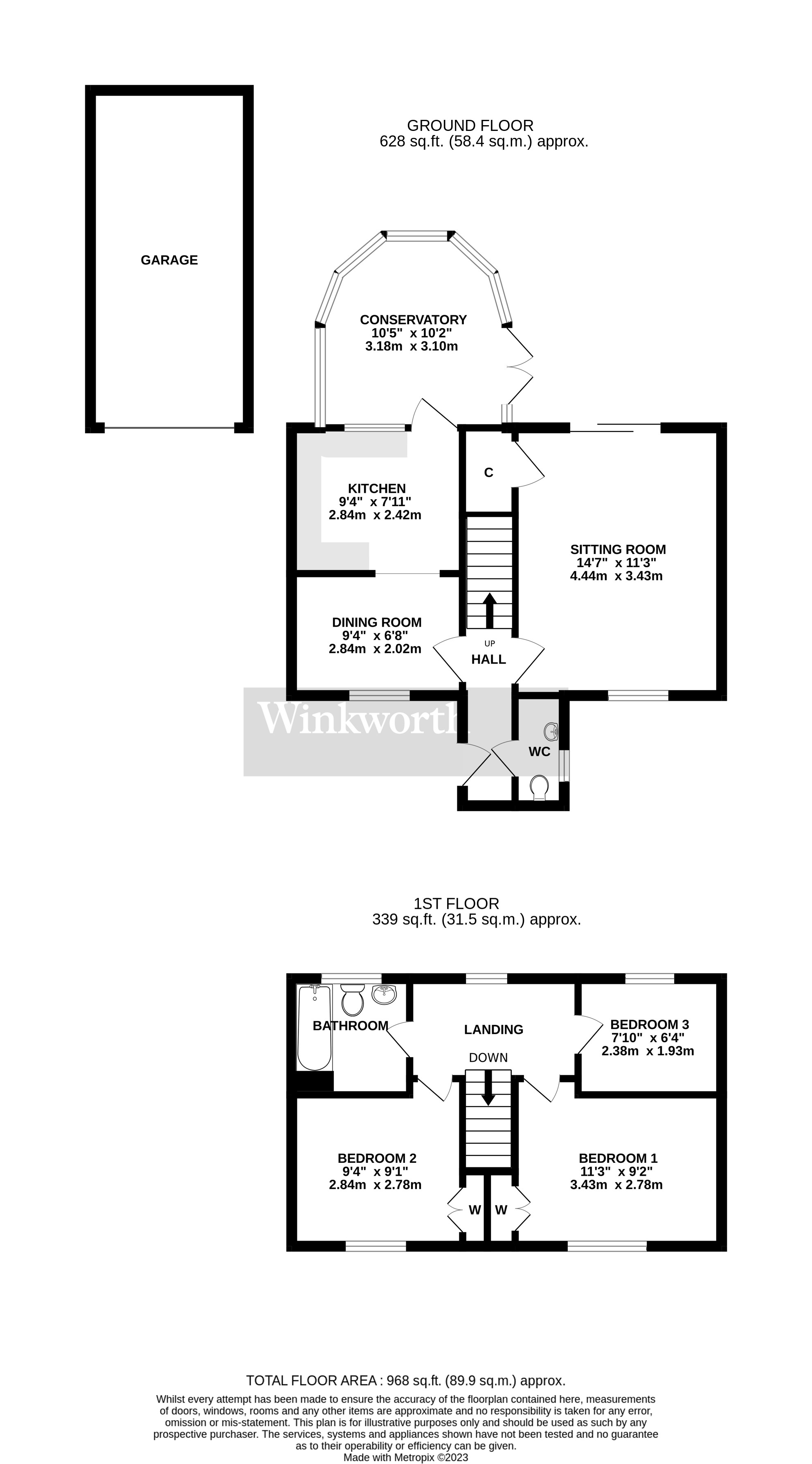
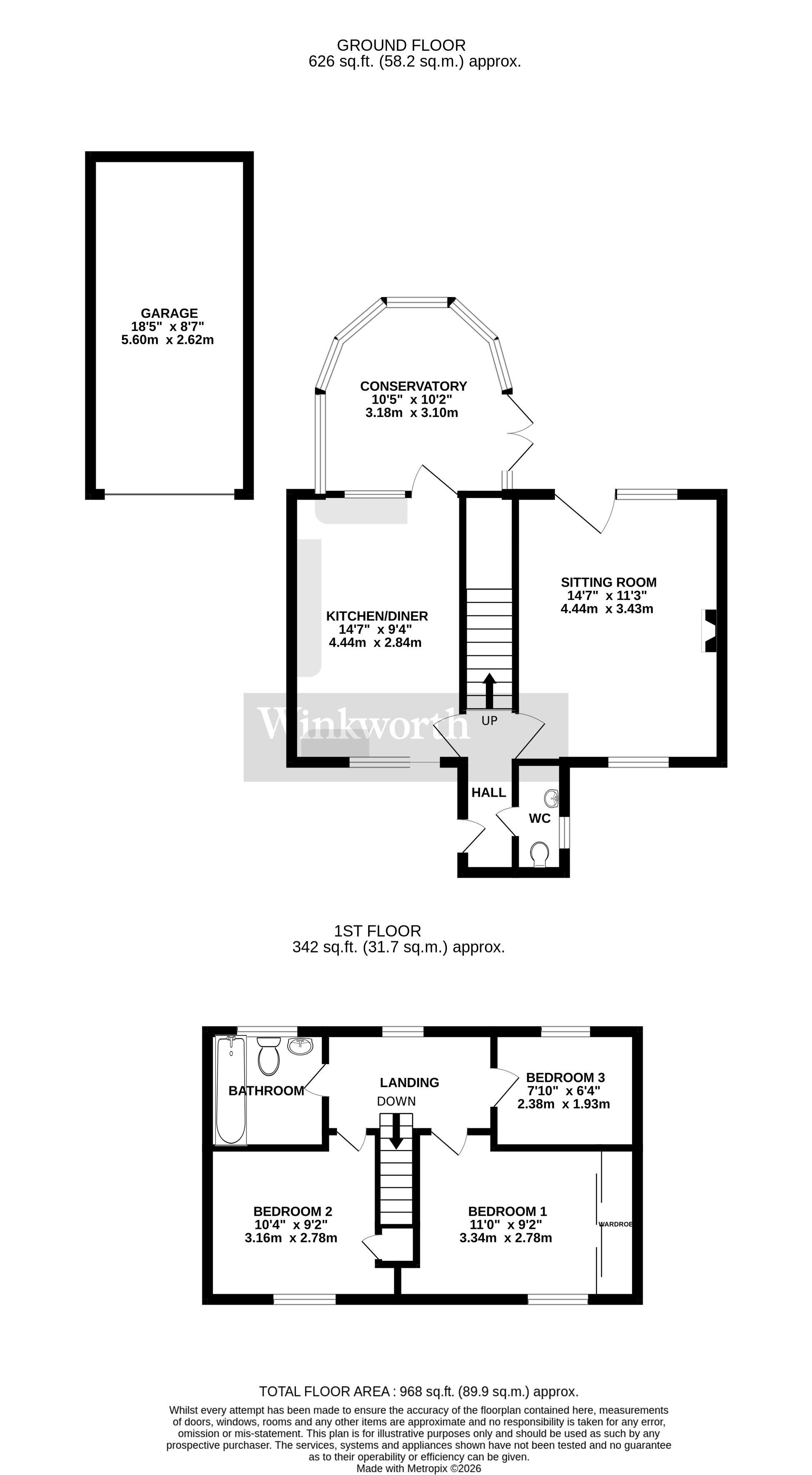
  • Dimensions 968 sq ft
    89 sq m
  • Floorplan

PICTURES AND VIDEOS

KEY FEATURES

  • No Onward Chain
  • Quiet Cul-De-Sac Setting
  • Walking Distance Of Local Amenities & Schools
  • Detached 3 Bedroom Family Home
  • Recently Fitted Contemporary Kitchen Offering Ample Dining Space
  • Sizeable Sitting Room Enjoying A Dual Aspect Outlook
  • Stylish Modern Family Bathroom & Ground Floor WC
  • Conservatory Offering Further Potential
  • Non-Overlooked, Private Rear Garden
  • Generous Driveway Parking & Oversized Detached Garage

KEY INFORMATION

  • Tenure: Freehold
  • Council Tax Band: C
  • Local Authority: South Norfolk Council

Description

Tucked quietly away within a small and highly regarded cul-de-sac, this detached home immediately impresses with its sense of privacy, balance and easy family living. From the moment you arrive, the setting feels calm and settled, yet everyday amenities and local schools remain comfortably within reach, striking that sought-after balance between convenience and discretion.

The property has been comprehensively modernised since it was last sold, creating a home that feels fresh, current and ready to enjoy. A generous driveway provides off-road parking for several vehicles and leads to an oversized detached garage, ideal for storage, hobbies or future flexibility. To the rear, the garden is a real highlight: non-overlooked, private and perfectly suited to both family life and relaxed entertaining, with space to dine, play and unwind.

Inside, the transformation is immediately apparent. The sitting room is a warm and welcoming space, beautifully finished and enjoying a dual aspect that allows natural light to move through the room throughout the day. The newly fitted kitchen/diner sits at the heart of the home, offering a smart, contemporary feel with clean lines and a layout that works effortlessly for modern living. The conservatory adds further versatility, offering additional living space and presenting an exciting opportunity for enhancement to truly elevate the ground floor. A ground floor cloakroom completes the layout.

Upstairs, three well-proportioned bedrooms have been freshly decorated and feature recently fitted carpets. The family bathroom has been tastefully modernised and completes the first floor beautifully.

Offered with no onward chain, this is a home that combines thoughtful upgrades with future potential, all within a setting that is consistently in demand. Early viewing is strongly advised to appreciate not only the condition of the property, but the lifestyle it offers.

Discover Life in Poringland;

Where Village Charm Meets Contemporary Convenience!

Perfectly positioned just five miles south of Norwich, Poringland is a flourishing village that effortlessly balances countryside calm with everyday connectivity. This is a community that’s constantly evolving, yet remains deeply rooted in the beauty and tranquillity of its rural setting.

At the heart of the village lies a newly unveiled Tesco Express, bringing with it a fresh wave of modern convenience. Just moments away, a fully revamped petrol station ensures smooth travel for commuters and weekend explorers alike, it’s the little details that make village life here effortlessly easy.

Everyday life is well-catered for with a range of local amenities including a pharmacy, doctors’ surgery, community centre, hair salons, a popular café, takeaways, and two well-regarded public houses. For those working from home, the village offers high-speed broadband options, while for those commuting, Norwich city centre is easily accessible by car or regular bus links.

Poringland is particularly popular with families, thanks to its strong educational offering. Poringland Primary School & Nursery is rated Good by Ofsted and enjoys an excellent local reputation. For older students, Framingham Earl High School sits just a few minutes away and provides a well-rounded secondary education.

Neighbouring villages also offer superb schooling choices. Stoke Holy Cross Primary School, Brooke Primary, and Alpington Primary School are all well-regarded within the wider catchment area, while the independent schools of Norwich including Norwich High School for Girls, Town Close, and Norwich School are within easy reach for those seeking a private education.

Nature is always within reach, with the rolling meadows and woodlands of High Ash Farm just a short walk away. Whether you’re an early morning runner, a weekend rambler, or someone who simply enjoys watching the seasons change, this unspoilt haven of biodiversity invites you to slow down and reconnect with the land.

Dining is a true pleasure here. Moments from your doorstep sits Caistor Hall, a Georgian country house now home to the Michelin-recommended restaurant by Mark Poynton. Its seasonal tasting menus draw food lovers from far and wide, all seeking that rare combination of exceptional cuisine and timeless surroundings.

And for something a little more laid-back yet equally special, The Wildebeest in Stoke Holy Cross offers contemporary dishes crafted with local flair, perfect for Sunday lunches, date nights, and everything in between.

On the edge of the village, the gentle rise of Stoke Hill provides panoramic views over the Norfolk countryside, ideal for reflective walks and golden-hour moments.

Poringland is more than a place to live. It’s a lifestyle, rural yet refined, peaceful yet well-connected. Whether you’re raising a family, downsizing in style, or seeking a countryside escape without compromising on quality, this vibrant village is ready to welcome you home.

Additional Information:
Council Tax Band - C
Local Authority - South Norfolk Council
We have been advised that the property is connected to mains water, electricity and gas central heating.

Winkworth wishes to inform prospective buyers and tenants that these particulars are a guide and act as information only. All our details are given in good faith and believed to be correct at the time of printing but they don’t form part of an offer or contract. No Winkworth employee has authority to make or give any representation or warranty in relation to this property. All fixtures and fittings, whether fitted or not are deemed removable by the vendor unless stated otherwise and room sizes are measured between internal wall surfaces, including furnishings. The services, systems and appliances have not been tested, and no guarantee as to their operability or efficiency can be given.

Marketed by

Winkworth Poringland

Properties for sale in Poringland

Arrange a Viewing

Fill in the form below to arrange your property viewing.

This site is protected by reCAPTCHA and the Google Privacy Policy and Terms of Service apply.
Introduction text for the mortgage calculator

Mortgage Calculator

Fill in the details below to estimate your monthly repayments:

Approximate monthly repayment:

For more information, please contact Winkworth's mortgage partner, Trinity Financial, on +44 (0)20 7267 9399 and speak to the Trinity team.

Stamp Duty Calculator

Fill in the details below to estimate your stamp duty

The above calculator above is for general interest only and should not be relied upon

6/14
Front
Rear
Kitchen
Kitchen
Living Room
Living Room
Conservatory
Bedroom
Bedroom
Family Bathroom
Garden
Garden

Meet the Team

With over 100 years of combined experience, our Poringland team offer unrivalled local knowledge and a genuine passion for property. Since opening in 2018, we’ve proudly supported more local schools, events and community initiatives than any other agent in the area — because community isn’t just part of what we do, it’s who we are. As market leaders, we’re committed to delivering exceptional service and care to every customer. Whether you’re buying, selling, renting, lettings or simply exploring your next move, pop into our office for a coffee and a warm welcome.

See all team members

Got a question about this property?

This site is protected by reCAPTCHA and the Google Privacy Policy and Terms of Service apply.

More Properties like this

Main Road, Filby, Great Yarmouth, Norfolk, NR29

Offers in excess of £2,350,000 Freehold

New Instruction

Long Road, Framingham Earl, Norwich, Norfolk, NR14

Offers in excess of £1,650,000 Freehold

Under Offer

Yarmouth Road, Ditchingham, Bungay, NR35

Guide Price £900,000 Freehold

Under Offer

Cranes Road, Hethel, Norwich, Norfolk, NR14

Guide Price £850,000 Freehold

Low Road, North Tuddenham, Dereham, Norfolk, NR20

Guide Price £800,000 Freehold

Under Offer

Green Fall, Poringland, Norwich, Norfolk, NR14

Offers in excess of £800,000 Freehold

Online Valuations Aren’t Worth The Paper They’re Printed On.

When online valuations don’t give you the whole picture - try Winkworth’s expert service. Get a free property appraisal. Accurate valuations from our local property experts. No obligation to list with Winkworth. Choose a time convenient for you with our online booking system.

Fill in your details and someone will be in touch soon:

You have provisionally booked a valuation for . Please confirm your details below

We don't have date info available for this property, but if you fill in your details below, someone will be in touch to arrange a date soon

Please fill in the required fields below marked with *

This site is protected by reCAPTCHA and the Google Privacy Policy and Terms of Service apply.