Under Offer
Grove Road, Norwich, Norfolk, NR1
3 bedroom house in Norwich
£425,000 Freehold
- 3
- 2
- 2
PICTURES AND VIDEOS













KEY FEATURES
- Sought-after Grove Road location — moments from Norwich city centre yet peacefully positioned
- Beautifully renovated throughout to an exceptional standard
- Rare sizeable driveway providing ample off-road parking
- Welcoming hall entrance with practical understairs storage
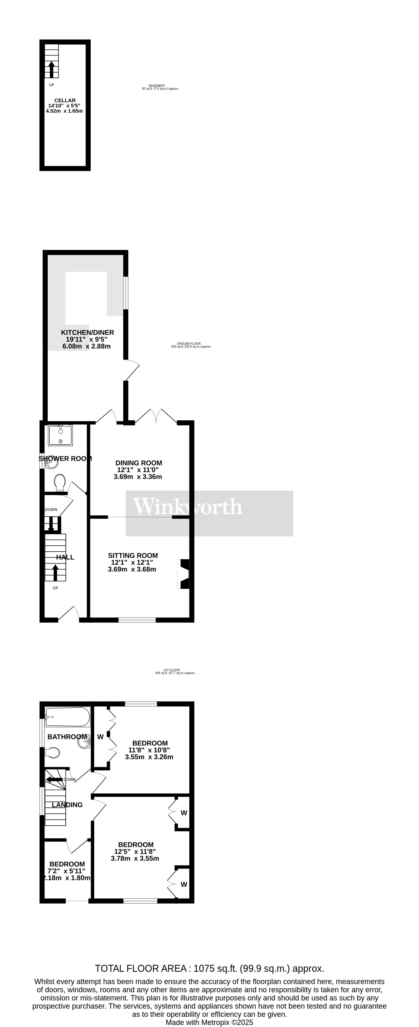
- Versatile cellar — ideal as a hobby room, wine store, or extra storage
- Stunning open-plan living/dining room with bay window, French doors, and feature fireplace
- Contemporary kitchen with breakfast bar, ample workspace, and plentiful storage
- Three well-proportioned bedrooms, all filled with natural light
- Stylish ground and first floor bath & shower rooms
- Low-maintenance paved courtyard garden — perfect for entertaining
KEY INFORMATION
- Tenure: Freehold
- Council Tax Band: C
Description
From the moment you arrive, the rarity of a sizeable driveway providing generous off-road parking immediately sets this home apart. Step inside, and the quality of finish is impossible to miss — the current owners have lovingly renovated every inch to an impeccable standard.
The welcoming hall features practical understairs storage and leads to one of this home’s most charming features — a versatile cellar, brimming with character and potential. The living and dining rooms have been opened up to create a stunning, light-filled space, framed by a bay window at one end and French doors at the other. A feature fireplace adds warmth and charm, creating the perfect backdrop for both relaxed evenings and lively gatherings.
The kitchen is nothing short of a showstopper. Sleek, modern, and designed for both cooking and conversation, it offers a wealth of workspace and storage, complemented by a breakfast bar that invites morning coffee or casual dinners with friends.
Upstairs, the first floor is home to three beautifully proportioned bedrooms, all bathed in natural light thanks to oversized windows. The two double bedrooms provide restful retreats, while the third is currently styled as a dedicated home office — ideal for today’s flexible lifestyles. A stylish family bathroom completes the accommodation.
Outside, the private paved courtyard garden continues the home’s social theme — a low-maintenance, sunlit space perfect for alfresco dining, barbecues, or simply unwinding.
With its rare combination of city-centre convenience, elegant presentation, and generous parking, this Grove Road gem is a true find. Early viewing is highly recommended.
Tenure - Freehold
Council Tax Band - C
Local Authority - Norwich City Council
We have been advised that the property is connected to mains water, electricity and gas.
Winkworth wishes to inform prospective buyers and tenants that these particulars are a guide and act as information only. All our details are given in good faith and believed to be correct at the time of printing but they don’t form part of an offer or contract. No Winkworth employee has authority to make or give any representation or warranty in relation to this property. All fixtures and fittings, whether fitted or not are deemed removable by the vendor unless stated otherwise and room sizes are measured between internal wall surfaces, including furnishings. The services, systems and appliances have not been tested, and no guarantee as to their operability or efficiency can be given.
Mortgage Calculator
Fill in the details below to estimate your monthly repayments:
Approximate monthly repayment:
For more information, please contact Winkworth's mortgage partner, Trinity Financial, on +44 (0)20 7267 9399 and speak to the Trinity team.
Stamp Duty Calculator
Fill in the details below to estimate your stamp duty
The above calculator above is for general interest only and should not be relied upon
Meet the Team
Our knowledgeable, friendly team are on hand to help whether you're buying, selling or renting. While we favour the local approach, by working closely with our London and national network alongside dedicated Corporate Services, marketing and PR departments, we give our clients an unparalleled advantage, matching homes with buyers and tenants throughout London and the UK.
See all team members