Skip to main content

MyWinkworth

New Instruction

Picture No. 48
Picture No. 41
Picture No. 46
Picture No. 52
Picture No. 51
Picture No. 40
Picture No. 50
Picture No. 23
Picture No. 49
Picture No. 22
Picture No. 47
Picture No. 39
Picture No. 45
Picture No. 44
Picture No. 42
Picture No. 43
Picture No. 37
Picture No. 28
Picture No. 31
Picture No. 32
Picture No. 27
Picture No. 26
Picture No. 53
Picture No. 29
Picture No. 24
Picture No. 30
Picture No. 38
Picture No. 34
Picture No. 33
Picture No. 36
Picture No. 35
Picture No. 25
6/14

Greyhound Road, London, N17

5 bedroom house

Guide Price £825,000 Freehold

  • Bedrooms 5
  • Bathrooms 1
  • Reception rooms 2
  • Floorplan

PICTURES AND VIDEOS

KEY FEATURES

  • Five Double Bedrooms
  • Through Reception Room
  • Lovley Kitchen Breakfast Room
  • Two Bathrooms
  • Smart Loft Conversion
  • Private Garden
  • Stylish Interior Design
  • Close To Transport Links
  • Sought After N17 Location

KEY INFORMATION

  • Tenure: Freehold

Description

Stunning Five bedroom Victorian house located within close proximity to Seven Sisters BR-Underground Station.

Sole Agent

Introducing Greyhound Road, London N17 by Winkworth.

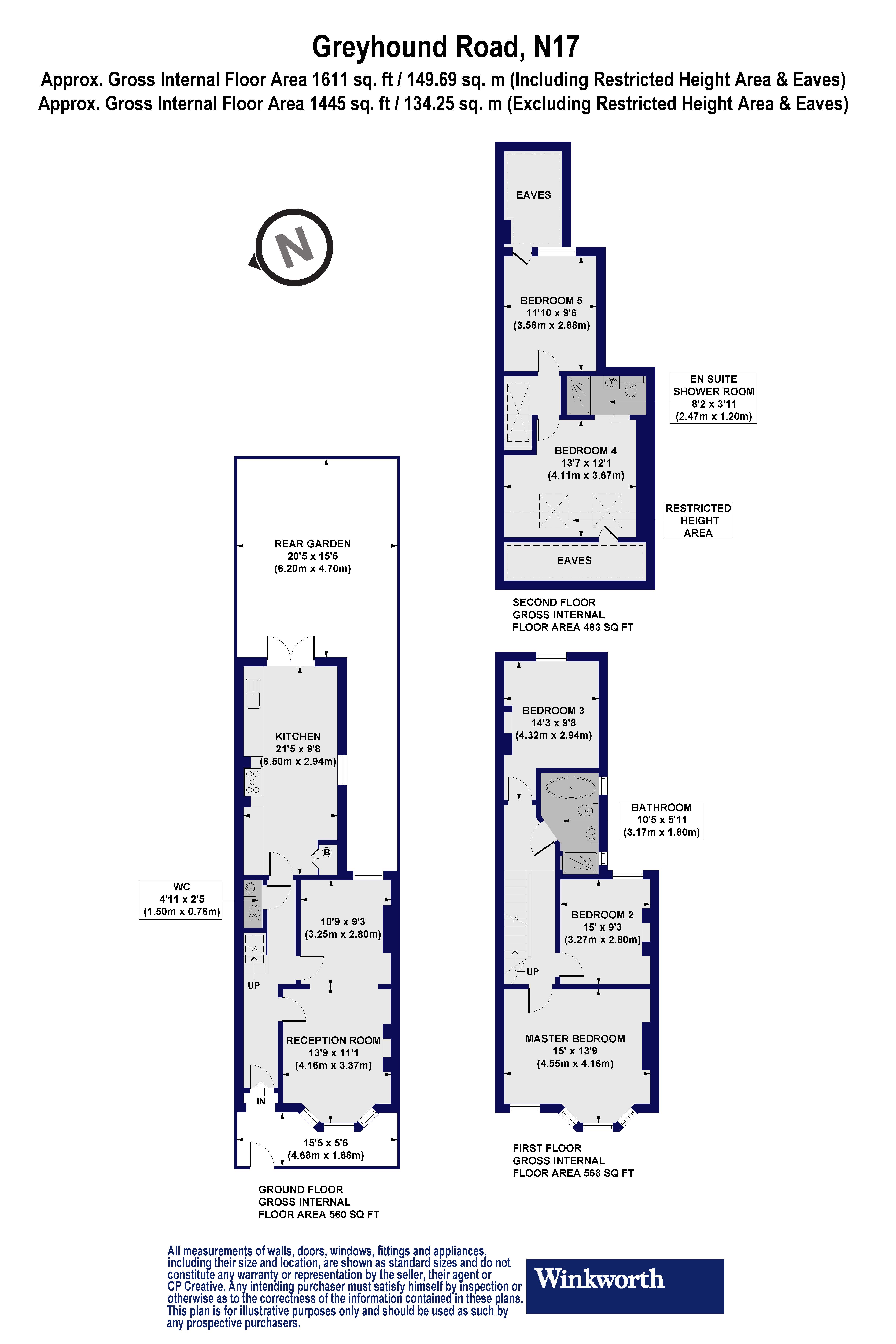
The property is spread over three floors and approx. ..1611 sq ft.

Ground floor comprises of entrance hallway leading to a large double reception rooms featuring stripped and varnished wood floors and a lovely period fireplace. To the rear of the ground floor is the hub of this fine home - a stunning kitchen breakfast room leading directly to the charming private garden. Upstairs on the first floor you will find a spacious master bedroom with bay window and original feature fireplace, as well as two other double bedrooms, all decorated with the utmost attention to detail. The house in concluded by way of a smart loft conversion incorporating two double bedrooms and an En Suite shower room.


In terms of location, you cannot ask for much more than this brilliant spot in N17, this area continues to thrive.
You will be just a moments from some of the neighbourhoods most fashionable social establishments including With Milk for coffee and Croissants and The Palm Pub and restaurant where you can take your pick from a great selection of independent beers and an excellent menu - not only will you be just a short walk to transport links at Seven Sisters Underground ( Victoria Line|), but you will also have bus links that will take you to Tottenham Hale underground ( Stansted Express Link), it’s only a 15 minute walk approx. if you prefer.
There are bus routes from the nearby High road that go into Hackney, Islington and the West End, getting around the capital is on point with this location.

Aside from the convenient transport hub that Tottenham undoubtedly is, living here will mean that you are able to take your pick from wonderful community parks at Downhills, Bruce Castle and Lordship Rec, not to mention the ever-increasing array of independent pubs, restaurants and coffee shops that continue to line the neighbourhood, with more opening literally month on month as this exciting urban location continues to meet and surpass its potential as a prominent North London property hotspot.


Winkworth.co.uk

Your local independently owned property agency with an extensive network of London offices.


Est 1835

Follow us on Instagram - @winkworthharringay

Marketed by

Winkworth Harringay

Properties for sale in Harringay

Arrange a Viewing

Fill in the form below to arrange your property viewing.

This site is protected by reCAPTCHA and the Google Privacy Policy and Terms of Service apply.
Introduction text for the mortgage calculator

Mortgage Calculator

Fill in the details below to estimate your monthly repayments:

Approximate monthly repayment:

For more information, please contact Winkworth's mortgage partner, Trinity Financial, on +44 (0)20 7267 9399 and speak to the Trinity team.

Stamp Duty Calculator

Fill in the details below to estimate your stamp duty

The above calculator above is for general interest only and should not be relied upon

6/14
Picture No. 48
Picture No. 41
Picture No. 46
Picture No. 52
Picture No. 51
Picture No. 40
Picture No. 50
Picture No. 23
Picture No. 49
Picture No. 22
Picture No. 47
Picture No. 39
Picture No. 45
Picture No. 44
Picture No. 42
Picture No. 43
Picture No. 37
Picture No. 28
Picture No. 31
Picture No. 32
Picture No. 27
Picture No. 26
Picture No. 53
Picture No. 29
Picture No. 24
Picture No. 30
Picture No. 38
Picture No. 34
Picture No. 33
Picture No. 36
Picture No. 35
Picture No. 25

Meet the Team

At Winkworth Harringay Estate Agents, we have a comprehensive team of knowledgeable and personable property experts who are excited about the local area. So whether you're buying, selling, renting or letting or simply need some advice, pop into our office on Green Lanes for the experience and the local knowledge you need.

See all team members

Got a question about this property?

This site is protected by reCAPTCHA and the Google Privacy Policy and Terms of Service apply.

More Properties like this

Under Offer

Warham Road, London, N4

Guide Price £1,275,000 Freehold

Under Offer

Atterbury Road, Finsbury Park, N4

Guide Price £1,275,000 Freehold

Under Offer

Sydney Road, London, N8

Guide Price £1,150,000 Freehold

Jansons Road, London, N15

£1,100,000 Freehold

Under Offer

Lausanne Road, London, N8

Guide Price £1,050,000 Freehold

New Instruction

Hewitt Road, London, N8

£975,000 Freehold

Online Valuations Aren’t Worth The Paper They’re Printed On.

When online valuations don’t give you the whole picture - try Winkworth’s expert service. Get a free property appraisal. Accurate valuations from our local property experts. No obligation to list with Winkworth. Choose a time convenient for you with our online booking system.

Fill in your details and someone will be in touch soon:

You have provisionally booked a valuation for . Please confirm your details below

We don't have date info available for this property, but if you fill in your details below, someone will be in touch to arrange a date soon

Please fill in the required fields below marked with *

This site is protected by reCAPTCHA and the Google Privacy Policy and Terms of Service apply.