Skip to main content

MyWinkworth

Picture No. 05
Picture No. 03
Picture No. 01
Picture No. 04
Picture No. 02
Picture No. 09
Picture No. 11
Picture No. 06
Picture No. 12
6/14

Grafton Square, London, UK, SW4

3 bedroom maisonette in London

£1,125,000 Share of Freehold

  • Bedrooms 3
  • Bathrooms 2
  • Reception rooms 1
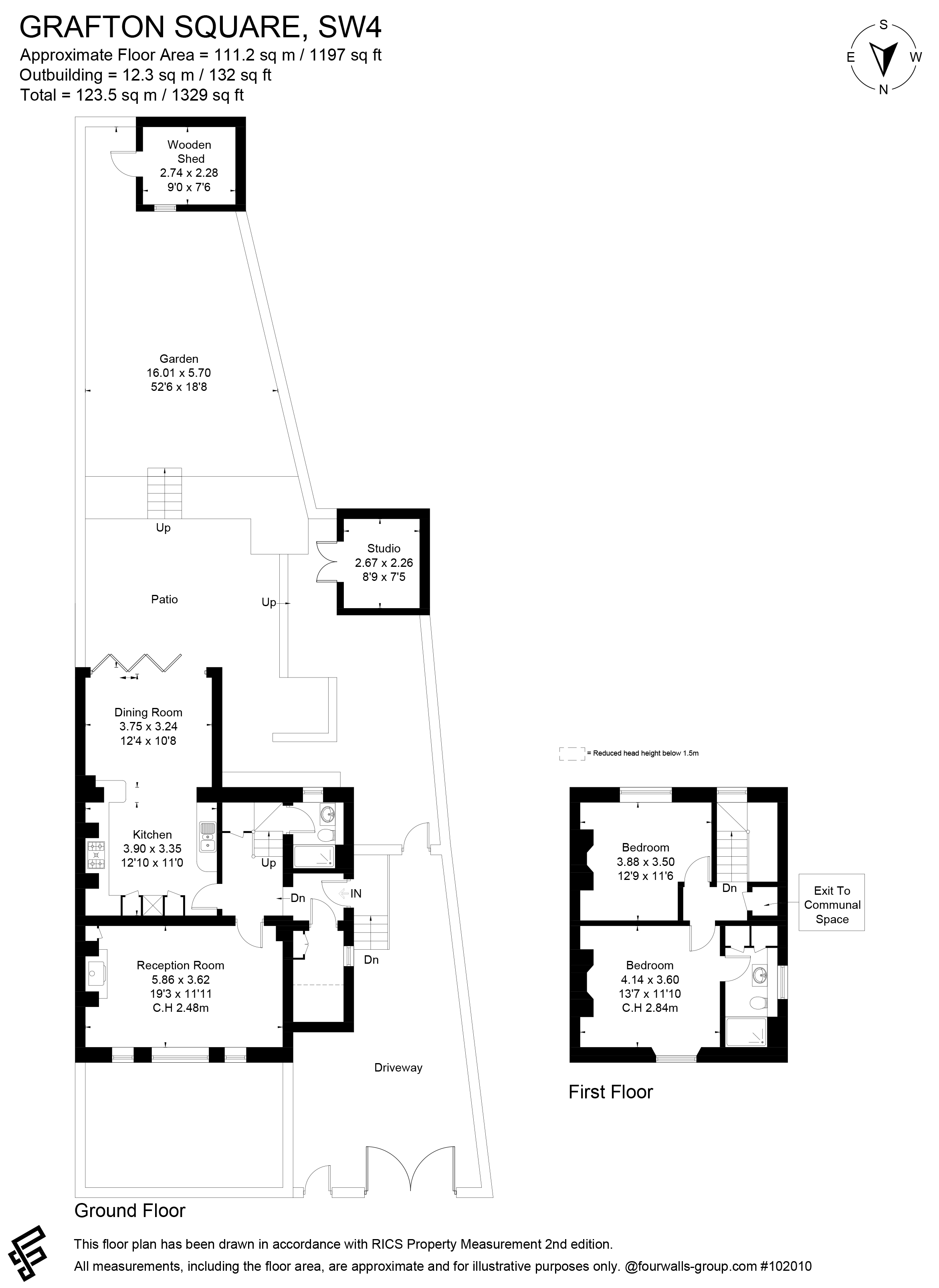
  • Floorplan

PICTURES AND VIDEOS

KEY INFORMATION

  • Tenure: Share of Freehold
  • Lease Length: 111 yrs left

Description

A beautifully presented two bedroom garden flat set on the sought after Grafton Square, offering generous living space with flexible layout potential, a private garden with studio and shed, and a one third share of the freehold.

Set within an attractive period building on the sought-after Grafton Square, this well-presented two-bedroom garden flat offers generous living space, character features and excellent outdoor accommodation, with scope to be configured as a three-bedroom home if desired.

The property features a spacious reception room with high ceilings and large windows, creating a bright and comfortable living area. To the rear, a separate dining room leads through to a well-appointed kitchen fitted with solid wood cabinetry, stone worktops and integrated appliances. Bi-folding doors open directly onto a private patio, allowing a seamless connection to the garden.

The private garden extends to approximately 16 metres and offers a rare level of privacy, with established planting and space for outdoor seating and entertaining. The garden further benefits from a detached studio, ideal as a home office or gym, as well as a separate wooden shed providing additional storage.

Upstairs, the property comprises two well-proportioned double bedrooms and is complemented by two modern bathrooms, including a contemporary shower room with walk-in glass enclosure.

The property further benefits from private parking and a one third share in 46 Grafton Square Limited, the entity that owns the freehold of the building, providing an added level of long-term security and control.

Grafton Square is a highly regarded residential address, ideally positioned close to Clapham Old Town and Clapham Common, with excellent transport links via Clapham Common Underground Station and easy access to local shops, cafés and restaurants.

Marketed by

Winkworth Clapham

Properties for sale in Clapham

Arrange a Viewing

Fill in the form below to arrange your property viewing.

This site is protected by reCAPTCHA and the Google Privacy Policy and Terms of Service apply.
Introduction text for the mortgage calculator

Mortgage Calculator

Fill in the details below to estimate your monthly repayments:

Approximate monthly repayment:

For more information, please contact Winkworth's mortgage partner, Trinity Financial, on +44 (0)20 7267 9399 and speak to the Trinity team.

Stamp Duty Calculator

Fill in the details below to estimate your stamp duty

The above calculator above is for general interest only and should not be relied upon

6/14
Picture No. 05
Picture No. 03
Picture No. 01
Picture No. 04
Picture No. 02
Picture No. 09
Picture No. 11
Picture No. 06
Picture No. 12

Meet the Team

Our team at Winkworth Clapham Estate Agents are here to support and advise our customers when they need it most. We understand that buying, selling, letting or renting can be daunting and often emotionally meaningful. We are there, when it matters, to make the journey as stress-free as possible.

See all team members

Got a question about this property?

This site is protected by reCAPTCHA and the Google Privacy Policy and Terms of Service apply.

More Properties like this

Klea Avenue, London, SW4

£875,000 Share of Freehold

North Street, London, SW4

£800,000 Freehold

New Instruction

Venn Street, Clapham, London, SW4

£775,000 Share of Freehold

Brayburne Avenue, London, SW4

£625,000

Online Valuations Aren’t Worth The Paper They’re Printed On.

When online valuations don’t give you the whole picture - try Winkworth’s expert service. Get a free property appraisal. Accurate valuations from our local property experts. No obligation to list with Winkworth. Choose a time convenient for you with our online booking system.

Fill in your details and someone will be in touch soon:

You have provisionally booked a valuation for . Please confirm your details below

We don't have date info available for this property, but if you fill in your details below, someone will be in touch to arrange a date soon

Please fill in the required fields below marked with *

This site is protected by reCAPTCHA and the Google Privacy Policy and Terms of Service apply.