George Street,, Helpringham, Sleaford, NG34
5 bedroom house in Helpringham
£700,000 Freehold
- 5
- 3
PICTURES AND VIDEOS




KEY FEATURES
- 5 double bedrooms, 3 bathrooms
- Stylish kitchen/dining area with garden room
- Utility room and double garage
- Separate study and spacious lounge
- Large landscaped rear garden with countryside views
- Traditional brick construction with tiled roof
- Peaceful village setting
KEY INFORMATION
- Tenure: Freehold
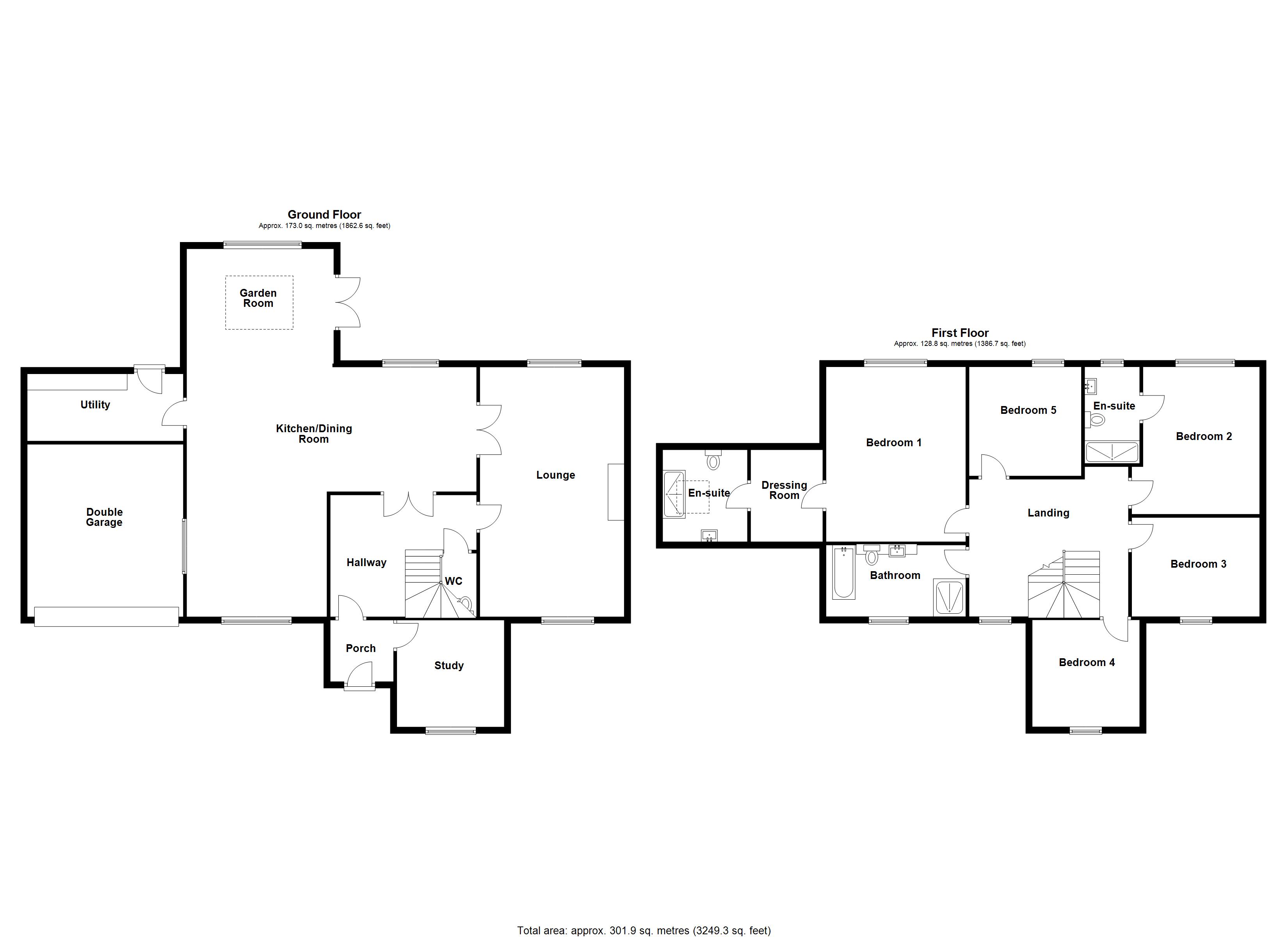
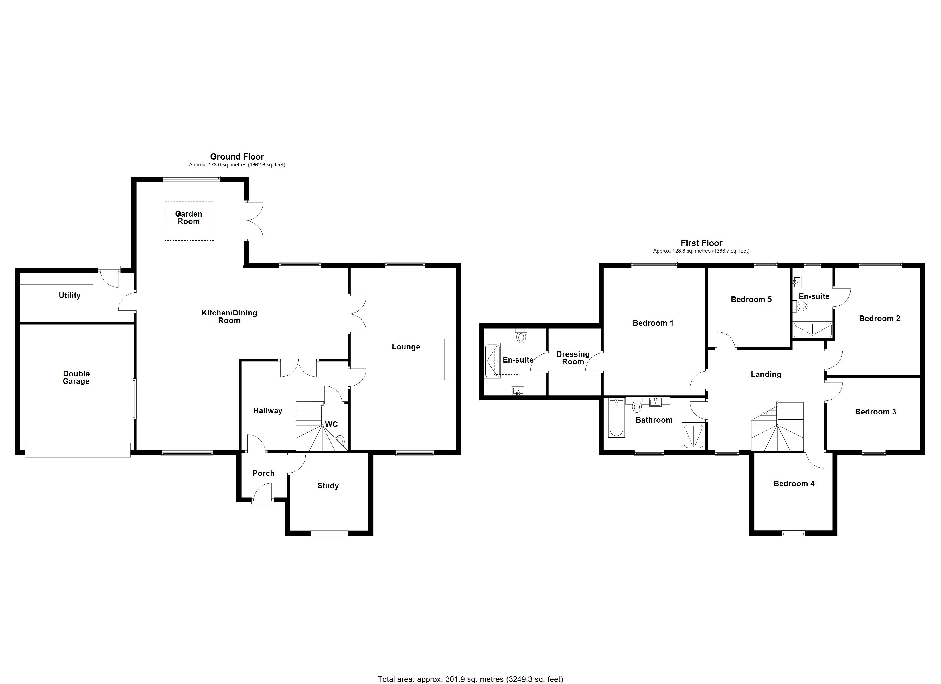
Description
Nestled in a peaceful rural setting with expansive views over open countryside, this exceptional newly built home combines classic brick architecture with spacious modern living. Situated on a generous plot in a desirable village location, this property offers the perfect balance of tranquil surroundings and high-spec contemporary interiors. Featuring a spacious kitchen/dining room with garden room, large lounge, study, utility, and two en-suites including a principal suite with dressing room. Generous sized garden with open countryside views. Approx. 3,249 sq ft. Double garage & driveway parking.
Call 01529 303377 to arrange an early viewing now to appreciate what this truly stunning property has to offer.
Rooms and Accommodations
- Lounge
- 7.7m x 4.4m
- Kitchen Dining Room
- 8.8m x 7.7m
- Sun Room
- 4.3m x 3.5m
- Study
- 3.3m x 3.3m
- Utility Room
- 4.8m x 2.0m
- Garage
- 5.3m x 4.8m
- WC
- Bedroom 1
- 5.4m x 4.3m
- Dressing Room
- En-Suite
- 2.8m x 1.9m
- Bedroom 2
- 3.9m x 3.5m
- Ensuite Bathroom
- 2.9m x 1.7m
- Bedroom 3
- 3.9m 2.6m
- Bedroom 4
- 3.3m x 3.3m
- Bedroom 5
- 3.7m x 3.5m
Marketed by
Winkworth Sleaford
Properties for sale in SleafordArrange a Viewing
Fill in the form below to arrange your property viewing.
Mortgage Calculator
Fill in the details below to estimate your monthly repayments:
Approximate monthly repayment:
For more information, please contact Winkworth's mortgage partner, Trinity Financial, on +44 (0)20 7267 9399 and speak to the Trinity team.
Stamp Duty Calculator
Fill in the details below to estimate your stamp duty
The above calculator above is for general interest only and should not be relied upon
Meet the Team
Our team are here to support and advise our customers when they need it most. We understand that buying, selling, letting or renting can be daunting and often emotionally meaningful. We are there, when it matters, to make the journey as stress-free as possible.
See all team members