New Instruction
Fircroft Road, London, SW17
3 bedroom house in London
£900,000 Freehold
- 3
- 1
- 2
PICTURES AND VIDEOS



KEY INFORMATION
- Tenure: Freehold
Description
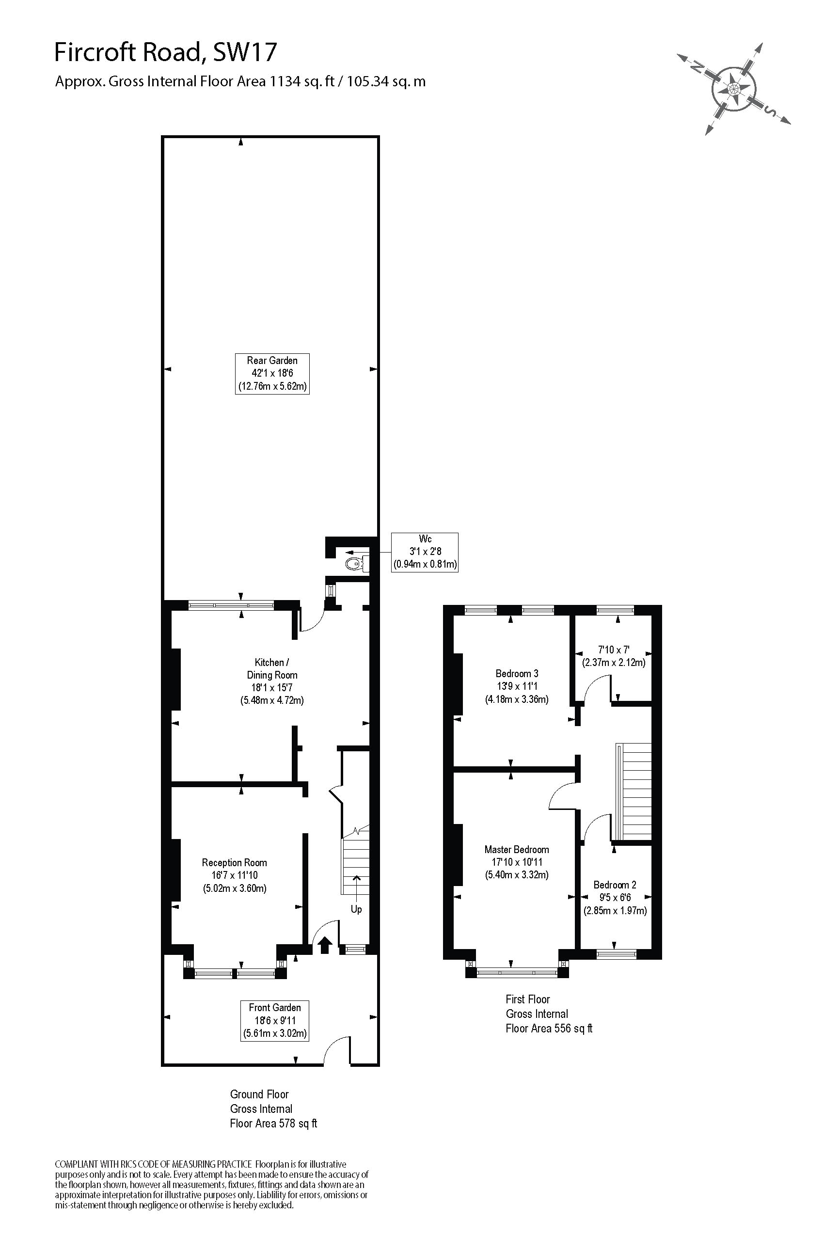
This three-bedroom house presents an excellent opportunity for renovation. On the ground floor, it features a well-proportioned reception room and kitchen, with potential to extend (subject to planning permission). The property also benefits from a spacious rear garden, ideal for creating a relaxing retreat or entertaining space. Additionally, there is an outdoor WC.
Upstairs, the property offers three bedrooms and a space that could be developed into a bathroom. There is also the potential to add a loft conversion, subject to the necessary planning permissions.
Fircroft Road sits in a popular and well-regarded part of SW17, close to the amenities and vibrancy of Tooting Bec and Balham. It is a residential street characterised by attractive terrace houses, leafy surroundings and a sense of community.Residents benefit from excellent transport connections, with both Tooting Bec (0.2miles) (Northern Line) and Balham (0.8miles) (Northern Line and National Rail) stations within easy reach, making central London highly accessible. The neighbourhood also offers an array of independent cafés, shops and restaurants, alongside nearby green spaces such as Tooting Common, providing a balance of convenience and leisure.
Wandsworth Council Tax Band: E
Marketed by
Winkworth Tooting
Properties for sale in TootingArrange a Viewing
Fill in the form below to arrange your property viewing.
Mortgage Calculator
Fill in the details below to estimate your monthly repayments:
Approximate monthly repayment:
For more information, please contact Winkworth's mortgage partner, Trinity Financial, on +44 (0)20 7267 9399 and speak to the Trinity team.
Stamp Duty Calculator
Fill in the details below to estimate your stamp duty
The above calculator above is for general interest only and should not be relied upon
Meet the Team
Our team at Winkworth Tooting Estate Agents are here to support and advise our customers when they need it most. We understand that buying, selling, letting or renting can be daunting and often emotionally meaningful. We are there, when it matters, to make the journey as stress-free as possible.
See all team members