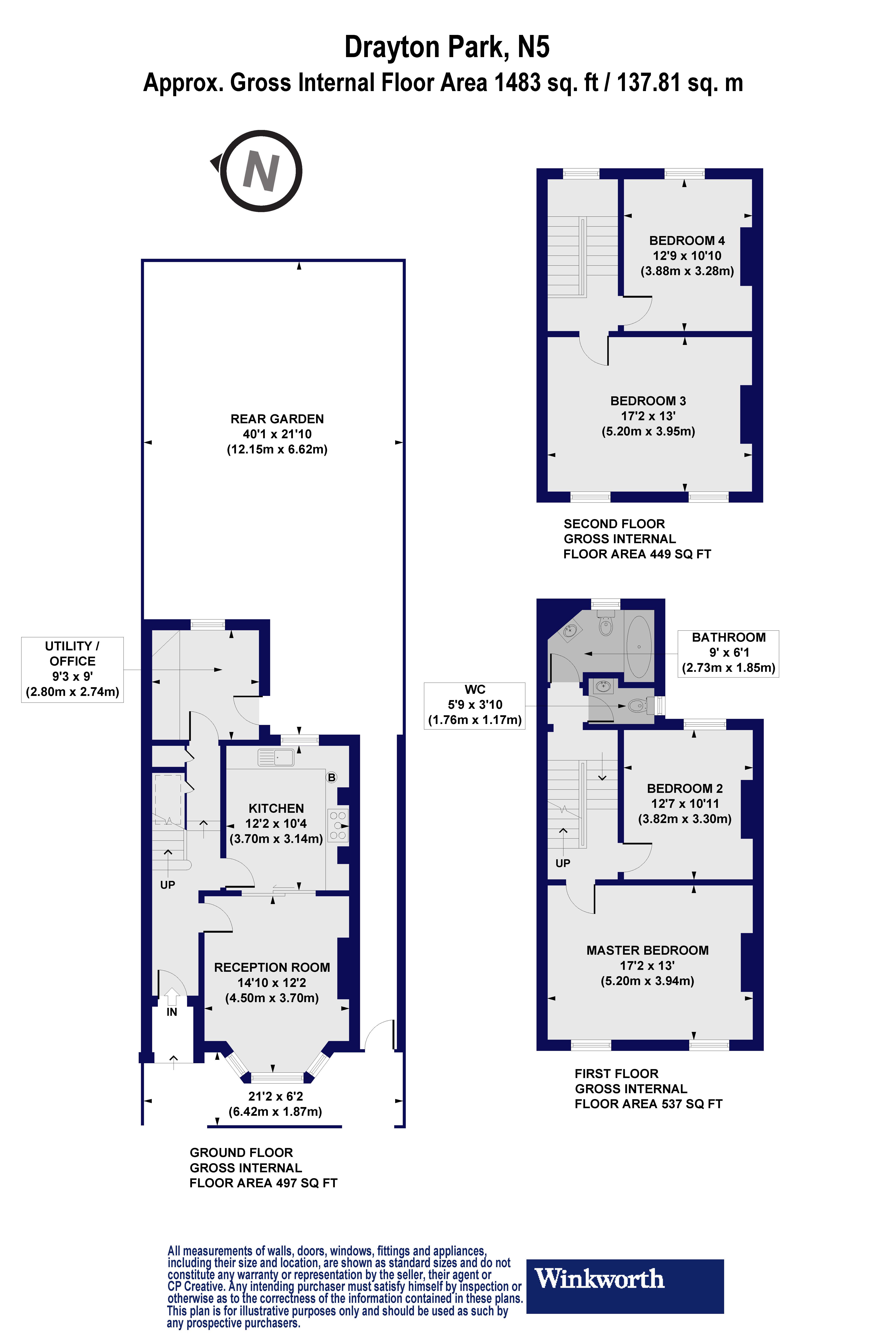
Drayton Park, Highbury, London, N5
4 bedroom house in Highbury
Offers in excess of £1,350,000 Freehold
- 4
- 2
- 1
-
1483 sq ft
137 sq m -
PICTURES AND VIDEOS















KEY INFORMATION
- Tenure: Freehold
- Council Tax Band: F
- Local Authority: Islington Council
Description
Drayton Park is minutes away from the green space of Highbury Fields with its cacophony of sporting activities and play spaces, not to mention freightliners farm as well as Islington Central Library on your doorstep. For the outdoor enthusiast, there are several sporting options nearby with Finsbury Park, Clissold Park and Highbury Fields offering wonderful spaces for recreation. Gillespie Nature reserve is 0.3m away and the Parkland walk for a leisurely stroll is nearby also. The prestigious Highbury Barn is within close proximity which offers a number of renowned local amenities; including Godfrey’s Butchers, Bourne’s Fishmongers, La Fromagerie, and Highbury Vintners; not forgetting the ever-popular Provisions, Le Péché Mignon, Westerns Laundry as well as Harvest and everything that Upper Street has to offer. The property falls within the catchment area of several outstanding local primary and secondary schools too, ideal for a growing family.
Transport links are amongst some of the best in London with Arsenal (Piccadilly line) and the Finsbury Park hub (Victoria, Piccadilly lines and over ground services and substantial bus network) offering speedy access to Upper Street, the City, the West End, and international rail services at Kings Cross St Pancras. Drayton Park Overground Station which takes you directly to Moorgate.
ACCESSIBILITY
- Unsuitable For Wheelchairs
Utilities
- Electricity Supply: Mains Supply
- Water Supply: Mains Supply
- Sewerage: Mains Supply
- Heating: Gas Central
- Broadband: ADSL, FTTC, FTTP
Rights & Restrictions
- Listed Property: No
Risks
- Flood Risk: There has not been flooding in the last 5 years
Marketed by
Winkworth Highbury
Properties for sale in HighburyArrange a Viewing
Fill in the form below to arrange your property viewing.
Mortgage Calculator
Fill in the details below to estimate your monthly repayments:
Approximate monthly repayment:
For more information, please contact Winkworth's mortgage partner, Trinity Financial, on +44 (0)20 7267 9399 and speak to the Trinity team.
Stamp Duty Calculator
Fill in the details below to estimate your stamp duty
The above calculator above is for general interest only and should not be relied upon
Meet the Team
From our office on Highbury Park, we pride ourselves on our unrivalled local knowledge. Many of the team here at Winkworth Highbury Estate Agents live locally and whether it's sales, lettings or property management, we're always striving to provide an unparalleled service and tailor it to your exacting needs.
See all team members