Skip to main content

MyWinkworth

Picture No. 20
Picture No. 21
Picture No. 16
Picture No. 18
Picture No. 19
Picture No. 14
Picture No. 15
Picture No. 11
Picture No. 13
Picture No. 12
Picture No. 23
6/14

Davis Road, London, W3

3 bedroom maisonette

£745,000 Share of Freehold

  • Bedrooms 3
  • Bathrooms 2
  • Reception rooms 1
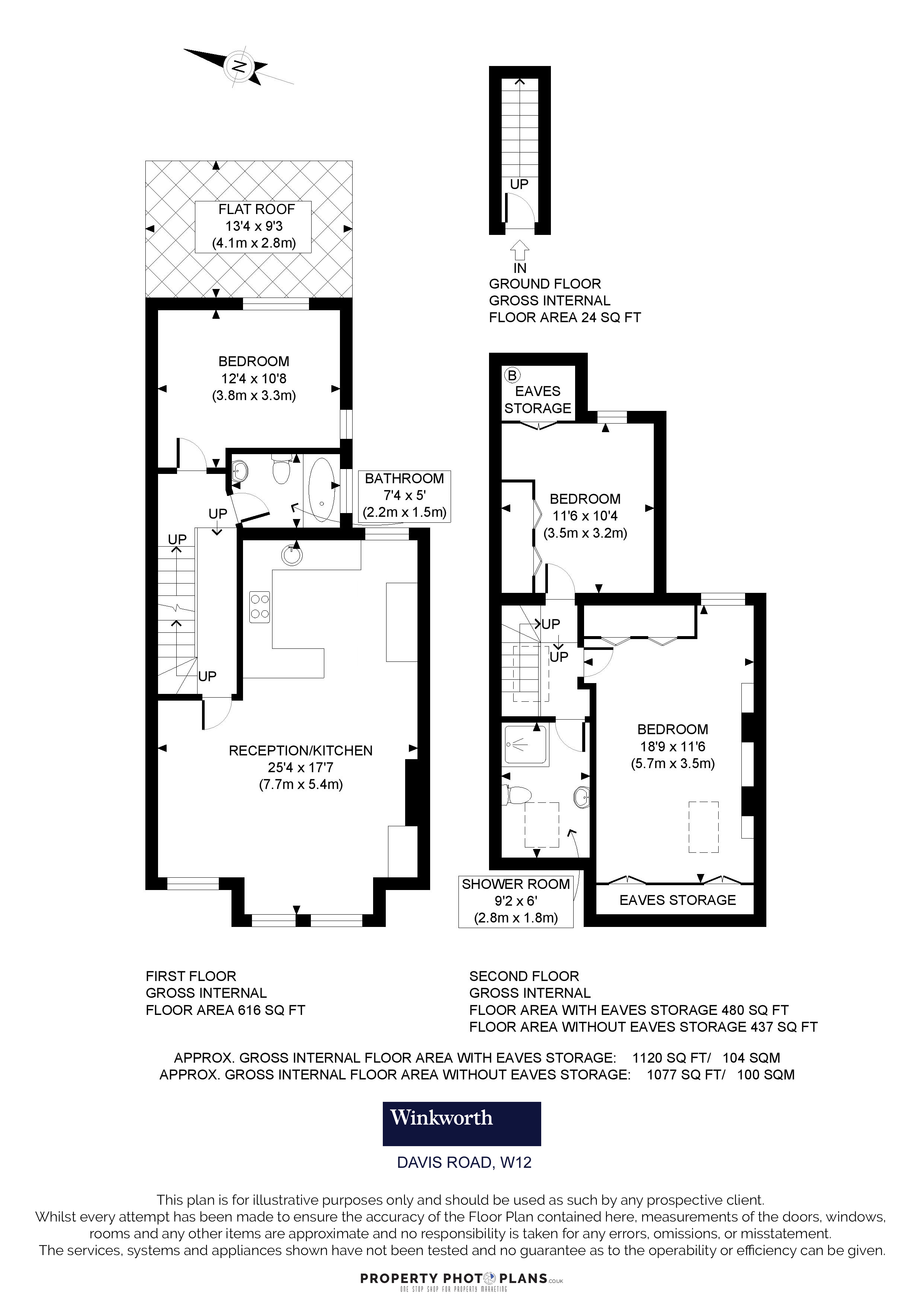
  • Floorplan

PICTURES AND VIDEOS

KEY FEATURES

  • Reception Room
  • Kitchen
  • 3 Bedrooms
  • Bathroom
  • Shower Room
  • 1120 Sq Ft / 104 Sq M
  • Council Tax Band E
  • EPC Rating Band C

KEY INFORMATION

  • Tenure: Share of Freehold
  • Lease Length: 115 yrs left
  • Council Tax Band: E
  • Local Authority: Ealing Council

Description

A beautifully presented and very spacious three-bedroom, two-bathroom split level flat offering over 1100 sqft of living space.

Offered to the market in excellent condition throughout is this incredible three-bedroom, two-bathroom split level apartment.
The flat is set over the first and second floor of a lovely period conversion and comprises a very bright and spacious open plan reception room and kitchen with plenty of space for a dining table as well, double-bedroom and family bathroom, all on the first floor.
The top floor comprises two more double bedrooms, both of which benefit from built in storage and substantial eave storage as well and the second bathroom.

Share of Freehold with underlying lease of 125 years from and including 24 June 2016
SC: N/A
GR: N/A

Location

Davis Road is to the west of Askew Road, with the area offering an eclectic mix of independent shops, cafes and restaurants, with the open space of Wendell Park and Ravenscourt Park close by and the amenities of Chiswick High Road also within easy reach. Stamford Brook, Goldhawk Road and Ravenscourt Park stations are the closest, whilst Shepherd's Bush Central Line and London Overground stations are a little further away at Shepherd's Bush Green. A number of well regarded schools and nurseries, in both state and private sectors, are close by.

Marketed by

Winkworth Shepherds Bush & Acton

Properties for sale in Shepherds Bush & Acton

Arrange a Viewing

Fill in the form below to arrange your property viewing.

This site is protected by reCAPTCHA and the Google Privacy Policy and Terms of Service apply.
Introduction text for the mortgage calculator

Mortgage Calculator

Fill in the details below to estimate your monthly repayments:

Approximate monthly repayment:

For more information, please contact Winkworth's mortgage partner, Trinity Financial, on +44 (0)20 7267 9399 and speak to the Trinity team.

Stamp Duty Calculator

Fill in the details below to estimate your stamp duty

The above calculator above is for general interest only and should not be relied upon

6/14
Picture No. 20
Picture No. 21
Picture No. 16
Picture No. 18
Picture No. 19
Picture No. 14
Picture No. 15
Picture No. 11
Picture No. 13
Picture No. 12
Picture No. 23

Meet the Team

At Winkworth Shepherds Bush Estate Agents, we pride ourselves on offering high standards and a personal service. As the longest serving agent in W12, we've been matching people with homes for over 30 years from our prominent position on Uxbridge Road. We love our area and between us, our close-knit team of 15 has over 120 years combined experience, so you'll be in safe hands.

See all team members

Got a question about this property?

This site is protected by reCAPTCHA and the Google Privacy Policy and Terms of Service apply.

More Properties like this

Thornfield Road, London, W12

£1,200,000 Freehold

Under Offer

Hetley Road, London, W12

£750,000 Leasehold

Keith Grove, London, W12

Offers in excess of £700,000 Leasehold

The Glade, Coningham Road, London, W12

£575,000 Leasehold

Online Valuations Aren’t Worth The Paper They’re Printed On.

When online valuations don’t give you the whole picture - try Winkworth’s expert service. Get a free property appraisal. Accurate valuations from our local property experts. No obligation to list with Winkworth. Choose a time convenient for you with our online booking system.

Fill in your details and someone will be in touch soon:

You have provisionally booked a valuation for . Please confirm your details below

We don't have date info available for this property, but if you fill in your details below, someone will be in touch to arrange a date soon

Please fill in the required fields below marked with *

This site is protected by reCAPTCHA and the Google Privacy Policy and Terms of Service apply.